プレサンス DOMECITY コレーレ ***号室(7階/1LDK)の賃貸物件(賃貸マンション)
大阪府大阪市西区にあるプレサンス DOMECITY コレーレ ***号室は宅配ボックス、シューズボックス、2階以上、エレベーター、即入居可などが特徴です。最寄り駅の阪神なんば線九条駅から徒歩10分です。プレサンス DOMECITY コレーレ ***号室の詳細はハウスコム FC弁天町店までお気軽にお問い合わせください!
情報更新日:
次回更新予定日:
※次回更新予定日について:お店側では順次空室確認を行っていますが、次回更新予定日までに空室確認が行えない場合には、この物件情報は自動的に削除されます。
プレサンス DOMECITY コレーレ ***号室の賃貸物件部屋概要
家賃 |
11.308万円
初期費用を |
|---|---|
共益費 |
9,920円
入居可能時期 |
敷金/礼金 |
- / 150,000円 |
保証金/ |
- / - |
最寄駅 |
|
所在地 |
大阪府大阪市西区境川 |
部屋番号 |
***号室 |
間取り |
1LDK(LDK9.1・洋4.5) |
専有面積 |
34.80㎡ |
築年数 |
2023年7月(築3年) |
階数 |
7階部分(地上11階建) |
方位・位置 |
ー / その他 |
物件種別 |
賃貸マンション |
構造 |
RC |
駐車場 |
- |
小学校学区 |
九条北小学校 |
中学校学区 |
西中学校 |
他の空き部屋 |
***号室 ***号室 408号室 708号室 |
- 学区データについて
- ※学区データは必ずしも正確とは限りません。詳細に関しては最寄店舗または各自治体の教育委員会に必ずご確認ください。
この物件にお問い合わせ
プレサンス DOMECITY コレーレ ***号室の特徴
-
一人暮らしに人気の設備

-
カップルに人気の設備

-
家族に人気の設備

-
夫婦に人気の設備

-
三世代で人気の設備

-
セキュリティ対策重視

-
タイパ重視

-
身だしなみに気をつかいたい

-
雨の日でも洗濯したい

-
洋室で暮らしたい

-
服やおしゃれが好き

-
推し活グッズを飾りたい

-
オークション・通販が好き

契約条件
敷金が無料なため、初期費用が比較的安くなる傾向にあります。
セキュリティ
この物件の建物には、オートロックや防犯カメラや宅配ボックスが設置されており、来客時には居室内のテレビモニターにて訪問者の顔を確認することができます。
室内設備
システムキッチンには、2つ以上のガスコンロが備え付けられています。 お風呂とトイレは別です。お風呂には、追い焚き機能が備わっています。 トイレは、温水洗浄便座機能付きになります。 女性に嬉しい設備のシャワーの付いている洗面化粧台があります。 洗濯に便利な設備として、室内洗濯機置場があります。浴室乾燥機も設置されているので、梅雨時の生乾き臭も比較的防ぐことができます。
居室状況
お部屋の床は、フローリングとなっており、エアコンが設置されています。 インターネットも無料で入居後すぐ生活が始められます。 収納スペースとして、基本的な居室にクローゼットを設置、通常よりも収納力の高いウォークインクローゼット、玄関にはシューズボックスがあります。
建物設備共用部分
居室外の専有スペースとして、洗濯物を干すなどの用途として利用できるバルコニーがあります。 建物の共用スペースに、日々の出入に便利なエレベーターや、いざという時の防犯カメラや、急な外出や不在がちのご家庭の荷物受け取りに便利な宅配ボックスや、居室内を常に清潔に保てる24時間利用可能なゴミ捨て置き場が設置されています。 駐輪場、バイク置き場が利用できます。
周辺施設
この物件の学区は、九条北小学校区・西中学校区です。
この物件にお問い合わせ
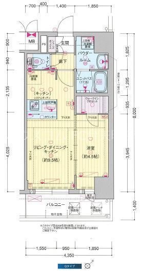
プレサンス DOMECITY コレーレ ***号室の間取り
間取り:1LDK
間取詳細:1LDK(LDK9.1・洋4.5)
専有面積:34.80㎡
方位:ー
部屋位置:その他
プレサンス DOMECITY コレーレ ***号室の設備
キッチン
システムキッチン
カウンターキッチン
ガスコンロ
ガスコンロ二口以上
バス・トイレ
バス・トイレ別
追い焚き
浴室乾燥機
温水洗浄便座
独立洗面台
シャワー付洗面化粧台
玄関
TVモニタ付インターホン
オートロック
宅配ボックス
収納
クローゼット
ウォークインクローゼット
シューズボックス
バルコニー
バルコニー
室内設備
エアコン
フローリング
室内洗濯機置場
位置・立地
2階以上
インフラ
インターネット可
BS
都市ガス
建物設備
エレベーター
防犯カメラ
24時間ゴミ出しOK
駐輪場
バイク置き場
分譲賃貸
入居条件
即入居可
ライフステージ
一人暮らしに人気の設備
カップルに人気の設備
家族に人気の設備
夫婦に人気の設備
三世代で人気の設備
こだわり
セキュリティ対策重視
タイパ重視
身だしなみに気をつかいたい
雨の日でも洗濯したい
洋室で暮らしたい
趣味
服やおしゃれが好き
推し活グッズを飾りたい
オークション・通販が好き
お得な条件
インターネット無料
この物件にお問い合わせ
プレサンス DOMECITY コレーレ ***号室の賃貸契約情報
毎月支払う |
家賃11.308万円/月共益費9,920円/月 |
|---|---|
初期費用 |
敷金-礼金150,000円保証金-敷引き償却金- |
更新料 |
- |
鍵交換費用 |
- |
室内清掃費用 |
- |
駐車場料金 |
- |
損保・ |
借家賠付きの火災保険にご加入いただきます。 |
保証会社 |
|
契約期間 |
1年 |
入居可能日 |
即入居可 |
フリーレント期間 |
- |
取引形態 |
仲介 |
備考 |
- |
プレサンス DOMECITY コレーレ ***号室の建物情報
建物名称 |
プレサンス DOMECITY コレーレ |
|---|---|
最寄駅 |
|
所在地 |
大阪府大阪市西区境川 |
階層 |
7階部分(地上11階建) |
構造 |
RC |
築年数 |
2023年7月(築3年) |
駐車場 |
- |
小学校学区 |
九条北小学校 |
中学校学区 |
西中学校 |
- 学区データについて
- ※学区データは必ずしも正確とは限りません。詳細に関しては最寄店舗または各自治体の教育委員会に必ずご確認ください。
無料この物件に問い合わせ
- プレサンス DOMECITY コレーレ ***号室

-
11.308万円
(共益費
9,920円)
- 敷
- -
- 礼
- 150,000円
- 保
- -
- 償
- -
プレサンス DOMECITY コレーレ ***号室の物件のお問い合わせ先・取り扱い店舗
ハウスコム FC弁天町店
- アクセス
-
大阪メトロ 中央線「弁天町駅」徒歩5分
大阪環状線「弁天町駅」徒歩5分
- 住所
- 〒552-0007 大阪府大阪市港区弁天4丁目12-6
- 営業時間
- 10:00~19:00
- 定休日
- 水曜日(年末年始:2025年12月28日(日)~2026年1月3日(土))
- 営業エリア
- 港区・西区・此花区
- 取引態様
- 賃貸仲介業・FC店

























