SHINKA 0602号室(6階/1R)の賃貸物件(賃貸マンション)
東京都中央区にあるSHINKA 0602号室は追い焚き、宅配ボックス、シューズボックス、防犯カメラ、24時間ゴミ出しOKなどが特徴です。最寄り駅の京葉線八丁堀駅から徒歩2分です。SHINKA 0602号室の詳細はハウスコム 押上店までお気軽にお問い合わせください!
情報更新日:
次回更新予定日:
※次回更新予定日について:お店側では順次空室確認を行っていますが、次回更新予定日までに空室確認が行えない場合には、この物件情報は自動的に削除されます。
SHINKA 0602号室の賃貸物件部屋概要
家賃 |
17.9万円
初期費用を |
|---|---|
共益費 |
15,000円
入居可能時期 |
敷金/礼金 |
179,000円 / 179,000円 |
保証金/ |
- / - |
最寄駅 |
|
所在地 |
東京都中央区新川 |
部屋番号 |
0602号室 |
間取り |
1R(洋11.7・S3.9) |
専有面積 |
38.96㎡ |
築年数 |
2017年12月(築9年) |
階数 |
6階部分(地上12階地下1階建) |
方位・位置 |
南西 / その他 |
物件種別 |
賃貸マンション |
構造 |
RC |
駐車場 |
無 |
小学校学区 |
明正小学校 |
中学校学区 |
銀座中学校 |
他の空き部屋 |
ー |
- 学区データについて
- ※学区データは必ずしも正確とは限りません。詳細に関しては最寄店舗または各自治体の教育委員会に必ずご確認ください。
SHINKA 0602号室の特徴
契約条件
楽器演奏もご相談ください。
セキュリティ
この物件の建物には、オートロックや防犯カメラや宅配ボックスが設置されており、来客時には居室内のテレビモニターにて訪問者の顔を確認することができます。
室内設備
お風呂とトイレは一緒のユニットバスです。お風呂には、追い焚き機能が備わっています。 トイレは、温水洗浄便座機能付きになります。 洗濯に便利な設備として、室内洗濯機置場があります。浴室乾燥機も設置されているので、梅雨時の生乾き臭も比較的防ぐことができます。
居室状況
収納スペースとして、玄関にはシューズボックスがあります。
建物設備共用部分
建物の共用スペースに、日々の出入に便利なエレベーターや、いざという時の防犯カメラや、急な外出や不在がちのご家庭の荷物受け取りに便利な宅配ボックスや、居室内を常に清潔に保てる24時間利用可能なゴミ捨て置き場が設置されています。 駐輪場が利用できます。
周辺施設
この物件の学区は、明正小学校区・銀座中学校区です。
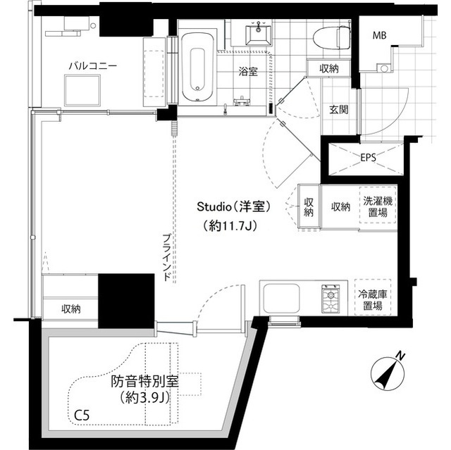
SHINKA 0602号室の間取り
間取り:1R
間取詳細:1R(洋11.7・S3.9)
専有面積:38.96㎡
方位:南西
部屋位置:その他
SHINKA 0602号室の設備
バス・トイレ
追い焚き
浴室乾燥機
温水洗浄便座
玄関
TVモニタ付インターホン
オートロック
宅配ボックス
収納
シューズボックス
室内設備
室内洗濯機置場
位置・立地
2階以上
インフラ
BS
CS
建物設備
エレベーター
防犯カメラ
24時間ゴミ出しOK
駐輪場
入居条件
楽器可・相談
ライフステージ
一人暮らしに人気の設備
カップルに人気の設備
家族に人気の設備
夫婦に人気の設備
三世代で人気の設備
こだわり
セキュリティ対策重視
タイパ重視
雨の日でも洗濯したい
SHINKA 0602号室の賃貸契約情報
毎月支払う |
家賃17.9万円/月共益費15,000円/月 |
|---|---|
初期費用 |
敷金179,000円礼金179,000円保証金-敷引き償却金- |
更新料 |
- |
鍵交換費用 |
- |
室内清掃費用 |
- |
駐車場料金 |
無 |
損保・ |
借家賠付きの火災保険にご加入いただきます。 |
保証会社 |
加入要 保証会社利用料:あんしんQ-Rent あんしんQ-Rent 初回保証料:賃料等の50%(最低2万)、月次保証料:賃料等の1% |
契約期間 |
定期借家 2年 |
入居可能日 |
2026年05月中旬 |
フリーレント期間 |
- |
取引形態 |
一般媒介 |
備考 |
清掃費:58520円(退去時請求).ブラインド清掃費:66000円(退去時請求) |
SHINKA 0602号室の建物情報
建物名称 |
SHINKA |
|---|---|
最寄駅 |
|
所在地 |
東京都中央区新川 |
階層 |
6階部分(地上12階地下1階建) |
構造 |
RC |
築年数 |
2017年12月(築9年) |
駐車場 |
無 |
小学校学区 |
明正小学校 |
中学校学区 |
銀座中学校 |
- 学区データについて
- ※学区データは必ずしも正確とは限りません。詳細に関しては最寄店舗または各自治体の教育委員会に必ずご確認ください。
無料この物件に問い合わせ
- SHINKA 0602号室

-
17.9万円
(共益費
15,000円)
- 敷
- 179,000円
- 礼
- 179,000円
- 保
- -
- 償
- -
SHINKA 0602号室の物件のお問い合わせ先・取り扱い店舗
ハウスコム 押上店
- アクセス
-
東京メトロ 半蔵門線「押上駅」B1出口徒歩1分
- 住所
- 〒130-0002 東京都墨田区業平4丁目16−2 三橋ビル 1F
- 営業時間
- 10:00~18:00
- 定休日
- 水曜日
- 営業エリア
- 墨田区・江東区・中央区・台東区・江戸川区・葛飾区・足立区・荒川区
- 取引態様
- 賃貸仲介業



























