CASA REGULUS新大阪北 ***号室(2階/1K)の賃貸物件(賃貸マンション)
大阪府大阪市淀川区にあるCASA REGULUS新大阪北 ***号室は宅配ボックス、シューズボックス、室内洗濯機置場、都市ガス、エレベーターなどが特徴です。最寄り駅の東海道本線(JR西日本)新大阪駅から徒歩8分です。CASA REGULUS新大阪北 ***号室の詳細はミニミニ FC新大阪店までお気軽にお問い合わせください!
情報更新日:
次回更新予定日:
※次回更新予定日について:お店側では順次空室確認を行っていますが、次回更新予定日までに空室確認が行えない場合には、この物件情報は自動的に削除されます。
CASA REGULUS新大阪北 ***号室の賃貸物件部屋概要
家賃 |
6.65万円
初期費用を |
|---|---|
共益費 |
10,000円
入居可能時期 |
敷金/礼金 |
- / - |
保証金/ |
- / - |
最寄駅 |
|
所在地 |
大阪府大阪市淀川区宮原 |
部屋番号 |
***号室 |
間取り |
1K(洋7・K2) |
専有面積 |
23.20㎡ |
築年数 |
2023年1月(築4年) |
階数 |
2階部分(地上13階建) |
方位・位置 |
北 / 角部屋 |
物件種別 |
賃貸マンション |
構造 |
RC |
駐車場 |
無 |
小学校学区 |
北中島小学校 |
中学校学区 |
宮原中学校 |
他の空き部屋 |
***号室 ***号室 ***号室 ***号室 ***号室 |
- 学区データについて
- ※学区データは必ずしも正確とは限りません。詳細に関しては最寄店舗または各自治体の教育委員会に必ずご確認ください。
CASA REGULUS新大阪北 ***号室の特徴
-
一人暮らしに人気の設備

-
カップルに人気の設備

-
家族に人気の設備

-
夫婦に人気の設備

-
三世代で人気の設備

-
外で子どもと遊びたい

-
急な来客でも駐車したい

-
雨の日でも洗濯したい

-
洋室で暮らしたい

-
オークション・通販が好き

-
ガーデニングが好き

契約条件
敷金と礼金が無料なため、初期費用が比較的安くなる傾向にあります。
セキュリティ
この物件の建物には、オートロックや宅配ボックスが設置されております。
室内設備
システムキッチンには、2つ以上のガスコンロが備え付けられています。 トイレは、温水洗浄便座機能付きになります。 女性に嬉しい設備の独立した洗面化粧台があります。 洗濯に便利な設備として、室内洗濯機置場があります。浴室乾燥機も設置されているので、梅雨時の生乾き臭も比較的防ぐことができます。
居室状況
お部屋の床は、フローリングとなっており、エアコンが設置されています。 インターネットも無料で入居後すぐ生活が始められます。 収納スペースとして、基本的な居室にクローゼットを設置、玄関にはシューズボックスがあります。
建物設備共用部分
居室外の専有スペースとして、洗濯物を干すなどの用途として利用できるバルコニーがあります。 建物の共用スペースに、日々の出入に便利なエレベーターや、急な外出や不在がちのご家庭の荷物受け取りに便利な宅配ボックスが設置されています。 駐車場があり2台以上の車で利用することができます。駐輪場が利用できます。
周辺施設
この物件の学区は、北中島小学校区・宮原中学校区です。
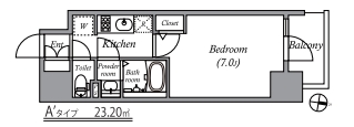
CASA REGULUS新大阪北 ***号室の間取り
間取り:1K
間取詳細:1K(洋7・K2)
専有面積:23.20㎡
方位:北
部屋位置:角部屋
CASA REGULUS新大阪北 ***号室の設備
キッチン
システムキッチン
ガスコンロ
ガスコンロ二口以上
バス・トイレ
バス・トイレ別
浴室乾燥機
温水洗浄便座
独立洗面台
玄関
オートロック
宅配ボックス
収納
クローゼット
シューズボックス
バルコニー
バルコニー
ルーフバルコニー
室内設備
エアコン
フローリング
室内洗濯機置場
位置・立地
2階以上
角部屋
インフラ
インターネット可
BS
CS
都市ガス
建物設備
エレベーター
駐車2台以上可
駐輪場
入居条件
オンライン相談可
オンライン内見可
ライフステージ
一人暮らしに人気の設備
カップルに人気の設備
家族に人気の設備
夫婦に人気の設備
三世代で人気の設備
こだわり
外で子どもと遊びたい
急な来客でも駐車したい
雨の日でも洗濯したい
洋室で暮らしたい
趣味
オークション・通販が好き
ガーデニングが好き
お得な条件
インターネット無料
CASA REGULUS新大阪北 ***号室の賃貸契約情報
毎月支払う |
家賃6.65万円/月共益費10,000円/月 |
|---|---|
初期費用 |
敷金-礼金-保証金-敷引き償却金- |
更新料 |
- |
鍵交換費用 |
24,200円 |
室内清掃費用 |
25,300円 |
駐車場料金 |
無 |
損保・ |
借家賠付きの火災保険にご加入いただきます。 |
保証会社 |
加入要 保証会社:オリコフォレントインシュア 保証会社利用料:保証会社加入要 |
契約期間 |
1年 |
入居可能日 |
2026年04月下旬 |
フリーレント期間 |
- |
取引形態 |
一般媒介 |
備考 |
- |
CASA REGULUS新大阪北 ***号室の建物情報
建物名称 |
CASA REGULUS新大阪北 |
|---|---|
最寄駅 |
|
所在地 |
大阪府大阪市淀川区宮原 |
階層 |
2階部分(地上13階建) |
構造 |
RC |
築年数 |
2023年1月(築4年) |
駐車場 |
無 |
小学校学区 |
北中島小学校 |
中学校学区 |
宮原中学校 |
- 学区データについて
- ※学区データは必ずしも正確とは限りません。詳細に関しては最寄店舗または各自治体の教育委員会に必ずご確認ください。
無料この物件に問い合わせ
- CASA REGULUS新大阪北 ***号室

-
6.65万円
(共益費
10,000円)
- 敷
- -
- 礼
- -
- 保
- -
- 償
- -
CASA REGULUS新大阪北 ***号室の物件のお問い合わせ先・取り扱い店舗
ミニミニ FC新大阪店
- アクセス
-
大阪メトロ 御堂筋線「新大阪駅」徒歩2分
大阪メトロ 御堂筋線「西中島南方駅」徒歩6分
東海道本線(JR西日本)「新大阪駅」徒歩3分
- 住所
- 〒532-0011 大阪府大阪市淀川区西中島5-14-10 新大阪トヨタビル1F
- 営業時間
- 10:00~18:00
- 定休日
- なし
- 営業エリア
- 大阪市淀川区,大阪市東淀川区,大阪市西淀川区,北区,豊中市,吹田市,摂津市
- 取引態様
- 賃貸仲介業
























