ザ・パークハビオ南大井 503号室(5階/1DK)の賃貸物件(賃貸マンション)
東京都品川区にあるザ・パークハビオ南大井 503号室はガスコンロ二口以上、TVモニタ付インターホン、宅配ボックス、クローゼット、シューズボックスなどが特徴です。最寄り駅の京急本線立会川駅から徒歩5分です。ザ・パークハビオ南大井 503号室の詳細はハウスコム 大井町店までお気軽にお問い合わせください!
情報更新日:
次回更新予定日:
※次回更新予定日について:お店側では順次空室確認を行っていますが、次回更新予定日までに空室確認が行えない場合には、この物件情報は自動的に削除されます。
ザ・パークハビオ南大井 503号室の賃貸物件部屋概要
家賃 |
15万円
初期費用を |
|---|---|
共益費 |
15,000円
入居可能時期 |
敷金/礼金 |
1ヶ月 / - |
保証金/ |
- / - |
最寄駅 |
|
所在地 |
東京都品川区南大井 |
部屋番号 |
503号室 |
間取り |
1DK(洋4.3・DK7.4) |
専有面積 |
32.03㎡ |
築年数 |
2021年5月(築5年) |
階数 |
5階部分(地上15階建) |
方位・位置 |
東 / その他 |
物件種別 |
賃貸マンション |
構造 |
RC |
駐車場 |
- |
小学校学区 |
浜川小学校 |
中学校学区 |
浜川中学校 |
他の空き部屋 |
***号室 ***号室 |
- 学区データについて
- ※学区データは必ずしも正確とは限りません。詳細に関しては最寄店舗または各自治体の教育委員会に必ずご確認ください。
ザ・パークハビオ南大井 503号室の特徴
-
一人暮らしに人気の設備

-
カップルに人気の設備

-
家族に人気の設備

-
夫婦に人気の設備

-
三世代で人気の設備

-
外で子どもと遊びたい

-
雨の日でも洗濯したい

-
洋室で暮らしたい

-
オークション・通販が好き

-
ガーデニングが好き

契約条件
ペットの飼育もご相談ください。 また、ご契約時に保証人は不要です。 礼金が無料なため、初期費用が比較的安くなる傾向にあります。
セキュリティ
この物件の建物には、オートロックや宅配ボックスが設置されており、来客時には居室内のテレビモニターにて訪問者の顔を確認することができます。
室内設備
システムキッチンには、2つ以上のガスコンロが備え付けられています。 女性に嬉しい設備の独立した洗面化粧台があります。 洗濯に便利な設備として、室内洗濯機置場があります。
居室状況
お部屋の床は、フローリングとなっており、エアコンが設置されています。 インターネットも無料で入居後すぐ生活が始められます。 収納スペースとして、基本的な居室にクローゼットを設置、玄関にはシューズボックスがあります。
建物設備共用部分
居室外の専有スペースとして、洗濯物を干すなどの用途として利用できるバルコニーがあります。 建物の共用スペースに、日々の出入に便利なエレベーターや、急な外出や不在がちのご家庭の荷物受け取りに便利な宅配ボックスが設置されています。
周辺施設
この物件の学区は、浜川小学校区・浜川中学校区です。
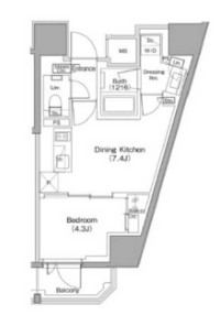
ザ・パークハビオ南大井 503号室の間取り
間取り:1DK
間取詳細:1DK(洋4.3・DK7.4)
専有面積:32.03㎡
方位:東
部屋位置:その他
ザ・パークハビオ南大井 503号室の設備
キッチン
システムキッチン
ガスコンロ
ガスコンロ二口以上
バス・トイレ
バス・トイレ別
独立洗面台
玄関
TVモニタ付インターホン
オートロック
宅配ボックス
収納
クローゼット
シューズボックス
バルコニー
バルコニー
ルーフバルコニー
室内設備
エアコン
フローリング
室内洗濯機置場
位置・立地
2階以上
インフラ
インターネット可
BS
CS
都市ガス
建物設備
エレベーター
入居条件
ペット可・相談
オンライン相談可
オンライン内見可
保証人不要
ライフステージ
一人暮らしに人気の設備
カップルに人気の設備
家族に人気の設備
夫婦に人気の設備
三世代で人気の設備
こだわり
外で子どもと遊びたい
雨の日でも洗濯したい
洋室で暮らしたい
趣味
オークション・通販が好き
ガーデニングが好き
お得な条件
インターネット無料
ザ・パークハビオ南大井 503号室の賃貸契約情報
毎月支払う |
家賃15万円/月共益費15,000円/月 |
|---|---|
初期費用 |
敷金1ヶ月 (15万円)礼金-保証金-敷引き償却金- |
更新料 |
150,000円 |
鍵交換費用 |
33,000円 |
室内清掃費用 |
- |
駆付けサポート24 |
16,500円 |
駐車場料金 |
- |
損保・ |
借家賠付きの火災保険にご加入いただきます。 |
保証会社 |
加入要 保証会社利用料:初回:50% 年間:10000円 |
契約期間 |
2年 |
入居可能日 |
相談 |
フリーレント期間 |
- |
取引形態 |
一般媒介 |
備考 |
1年未満解約時違約金有 ペット飼育時敷金1か月積み増し(小型犬・猫計2匹) |
ザ・パークハビオ南大井 503号室の建物情報
建物名称 |
ザ・パークハビオ南大井 |
|---|---|
最寄駅 |
|
所在地 |
東京都品川区南大井 |
階層 |
5階部分(地上15階建) |
構造 |
RC |
築年数 |
2021年5月(築5年) |
駐車場 |
- |
小学校学区 |
浜川小学校 |
中学校学区 |
浜川中学校 |
- 学区データについて
- ※学区データは必ずしも正確とは限りません。詳細に関しては最寄店舗または各自治体の教育委員会に必ずご確認ください。
無料この物件に問い合わせ
- ザ・パークハビオ南大井 503号室

-
15万円
(共益費
15,000円)
- 敷
- 1ヶ月
- 礼
- -
- 保
- -
- 償
- -
ザ・パークハビオ南大井 503号室の物件のお問い合わせ先・取り扱い店舗
ハウスコム 大井町店
- アクセス
-
京浜東北・根岸線「大井町駅」徒歩1分
- 住所
- 〒140-0014 東京都品川区大井1-2-19
- 営業時間
- 10:00~18:00
- 定休日
- 水曜日
- 営業エリア
- 品川区、大田区 港区
- 取引態様
- 賃貸仲介業










