さくらHills Rokuban Platinum Residence 701号室(7階/2LDK)の賃貸物件(賃貸マンション)
愛知県名古屋市熱田区にあるさくらHills Rokuban Platinum Residence 701号室はカウンターキッチン、ガスコンロ、浴室乾燥機、ルーフバルコニー、防犯カメラなどが特徴です。最寄り駅の名古屋市営地下鉄 名港線六番町駅から徒歩8分です。さくらHills Rokuban Platinum Residence 701号室の詳細はハウスコム 東海通店までお気軽にお問い合わせください!
情報更新日:
次回更新予定日:
※次回更新予定日について:お店側では順次空室確認を行っていますが、次回更新予定日までに空室確認が行えない場合には、この物件情報は自動的に削除されます。
さくらHills Rokuban Platinum Residence 701号室の賃貸物件部屋概要
家賃 |
13.1万円
初期費用を |
|---|---|
共益費 |
9,500円
入居可能時期 |
敷金/礼金 |
- / 1ヶ月 |
保証金/ |
2ヶ月 / - |
最寄駅 |
|
所在地 |
愛知県名古屋市熱田区六番 |
部屋番号 |
701号室 |
間取り |
2LDK(LDK11.4・洋5.2・洋6.2) |
専有面積 |
53.72㎡ |
築年数 |
新築 |
階数 |
7階部分(地上13階建) |
方位・位置 |
南西 / その他 |
物件種別 |
賃貸マンション |
構造 |
RC |
駐車場 |
18,000円 |
小学校学区 |
船方小学校 |
中学校学区 |
日比野中学校 |
他の空き部屋 |
1002号室 1101号室 1202号室 1204号室 ***号室 ***号室 305号室 502号室 505号室 602号室 605号室 703号室 901号室 902号室 903号室 |
- 学区データについて
- ※学区データは必ずしも正確とは限りません。詳細に関しては最寄店舗または各自治体の教育委員会に必ずご確認ください。
さくらHills Rokuban Platinum Residence 701号室の特徴
-
一人暮らしに人気の設備

-
カップルに人気の設備

-
家族に人気の設備

-
夫婦に人気の設備

-
三世代で人気の設備

-
セキュリティ対策重視

-
外で子どもと遊びたい

-
雨の日でも洗濯したい

-
洋室で暮らしたい

-
料理が好き

-
推し活グッズを飾りたい

-
ガーデニングが好き

契約条件
この物件は、2人入居もご契約できます。 ペットの飼育もご相談ください。 また、ご契約時に保証人は不要です。 敷金が無料なため、初期費用が比較的安くなる傾向にあります。
セキュリティ
この物件の建物には、オートロックや防犯カメラや宅配ボックスが設置されており、来客時には居室内のテレビモニターにて訪問者の顔を確認することができます。
室内設備
システムキッチンには、ガスコンロが備え付けられています。 お風呂とトイレは別です。お風呂には、追い焚き機能が備わっています。 トイレは、温水洗浄便座機能付きになります。 女性に嬉しい設備のシャワーの付いている洗面化粧台があります。 洗濯に便利な設備として、室内洗濯機置場があります。浴室乾燥機も設置されているので、梅雨時の生乾き臭も比較的防ぐことができます。
居室状況
お部屋の床は、フローリングとなっており、エアコンが設置されています。 収納スペースとして、基本的な居室にクローゼットがあります。
建物設備共用部分
居室外の専有スペースとして、洗濯物を干すなどの用途として利用できるバルコニーがあります。 建物の共用スペースに、日々の出入に便利なエレベーターや、いざという時の防犯カメラや、急な外出や不在がちのご家庭の荷物受け取りに便利な宅配ボックスが設置されています。 平面駐車場があります。駐輪場が利用できます。
周辺施設
この物件の学区は、船方小学校区・日比野中学校区です。
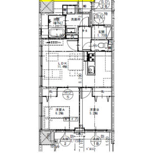
さくらHills Rokuban Platinum Residence 701号室の間取り
間取り:2LDK
間取詳細:2LDK(LDK11.4・洋5.2・洋6.2)
専有面積:53.72㎡
方位:南西
部屋位置:その他
さくらHills Rokuban Platinum Residence 701号室の設備
キッチン
システムキッチン
カウンターキッチン
ガスコンロ
バス・トイレ
バス・トイレ別
追い焚き
浴室乾燥機
温水洗浄便座
独立洗面台
シャワー付洗面化粧台
玄関
TVモニタ付インターホン
オートロック
宅配ボックス
収納
クローゼット
バルコニー
バルコニー
ルーフバルコニー
室内設備
エアコン
フローリング
室内洗濯機置場
位置・立地
2階以上
インフラ
都市ガス
建物設備
エレベーター
防犯カメラ
駐車場
平面駐車場
駐輪場
入居条件
ペット可・相談
2人入居可
オンライン相談可
オンライン内見可
保証人不要
即入居可
ライフステージ
一人暮らしに人気の設備
カップルに人気の設備
家族に人気の設備
夫婦に人気の設備
三世代で人気の設備
こだわり
セキュリティ対策重視
外で子どもと遊びたい
雨の日でも洗濯したい
洋室で暮らしたい
趣味
料理が好き
推し活グッズを飾りたい
ガーデニングが好き
さくらHills Rokuban Platinum Residence 701号室の賃貸契約情報
毎月支払う |
家賃13.1万円/月共益費9,500円/月 |
|---|---|
初期費用 |
敷金-礼金1ヶ月 (13.1万円)保証金2ヶ月敷引き償却金- |
更新料 |
- |
鍵交換費用 |
- |
室内清掃費用 |
- |
駐車場料金 |
18,000円 |
損保・ |
借家賠付きの火災保険にご加入いただきます。 |
保証会社 |
加入要 保証会社:ジェイリース 保証会社利用料:初回保証料:総賃料の70% 申込書と契約者身分証(法人契約の場合は会社謄本)が審査時に必要となります。 |
契約期間 |
2年 |
入居可能日 |
即入居可 |
フリーレント期間 |
- |
取引形態 |
一般媒介 |
備考 |
ペット飼育の場合:ペット共益費として1匹10000円(非課税)、2匹15000円(非課税)となります。(2匹まで) ペットの種類:小型の犬・猫(成体10kg未満に限る) 事前申請覚書締結が必要になります。 無断飼育厳禁/契約開始時期に遡り、費用徴収します。 |
さくらHills Rokuban Platinum Residence 701号室の建物情報
建物名称 |
さくらHills Rokuban Platinum Residence |
|---|---|
最寄駅 |
|
所在地 |
愛知県名古屋市熱田区六番 |
階層 |
7階部分(地上13階建) |
構造 |
RC |
築年数 |
新築 |
駐車場 |
18,000円 |
小学校学区 |
船方小学校 |
中学校学区 |
日比野中学校 |
- 学区データについて
- ※学区データは必ずしも正確とは限りません。詳細に関しては最寄店舗または各自治体の教育委員会に必ずご確認ください。
無料この物件に問い合わせ
- さくらHills Rokuban Platinum Residence 701号室

-
13.1万円
(共益費
9,500円)
- 敷
- -
- 礼
- 1ヶ月
- 保
- 2ヶ月
- 償
- -
さくらHills Rokuban Platinum Residence 701号室の物件のお問い合わせ先・取り扱い店舗
ハウスコム 東海通店
- アクセス
-
名古屋市営地下鉄 名港線「東海通駅」4番出口徒歩2分
- 住所
- 〒455-0002 愛知県名古屋市港区東海通4丁目15−2 メゾン・ド・トウカイ 1階
- 営業時間
- 10:00~18:00
- 定休日
- 水曜日
- 営業エリア
- 港区、中川区、熱田区、南区、東海市、海部郡蟹江町、弥富市
- 取引態様
- 賃貸仲介業





























