メインステージ立川Ⅳ 508号室(5階/1K)の賃貸物件(賃貸マンション)
東京都立川市にあるメインステージ立川Ⅳ 508号室はガスコンロ二口以上、バス・トイレ別、温水洗浄便座、2階以上、都市ガスなどが特徴です。最寄り駅の中央本線(JR東日本)立川駅から徒歩9分です。メインステージ立川Ⅳ 508号室の詳細はハウスコム 立川南口店までお気軽にお問い合わせください!
情報更新日:
次回更新予定日:
※次回更新予定日について:お店側では順次空室確認を行っていますが、次回更新予定日までに空室確認が行えない場合には、この物件情報は自動的に削除されます。
メインステージ立川Ⅳ 508号室の賃貸物件部屋概要
家賃 |
9.05万円
初期費用を |
|---|---|
共益費 |
15,000円
入居可能時期 |
敷金/礼金 |
- / 1ヶ月 |
保証金/ |
- / - |
最寄駅 |
|
所在地 |
東京都立川市錦町 |
部屋番号 |
508号室 |
間取り |
1K(洋6) |
専有面積 |
20.66㎡ |
築年数 |
2020年8月(築6年) |
階数 |
5階部分(地上8階建) |
方位・位置 |
南西 / その他 |
物件種別 |
賃貸マンション |
構造 |
RC |
駐車場 |
- |
小学校学区 |
第三小学校 |
中学校学区 |
立川第三中学校 |
他の空き部屋 |
ー |
- 学区データについて
- ※学区データは必ずしも正確とは限りません。詳細に関しては最寄店舗または各自治体の教育委員会に必ずご確認ください。
メインステージ立川Ⅳ 508号室の特徴
-
一人暮らしに人気の設備

-
カップルに人気の設備

-
家族に人気の設備

-
夫婦に人気の設備

-
三世代で人気の設備

-
セキュリティ対策重視

-
タイパ重視

-
外で子どもと遊びたい

-
雨の日でも洗濯したい

-
洋室で暮らしたい

-
オークション・通販が好き

-
ガーデニングが好き

契約条件
この物件は、2人入居やルームシェアもご契約できます。 ペットの飼育もご相談ください。 敷金が無料なため、初期費用が比較的安くなる傾向にあります。
セキュリティ
この物件の建物には、オートロックや防犯カメラや宅配ボックスが設置されており、来客時には居室内のテレビモニターにて訪問者の顔を確認することができます。
室内設備
システムキッチンには、2つ以上のガスコンロが備え付けられています。 トイレは、温水洗浄便座機能付きになります。 女性に嬉しい設備のシャワーの付いている洗面化粧台があります。 洗濯に便利な設備として、浴室乾燥機も設置されているので、梅雨時の生乾き臭も比較的防ぐことができます。
居室状況
お部屋の床は、フローリングとなっており、エアコンが設置されています。 照明器具が備え付けられており、インターネットも無料で入居後すぐ生活が始められます。 収納スペースとして、基本的な居室にクローゼットを設置、玄関にはシューズボックスがあります。
建物設備共用部分
居室外の専有スペースとして、洗濯物を干すなどの用途として利用できるバルコニーがあります。 建物の共用スペースに、日々の出入に便利なエレベーターや、いざという時の防犯カメラや、急な外出や不在がちのご家庭の荷物受け取りに便利な宅配ボックスや、居室内を常に清潔に保てる24時間利用可能なゴミ捨て置き場が設置されています。 駐輪場、バイク置き場が利用できます。
周辺施設
この物件の学区は、第三小学校区・立川第三中学校区です。
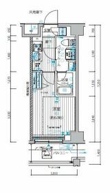
メインステージ立川Ⅳ 508号室の間取り
間取り:1K
間取詳細:1K(洋6)
専有面積:20.66㎡
方位:南西
部屋位置:その他
メインステージ立川Ⅳ 508号室の設備
キッチン
システムキッチン
ガスコンロ
ガスコンロ二口以上
バス・トイレ
バス・トイレ別
浴室乾燥機
温水洗浄便座
独立洗面台
シャワー付洗面化粧台
玄関
TVモニタ付インターホン
オートロック
宅配ボックス
収納
クローゼット
シューズボックス
バルコニー
バルコニー
ルーフバルコニー
室内設備
エアコン
フローリング
照明器具付
位置・立地
2階以上
インフラ
インターネット可
BS
CS
都市ガス
建物設備
エレベーター
防犯カメラ
24時間ゴミ出しOK
駐輪場
バイク置き場
入居条件
ペット可・相談
2人入居可
ルームシェア可・相談
オンライン相談可
オンライン内見可
ライフステージ
一人暮らしに人気の設備
カップルに人気の設備
家族に人気の設備
夫婦に人気の設備
三世代で人気の設備
こだわり
セキュリティ対策重視
タイパ重視
外で子どもと遊びたい
雨の日でも洗濯したい
洋室で暮らしたい
趣味
オークション・通販が好き
ガーデニングが好き
お得な条件
インターネット無料
メインステージ立川Ⅳ 508号室の賃貸契約情報
毎月支払う |
家賃9.05万円/月共益費15,000円/月 |
|---|---|
初期費用 |
敷金-礼金1ヶ月 (9.05万円)保証金-敷引き償却金- |
更新料 |
135,750円 |
鍵交換費用 |
- |
室内清掃費用 |
- |
ハウスクリーニング費用(退去時請求) |
49,500円 |
退去時鍵交換費用(契約時請求) |
29,700円 |
AMLクラブサポート費用(契約時請求) |
16,500円 |
駐車場料金 |
- |
損保・ |
借家賠付きの火災保険にご加入いただきます。 |
保証会社 |
加入要 保証会社利用料:家賃総額より50%~ |
契約期間 |
2年 |
入居可能日 |
2026年05月上旬 |
フリーレント期間 |
- |
取引形態 |
一般媒介 |
備考 |
- |
メインステージ立川Ⅳ 508号室の建物情報
建物名称 |
メインステージ立川Ⅳ |
|---|---|
最寄駅 |
|
所在地 |
東京都立川市錦町 |
階層 |
5階部分(地上8階建) |
構造 |
RC |
築年数 |
2020年8月(築6年) |
駐車場 |
- |
小学校学区 |
第三小学校 |
中学校学区 |
立川第三中学校 |
- 学区データについて
- ※学区データは必ずしも正確とは限りません。詳細に関しては最寄店舗または各自治体の教育委員会に必ずご確認ください。
無料この物件に問い合わせ
- メインステージ立川Ⅳ 508号室

-
9.05万円
(共益費
15,000円)
- 敷
- -
- 礼
- 1ヶ月
- 保
- -
- 償
- -
メインステージ立川Ⅳ 508号室の物件のお問い合わせ先・取り扱い店舗
ハウスコム 立川南口店
- アクセス
-
中央本線(JR東日本)「立川駅」南口徒歩1分
- 住所
- 〒190-0023 東京都立川市柴崎町3丁目6−1 立川Nビル 1階
- 営業時間
- 10:00~18:00
- 定休日
- なし
- 営業エリア
- 立川市・日野市・昭島市・国立市・国分寺市・東大和市・武蔵村山市・福生市・あきる野市・羽村市・青梅市・西多摩郡
- 取引態様
- 賃貸仲介業












