レオパレスはなみずき壱番館 201号室(2階/1SLDK)の賃貸物件(賃貸アパート)
神奈川県相模原市緑区にあるレオパレスはなみずき壱番館 201号室はバス・トイレ別、バルコニー、ルーフバルコニー、室内洗濯機置場、2階以上などが特徴です。最寄り駅の横浜線橋本駅からバスで11分、原宿公園西から徒歩5分です。レオパレスはなみずき壱番館 201号室の詳細はハウスコム 橋本店までお気軽にお問い合わせください!
情報更新日:
次回更新予定日:
※次回更新予定日について:お店側では順次空室確認を行っていますが、次回更新予定日までに空室確認が行えない場合には、この物件情報は自動的に削除されます。
レオパレスはなみずき壱番館 201号室の賃貸物件部屋概要
家賃 |
7.8万円
初期費用を |
|---|---|
共益費 |
5,000円
入居可能時期 |
敷金/礼金 |
- / 78,000円 |
保証金/ |
- / - |
最寄駅 |
|
所在地 |
神奈川県相模原市緑区原宿南 |
部屋番号 |
201号室 |
間取り |
1SLDK |
専有面積 |
43.06㎡ |
築年数 |
1998年6月(築28年) |
階数 |
2階部分(地上2階建) |
方位・位置 |
ー / その他 |
物件種別 |
賃貸アパート |
構造 |
鉄骨造 |
駐車場 |
8,800円 |
小学校学区 |
ー |
中学校学区 |
ー |
他の空き部屋 |
ー |
- 学区データについて
- ※学区データは必ずしも正確とは限りません。詳細に関しては最寄店舗または各自治体の教育委員会に必ずご確認ください。
レオパレスはなみずき壱番館 201号室の特徴
契約条件
敷金が無料なため、初期費用が比較的安くなる傾向にあります。
室内設備
電気コンロが備え付けられています。 女性に嬉しい設備の独立した洗面化粧台があります。 洗濯に便利な設備として、室内洗濯機置場があります。
居室状況
エアコンが設置されています。
建物設備共用部分
居室外の専有スペースとして、洗濯物を干すなどの用途として利用できるバルコニーがあります。
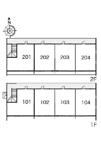
レオパレスはなみずき壱番館 201号室の間取り
間取り:1SLDK
間取詳細:1SLDK
専有面積:43.06㎡
方位:ー
部屋位置:その他
レオパレスはなみずき壱番館 201号室の設備
キッチン
電気コンロ
バス・トイレ
バス・トイレ別
独立洗面台
バルコニー
バルコニー
ルーフバルコニー
室内設備
エアコン
室内洗濯機置場
位置・立地
2階以上
最上階
インフラ
インターネット可
ライフステージ
一人暮らしに人気の設備
カップルに人気の設備
家族に人気の設備
夫婦に人気の設備
三世代で人気の設備
こだわり
外で子どもと遊びたい
雨の日でも洗濯したい
趣味
ガーデニングが好き
レオパレスはなみずき壱番館 201号室の賃貸契約情報
毎月支払う |
家賃7.8万円/月共益費5,000円/月 |
|---|---|
初期費用 |
敷金-礼金78,000円保証金-敷引き償却金- |
更新料 |
- |
鍵交換費用 |
16,500円 |
室内清掃費用 |
52,800円 |
抗菌施工(任意) |
34,870円 |
駐車場料金 |
8,800円 |
損保・ |
借家賠付きの火災保険にご加入いただきます。 |
保証会社 |
加入要 保証会社利用料:保証料:100190円(契約内容により100~120%で変動有)※記載金額は120%の場合 |
契約期間 |
- |
入居可能日 |
2026年05月下旬 |
フリーレント期間 |
- |
取引形態 |
一般媒介 |
備考 |
- |
レオパレスはなみずき壱番館 201号室の建物情報
建物名称 |
レオパレスはなみずき壱番館 |
|---|---|
最寄駅 |
|
所在地 |
神奈川県相模原市緑区原宿南 |
階層 |
2階部分(地上2階建) |
構造 |
鉄骨造 |
築年数 |
1998年6月(築28年) |
駐車場 |
8,800円 |
小学校学区 |
ー |
中学校学区 |
ー |
- 学区データについて
- ※学区データは必ずしも正確とは限りません。詳細に関しては最寄店舗または各自治体の教育委員会に必ずご確認ください。
無料この物件に問い合わせ
- レオパレスはなみずき壱番館 201号室

-
7.8万円
(共益費
5,000円)
- 敷
- -
- 礼
- 78,000円
- 保
- -
- 償
- -
レオパレスはなみずき壱番館 201号室の物件のお問い合わせ先・取り扱い店舗
ハウスコム 橋本店
土日営業
- アクセス
-
横浜線「橋本駅」北口徒歩1分
- 住所
- 〒252-0143 神奈川県相模原市緑区橋本6−2−2 B’sタワー橋本E棟2階
- 営業時間
- 10:00~18:00
- 定休日
- 水曜日
- 営業エリア
- 相模原市、町田市、八王子市、多摩市
- 取引態様
- 賃貸仲介業
お問い合わせNo. HC5-930392-201-0151

















