グランアセット大塚N 401号室(4階/1K)の賃貸物件(賃貸マンション)
東京都豊島区にあるグランアセット大塚N 401号室はシステムキッチン、温水洗浄便座、TVモニタ付インターホン、角部屋、オンライン相談可などが特徴です。最寄り駅の山手線大塚駅から徒歩8分です。グランアセット大塚N 401号室の詳細はハウスコム 池袋西口店までお気軽にお問い合わせください!
情報更新日:
次回更新予定日:
※次回更新予定日について:お店側では順次空室確認を行っていますが、次回更新予定日までに空室確認が行えない場合には、この物件情報は自動的に削除されます。
グランアセット大塚N 401号室の賃貸物件部屋概要
家賃 |
10.3万円
初期費用を |
|---|---|
共益費 |
5,000円
入居可能時期 |
敷金/礼金 |
- / 1ヶ月 |
保証金/ |
- / - |
最寄駅 |
|
所在地 |
東京都豊島区巣鴨 |
部屋番号 |
401号室 |
間取り |
1K(洋10.2) |
専有面積 |
29.02㎡ |
築年数 |
2007年2月(築20年) |
階数 |
4階部分(地上5階建) |
方位・位置 |
南西 / 角部屋 |
物件種別 |
賃貸マンション |
構造 |
RC |
駐車場 |
- |
小学校学区 |
清和小学校 |
中学校学区 |
巣鴨北中学校 |
他の空き部屋 |
ー |
- 学区データについて
- ※学区データは必ずしも正確とは限りません。詳細に関しては最寄店舗または各自治体の教育委員会に必ずご確認ください。
グランアセット大塚N 401号室の特徴
契約条件
ご契約時に保証人は不要です。 敷金が無料なため、初期費用が比較的安くなる傾向にあります。
セキュリティ
この物件の建物には、オートロックが設置されており、来客時には居室内のテレビモニターにて訪問者の顔を確認することができます。
室内設備
システムキッチンには、2つ以上のガスコンロが備え付けられています。 お風呂とトイレは別です。お風呂には、追い焚き機能が備わっています。 トイレは、温水洗浄便座機能付きになります。 洗濯に便利な設備として、室内洗濯機置場があります。浴室乾燥機も設置されているので、梅雨時の生乾き臭も比較的防ぐことができます。
居室状況
お部屋の床は、フローリングとなっており、エアコンが設置されています。 収納スペースとして、基本的な居室にクローゼットがあります。
建物設備共用部分
居室外の専有スペースとして、洗濯物を干すなどの用途として利用できるバルコニーがあります。 建物の共用スペースに、日々の出入に便利なエレベーターが設置されています。 駐輪場が利用できます。
周辺施設
この物件の学区は、清和小学校区・巣鴨北中学校区です。
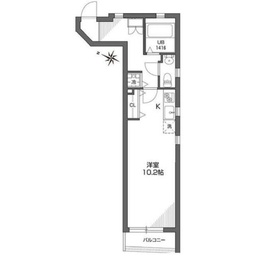
グランアセット大塚N 401号室の間取り
間取り:1K
間取詳細:1K(洋10.2)
専有面積:29.02㎡
方位:南西
部屋位置:角部屋
グランアセット大塚N 401号室の設備
キッチン
システムキッチン
ガスコンロ
ガスコンロ二口以上
バス・トイレ
バス・トイレ別
追い焚き
浴室乾燥機
温水洗浄便座
玄関
TVモニタ付インターホン
オートロック
収納
クローゼット
バルコニー
バルコニー
ルーフバルコニー
室内設備
エアコン
フローリング
室内洗濯機置場
位置・立地
2階以上
角部屋
インフラ
都市ガス
建物設備
エレベーター
駐輪場
入居条件
オンライン相談可
オンライン内見可
保証人不要
ライフステージ
一人暮らしに人気の設備
カップルに人気の設備
家族に人気の設備
夫婦に人気の設備
三世代で人気の設備
こだわり
外で子どもと遊びたい
雨の日でも洗濯したい
洋室で暮らしたい
趣味
ガーデニングが好き
グランアセット大塚N 401号室の賃貸契約情報
毎月支払う |
家賃10.3万円/月共益費5,000円/月 |
|---|---|
初期費用 |
敷金-礼金1ヶ月 (10.3万円)保証金-敷引き償却金- |
更新料 |
103,000円 |
鍵交換費用 |
- |
室内清掃費用 |
55,000円 |
24時間サポート |
22,000円 |
駐車場料金 |
- |
損保・ |
借家賠付きの火災保険にご加入いただきます。 |
保証会社 |
加入要 保証会社利用料:初回保証料:総賃料の50% 月額:総賃料の1% |
契約期間 |
2年 |
入居可能日 |
2026年06月上旬 |
フリーレント期間 |
- |
取引形態 |
一般媒介 |
備考 |
- |
グランアセット大塚N 401号室の建物情報
建物名称 |
グランアセット大塚N |
|---|---|
最寄駅 |
|
所在地 |
東京都豊島区巣鴨 |
階層 |
4階部分(地上5階建) |
構造 |
RC |
築年数 |
2007年2月(築20年) |
駐車場 |
- |
小学校学区 |
清和小学校 |
中学校学区 |
巣鴨北中学校 |
- 学区データについて
- ※学区データは必ずしも正確とは限りません。詳細に関しては最寄店舗または各自治体の教育委員会に必ずご確認ください。
無料この物件に問い合わせ
- グランアセット大塚N 401号室

-
10.3万円
(共益費
5,000円)
- 敷
- -
- 礼
- 1ヶ月
- 保
- -
- 償
- -
グランアセット大塚N 401号室の物件のお問い合わせ先・取り扱い店舗
ハウスコム 池袋西口店
- アクセス
-
山手線「池袋駅」西口徒歩1分
東京メトロ 丸ノ内線「池袋駅」D11出口徒歩1分
- 住所
- 〒171-0021 東京都豊島区西池袋1丁目19−6 松長ビル 2階
- 営業時間
- 10:00~18:00
- 定休日
- なし
- 営業エリア
- 豊島区 板橋区 新宿区 練馬区 文京区
- 取引態様
- 賃貸仲介業













