J.GRAN Court 品川西大井WE 422号室(4階/1DK)の賃貸物件(賃貸マンション)
東京都品川区にあるJ.GRAN Court 品川西大井WE 422号室は独立洗面台、室内洗濯機置場、エレベーター、防犯カメラ、バイク置き場などが特徴です。最寄り駅の横須賀線西大井駅から徒歩7分です。J.GRAN Court 品川西大井WE 422号室の詳細はハウスコム 大森店までお気軽にお問い合わせください!
情報更新日:
次回更新予定日:
※次回更新予定日について:お店側では順次空室確認を行っていますが、次回更新予定日までに空室確認が行えない場合には、この物件情報は自動的に削除されます。
J.GRAN Court 品川西大井WE 422号室の賃貸物件部屋概要
家賃 |
14.4万円
初期費用を |
|---|---|
共益費 |
15,000円
入居可能時期 |
敷金/礼金 |
1ヶ月 / 1ヶ月 |
保証金/ |
- / - |
最寄駅 |
|
所在地 |
東京都品川区西大井 |
部屋番号 |
422号室 |
間取り |
1DK(DK6.7・洋3.4) |
専有面積 |
27.17㎡ |
築年数 |
2023年8月(築3年) |
階数 |
4階部分(地上5階建) |
方位・位置 |
東 / その他 |
物件種別 |
賃貸マンション |
構造 |
RC |
駐車場 |
無 |
小学校学区 |
伊藤学園義務教育学校 |
中学校学区 |
伊藤学園義務教育学校 |
他の空き部屋 |
206号室 221号室 309号室 415号室 516号室 |
- 学区データについて
- ※学区データは必ずしも正確とは限りません。詳細に関しては最寄店舗または各自治体の教育委員会に必ずご確認ください。
J.GRAN Court 品川西大井WE 422号室の特徴
-
一人暮らしに人気の設備

-
カップルに人気の設備

-
家族に人気の設備

-
夫婦に人気の設備

-
三世代で人気の設備

-
セキュリティ対策重視

-
外で子どもと遊びたい

-
雨の日でも洗濯したい

-
洋室で暮らしたい

-
ガーデニングが好き

契約条件
ペットの飼育もご相談ください。 また、ご契約時に保証人は不要です。 お支払いは、初期費用と家賃がクレジットカードにて決済できます。
セキュリティ
この物件の建物には、オートロックや防犯カメラや宅配ボックスが設置されており、来客時には居室内のテレビモニターにて訪問者の顔を確認することができます。
室内設備
システムキッチンには、2つ以上のガスコンロが備え付けられています。 トイレは、温水洗浄便座機能付きになります。 女性に嬉しい設備のシャワーの付いている洗面化粧台があります。 洗濯に便利な設備として、室内洗濯機置場があります。浴室乾燥機も設置されているので、梅雨時の生乾き臭も比較的防ぐことができます。
居室状況
お部屋の床は、フローリングとなっており、エアコンが設置されています。 収納スペースとして、基本的な居室にクローゼットを設置、玄関にはシューズボックスがあります。
建物設備共用部分
居室外の専有スペースとして、洗濯物を干すなどの用途として利用できるバルコニーがあります。 建物の共用スペースに、日々の出入に便利なエレベーターや、いざという時の防犯カメラや、急な外出や不在がちのご家庭の荷物受け取りに便利な宅配ボックスが設置されています。 バイク置き場が利用できます。
周辺施設
この物件の学区は、伊藤学園義務教育学校区・伊藤学園義務教育学校区です。
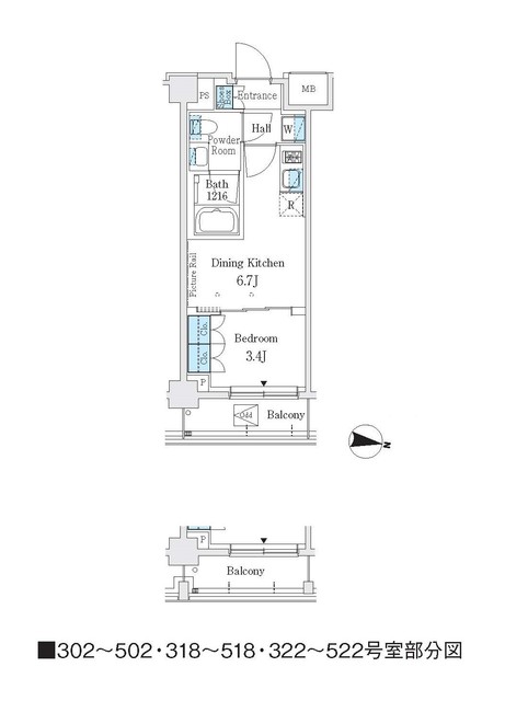
J.GRAN Court 品川西大井WE 422号室の間取り
間取り:1DK
間取詳細:1DK(DK6.7・洋3.4)
専有面積:27.17㎡
方位:東
部屋位置:その他
J.GRAN Court 品川西大井WE 422号室の設備
キッチン
システムキッチン
ガスコンロ
ガスコンロ二口以上
バス・トイレ
バス・トイレ別
浴室乾燥機
温水洗浄便座
独立洗面台
シャワー付洗面化粧台
玄関
TVモニタ付インターホン
オートロック
宅配ボックス
収納
クローゼット
シューズボックス
バルコニー
バルコニー
ルーフバルコニー
室内設備
エアコン
フローリング
室内洗濯機置場
位置・立地
2階以上
インフラ
インターネット可
BS
CS
都市ガス
建物設備
エレベーター
防犯カメラ
バイク置き場
入居条件
ペット可・相談
オンライン相談可
オンライン内見可
保証人不要
ライフステージ
一人暮らしに人気の設備
カップルに人気の設備
家族に人気の設備
夫婦に人気の設備
三世代で人気の設備
こだわり
セキュリティ対策重視
外で子どもと遊びたい
雨の日でも洗濯したい
洋室で暮らしたい
趣味
ガーデニングが好き
お得な条件
初期費用カード決済可
家賃カード決済可
J.GRAN Court 品川西大井WE 422号室の賃貸契約情報
毎月支払う |
家賃14.4万円/月共益費15,000円/月 |
|---|---|
初期費用 |
敷金1ヶ月 (14.4万円)礼金1ヶ月 (14.4万円)保証金-敷引き償却金- |
更新料 |
144,000円 |
鍵交換費用 |
- |
室内清掃費用 |
- |
室内清掃費 |
44,000円 |
鍵交換費 |
16,500円 |
駐車場料金 |
無 |
損保・ |
借家賠付きの火災保険にご加入いただきます。 |
保証会社 |
加入要 保証会社:クレディセゾン 保証会社利用料:初回保証委託料(最低15,000円):月額賃料等の50%、 2年目以降:10,000円/年 |
契約期間 |
2年 |
入居可能日 |
2026年05月中旬 |
フリーレント期間 |
- |
取引形態 |
一般媒介 |
備考 |
ペット相談可(敷金1か月積増、小型犬、1匹まで) |
J.GRAN Court 品川西大井WE 422号室の建物情報
建物名称 |
J.GRAN Court 品川西大井WE |
|---|---|
最寄駅 |
|
所在地 |
東京都品川区西大井 |
階層 |
4階部分(地上5階建) |
構造 |
RC |
築年数 |
2023年8月(築3年) |
駐車場 |
無 |
小学校学区 |
伊藤学園義務教育学校 |
中学校学区 |
伊藤学園義務教育学校 |
- 学区データについて
- ※学区データは必ずしも正確とは限りません。詳細に関しては最寄店舗または各自治体の教育委員会に必ずご確認ください。
無料この物件に問い合わせ
- J.GRAN Court 品川西大井WE 422号室

-
14.4万円
(共益費
15,000円)
- 敷
- 1ヶ月
- 礼
- 1ヶ月
- 保
- -
- 償
- -
J.GRAN Court 品川西大井WE 422号室の物件のお問い合わせ先・取り扱い店舗
ハウスコム 大森店
- アクセス
-
京浜東北・根岸線「大森駅」徒歩1分
- 住所
- 〒143-0023 東京都大田区山王2丁目2−4
- 営業時間
- 10:00~18:00
- 定休日
- 水曜日
- 営業エリア
- 大田区、品川区、港区
- 取引態様
- 賃貸仲介業





























