ザ・パークハビオ江坂公園 ***号室(6階/1K)の賃貸物件(賃貸マンション)
大阪府吹田市にあるザ・パークハビオ江坂公園 ***号室はシステムキッチン、ルーフバルコニー、エアコン、駐輪場、バイク置き場などが特徴です。最寄り駅の大阪メトロ 御堂筋線江坂駅から徒歩4分です。ザ・パークハビオ江坂公園 ***号室の詳細はミニミニ FC江坂店までお気軽にお問い合わせください!
情報更新日:
次回更新予定日:
※次回更新予定日について:お店側では順次空室確認を行っていますが、次回更新予定日までに空室確認が行えない場合には、この物件情報は自動的に削除されます。
ザ・パークハビオ江坂公園 ***号室の賃貸物件部屋概要
家賃 |
10.1万円
初期費用を |
|---|---|
共益費 |
10,000円
入居可能時期 |
敷金/礼金 |
1ヶ月 / 1ヶ月 |
保証金/ |
- / - |
最寄駅 |
|
所在地 |
大阪府吹田市江坂町 |
部屋番号 |
***号室 |
間取り |
1K(洋7.7・K2.5) |
専有面積 |
26.13㎡ |
築年数 |
2023年6月(築3年) |
階数 |
6階部分(地上12階建) |
方位・位置 |
北東 / その他 |
物件種別 |
賃貸マンション |
構造 |
RC |
駐車場 |
空無し |
小学校学区 |
豊津第一小学校 |
中学校学区 |
豊津中学校 |
他の空き部屋 |
***号室 ***号室 1205号室 ***号室 ***号室 ***号室 ***号室 ***号室 ***号室 ***号室 ***号室 |
- 学区データについて
- ※学区データは必ずしも正確とは限りません。詳細に関しては最寄店舗または各自治体の教育委員会に必ずご確認ください。
ザ・パークハビオ江坂公園 ***号室の特徴
-
一人暮らしに人気の設備

-
カップルに人気の設備

-
家族に人気の設備

-
夫婦に人気の設備

-
三世代で人気の設備

-
セキュリティ対策重視

-
バリアフリー重視

-
タイパ重視

-
外で子どもと遊びたい

-
雨の日でも洗濯したい

-
洋室で暮らしたい

-
オークション・通販が好き

-
ガーデニングが好き

契約条件
法人契約・事務所のご利用もご相談ください。 また、ご契約時に保証人は不要です。
セキュリティ
この物件の建物には、オートロックや防犯カメラや宅配ボックスが設置されており、来客時には居室内のテレビモニターにて訪問者の顔を確認することができます。
室内設備
システムキッチンには、2つ以上のガスコンロが設置されており、キッチン設備として冷蔵庫が備え付けられています。 お風呂とトイレは別です。お風呂には、追い焚き機能が備わっています。 トイレは、温水洗浄便座機能付きになります。 女性に嬉しい設備のシャワーの付いている洗面化粧台があります。 洗濯に便利な設備として、室内洗濯機置場があります。浴室乾燥機も設置されているので、梅雨時の生乾き臭も比較的防ぐことができます。
居室状況
お部屋の床は、フローリングとなっており、エアコンが設置されています。 家具と家電が備え付けられており、インターネットも無料で入居後すぐ生活が始められます。 収納スペースとして、基本的な居室にクローゼットを設置、玄関にはシューズボックスがあります。
建物設備共用部分
居室外の専有スペースとして、洗濯物を干すなどの用途として利用できるバルコニーがあります。 建物の共用スペースに、日々の出入に便利なエレベーターや、いざという時の防犯カメラや、急な外出や不在がちのご家庭の荷物受け取りに便利な宅配ボックスや、居室内を常に清潔に保てる24時間利用可能なゴミ捨て置き場が設置されています。 駐輪場、バイク置き場が利用できます。
周辺施設
この物件の学区は、豊津第一小学校区・豊津中学校区です。
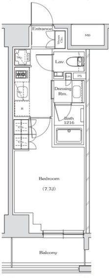
ザ・パークハビオ江坂公園 ***号室の間取り
間取り:1K
間取詳細:1K(洋7.7・K2.5)
専有面積:26.13㎡
方位:北東
部屋位置:その他
ザ・パークハビオ江坂公園 ***号室の設備
キッチン
システムキッチン
ガスコンロ
ガスコンロ二口以上
冷蔵庫付
バス・トイレ
バス・トイレ別
追い焚き
浴室乾燥機
温水洗浄便座
独立洗面台
シャワー付洗面化粧台
玄関
TVモニタ付インターホン
オートロック
宅配ボックス
収納
クローゼット
シューズボックス
バルコニー
バルコニー
ルーフバルコニー
室内設備
エアコン
フローリング
室内洗濯機置場
バリアフリー
家具付
家電付
位置・立地
2階以上
インフラ
インターネット可
CATV
都市ガス
建物設備
エレベーター
防犯カメラ
24時間ゴミ出しOK
駐輪場
バイク置き場
入居条件
事務所可・相談
オンライン相談可
オンライン内見可
保証人不要
ライフステージ
一人暮らしに人気の設備
カップルに人気の設備
家族に人気の設備
夫婦に人気の設備
三世代で人気の設備
こだわり
セキュリティ対策重視
バリアフリー重視
タイパ重視
外で子どもと遊びたい
雨の日でも洗濯したい
洋室で暮らしたい
趣味
オークション・通販が好き
ガーデニングが好き
お得な条件
インターネット無料
ザ・パークハビオ江坂公園 ***号室の賃貸契約情報
毎月支払う |
家賃10.1万円/月共益費10,000円/月 |
|---|---|
初期費用 |
敷金1ヶ月 (10.1万円)礼金1ヶ月 (10.1万円)保証金-敷引き償却金- |
更新料 |
50,500円 |
鍵交換費用 |
33,000円 |
室内清掃費用 |
- |
駐車場料金 |
空無し |
損保・ |
借家賠付きの火災保険にご加入いただきます。 |
保証会社 |
加入要 保証会社利用料:初回保証料は賃料等の50%、月額保証料は賃料等の1% |
契約期間 |
- |
入居可能日 |
2026年05月下旬 |
フリーレント期間 |
- |
取引形態 |
一般媒介 |
備考 |
1年未満解約時賃料等1ヶ月分の違約金あり。 退去時清掃費実費 SOHO敷金1ヶ月増 |
ザ・パークハビオ江坂公園 ***号室の建物情報
建物名称 |
ザ・パークハビオ江坂公園 |
|---|---|
最寄駅 |
|
所在地 |
大阪府吹田市江坂町 |
階層 |
6階部分(地上12階建) |
構造 |
RC |
築年数 |
2023年6月(築3年) |
駐車場 |
空無し |
小学校学区 |
豊津第一小学校 |
中学校学区 |
豊津中学校 |
- 学区データについて
- ※学区データは必ずしも正確とは限りません。詳細に関しては最寄店舗または各自治体の教育委員会に必ずご確認ください。
無料この物件に問い合わせ
- ザ・パークハビオ江坂公園 ***号室

-
10.1万円
(共益費
10,000円)
- 敷
- 1ヶ月
- 礼
- 1ヶ月
- 保
- -
- 償
- -
ザ・パークハビオ江坂公園 ***号室の物件のお問い合わせ先・取り扱い店舗
ミニミニ FC江坂店
- アクセス
-
大阪メトロ 御堂筋線「江坂駅」徒歩1分
- 住所
- 〒564-0063 大阪府吹田市江坂町1-23-34 第二梓ビル2F
- 営業時間
- 10:00~18:00
- 定休日
- なし
- 営業エリア
- 大阪府下全域
- 取引態様
- 賃貸仲介業





























