ジオイド三番町 0602号室(6階/2LDK)の賃貸物件(賃貸マンション)
東京都千代田区にあるジオイド三番町 0602号室は宅配ボックス、ウォークインクローゼット、2階以上、CS、エレベーターなどが特徴です。最寄り駅の東京メトロ 半蔵門線九段下駅から徒歩9分です。ジオイド三番町 0602号室の詳細はハウスコム 事業戦略室までお気軽にお問い合わせください!
情報更新日:
次回更新予定日:
※次回更新予定日について:お店側では順次空室確認を行っていますが、次回更新予定日までに空室確認が行えない場合には、この物件情報は自動的に削除されます。
ジオイド三番町 0602号室の賃貸物件部屋概要
家賃 |
33万円
初期費用を |
|---|---|
共益費 |
20,000円
入居可能時期 |
敷金/礼金 |
330,000円 / 330,000円 |
保証金/ |
- / - |
最寄駅 |
|
所在地 |
東京都千代田区三番町 |
部屋番号 |
0602号室 |
間取り |
2LDK(LDK13.7・洋6・洋5) |
専有面積 |
56.45㎡ |
築年数 |
2019年7月(築7年) |
階数 |
6階部分(地上11階地下1階建) |
方位・位置 |
南東 / 角部屋 |
物件種別 |
賃貸マンション |
構造 |
RC |
駐車場 |
無 |
小学校学区 |
九段小学校 |
中学校学区 |
麹町中学校 |
他の空き部屋 |
ー |
- 学区データについて
- ※学区データは必ずしも正確とは限りません。詳細に関しては最寄店舗または各自治体の教育委員会に必ずご確認ください。
ジオイド三番町 0602号室の特徴
セキュリティ
この物件の建物には、防犯カメラや宅配ボックスが設置されており、来客時には居室内のテレビモニターにて訪問者の顔を確認することができます。
室内設備
排水溝にディスポーザーが備え付けられています。 お風呂とトイレは一緒のユニットバスです。お風呂には、追い焚き機能が備わっています。 トイレは、温水洗浄便座機能付きになります。
居室状況
お部屋の床は、フローリングとなっており、エアコンと一部床下暖房が設置されています。 インターネットも無料で入居後すぐ生活が始められます。 収納スペースとして、通常よりも収納力の高いウォークインクローゼット、玄関にはシューズインクローゼットがあります。
建物設備共用部分
建物の共用スペースに、日々の出入に便利なエレベーターや、いざという時の防犯カメラや、急な外出や不在がちのご家庭の荷物受け取りに便利な宅配ボックスが設置されています。 駐輪場、バイク置き場が利用できます。
周辺施設
この物件の学区は、九段小学校区・麹町中学校区です。
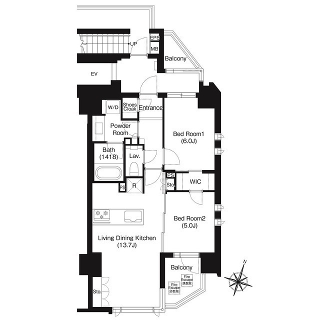
ジオイド三番町 0602号室の間取り
間取り:2LDK
間取詳細:2LDK(LDK13.7・洋6・洋5)
専有面積:56.45㎡
方位:南東
部屋位置:角部屋
ジオイド三番町 0602号室の設備
キッチン
ディスポーザー
バス・トイレ
追い焚き
温水洗浄便座
玄関
TVモニタ付インターホン
宅配ボックス
収納
ウォークインクローゼット
シューズインクローゼット
室内設備
エアコン
フローリング
床下暖房
位置・立地
2階以上
角部屋
インフラ
BS
CS
建物設備
エレベーター
防犯カメラ
駐輪場
バイク置き場
ライフステージ
一人暮らしに人気の設備
カップルに人気の設備
家族に人気の設備
夫婦に人気の設備
三世代で人気の設備
こだわり
洋室で暮らしたい
趣味
服やおしゃれが好き
靴やスニーカーが好き
オークション・通販が好き
お得な条件
インターネット無料
ジオイド三番町 0602号室の賃貸契約情報
毎月支払う |
家賃33万円/月共益費20,000円/月 |
|---|---|
初期費用 |
敷金330,000円礼金330,000円保証金-敷引き償却金- |
更新料 |
- |
鍵交換費用 |
- |
室内清掃費用 |
- |
駐車場料金 |
無 |
損保・ |
借家賠付きの火災保険にご加入いただきます。 |
保証会社 |
加入要 保証会社利用料:レジデンシャルパートナーズ レジデンシャルパートナーズ 保証料:賃料等の50%(最低2万)、月額保証・事務手数料:賃料等の1%(更新料無) |
契約期間 |
定期借家 2年 |
入居可能日 |
2026年04月下旬 |
フリーレント期間 |
- |
取引形態 |
一般媒介 |
備考 |
清掃費:86240円(退去時請求).エアコン清掃費:27500円(退去時請求) |
ジオイド三番町 0602号室の建物情報
建物名称 |
ジオイド三番町 |
|---|---|
最寄駅 |
|
所在地 |
東京都千代田区三番町 |
階層 |
6階部分(地上11階地下1階建) |
構造 |
RC |
築年数 |
2019年7月(築7年) |
駐車場 |
無 |
小学校学区 |
九段小学校 |
中学校学区 |
麹町中学校 |
- 学区データについて
- ※学区データは必ずしも正確とは限りません。詳細に関しては最寄店舗または各自治体の教育委員会に必ずご確認ください。
無料この物件に問い合わせ
- ジオイド三番町 0602号室

-
33万円
(共益費
20,000円)
- 敷
- 330,000円
- 礼
- 330,000円
- 保
- -
- 償
- -
ジオイド三番町 0602号室の物件のお問い合わせ先・取り扱い店舗
ハウスコム 事業戦略室
- アクセス
-
山手線「品川駅」港南口徒歩3分
- 住所
- 〒108-0075 東京都港区港南2-16-1 品川イーストワンタワー9階
- 営業時間
- 10:00~17:00
- 定休日
- 土曜日・日曜日(祝日定休)
- 営業エリア
- 北区、荒川区、豊島区、文京区、台東区、中央区、新宿区、千代田区、渋谷区、港区、品川区
- 取引態様
- 賃貸仲介業





























