レオパレスサナロA 105号室(1階/2DK)の賃貸物件(賃貸アパート)
千葉県市原市にあるレオパレスサナロA 105号室は独立洗面台、ルーフバルコニー、室内洗濯機置場、1階、インターネット可などが特徴です。最寄り駅の内房線五井駅からバスで16分、山田橋から徒歩3分です。レオパレスサナロA 105号室の詳細はハウスコム 稲毛店までお気軽にお問い合わせください!
情報更新日:
次回更新予定日:
※次回更新予定日について:お店側では順次空室確認を行っていますが、次回更新予定日までに空室確認が行えない場合には、この物件情報は自動的に削除されます。
レオパレスサナロA 105号室の賃貸物件部屋概要
家賃 |
6.8万円
初期費用を |
|---|---|
共益費 |
5,000円
入居可能時期 |
敷金/礼金 |
- / 68,000円 |
保証金/ |
- / - |
最寄駅 |
|
所在地 |
千葉県市原市山田橋 |
部屋番号 |
105号室 |
間取り |
2DK |
専有面積 |
46.36㎡ |
築年数 |
1998年3月(築28年) |
階数 |
1階部分(地上2階建) |
方位・位置 |
ー / その他 |
物件種別 |
賃貸アパート |
構造 |
鉄骨造 |
駐車場 |
6,600円 |
小学校学区 |
市原小学校 |
中学校学区 |
市原中学校 |
他の空き部屋 |
ー |
- 学区データについて
- ※学区データは必ずしも正確とは限りません。詳細に関しては最寄店舗または各自治体の教育委員会に必ずご確認ください。
レオパレスサナロA 105号室の特徴
契約条件
敷金が無料なため、初期費用が比較的安くなる傾向にあります。
室内設備
電気コンロが備え付けられています。 トイレは、温水洗浄便座機能付きになります。 女性に嬉しい設備の独立した洗面化粧台があります。 洗濯に便利な設備として、室内洗濯機置場があります。
居室状況
エアコンが設置されています。
建物設備共用部分
居室外の専有スペースとして、洗濯物を干すなどの用途として利用できるバルコニーがあります。
周辺施設
この物件の学区は、市原小学校区・市原中学校区です。
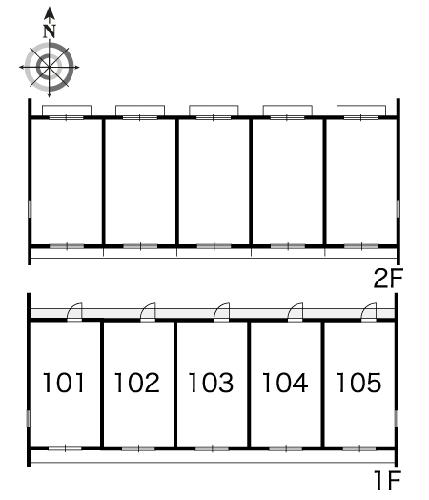
レオパレスサナロA 105号室の間取り
間取り:2DK
間取詳細:2DK
専有面積:46.36㎡
方位:ー
部屋位置:その他
レオパレスサナロA 105号室の設備
キッチン
電気コンロ
バス・トイレ
バス・トイレ別
温水洗浄便座
独立洗面台
バルコニー
バルコニー
ルーフバルコニー
室内設備
エアコン
室内洗濯機置場
位置・立地
1階
インフラ
インターネット可
ライフステージ
一人暮らしに人気の設備
カップルに人気の設備
家族に人気の設備
夫婦に人気の設備
三世代で人気の設備
こだわり
外で子どもと遊びたい
雨の日でも洗濯したい
寝るためだけの部屋
趣味
ガーデニングが好き
レオパレスサナロA 105号室の賃貸契約情報
毎月支払う |
家賃6.8万円/月共益費5,000円/月 |
|---|---|
初期費用 |
敷金-礼金68,000円保証金-敷引き償却金- |
更新料 |
- |
鍵交換費用 |
16,500円 |
室内清掃費用 |
52,800円 |
抗菌施工(任意) |
34,870円 |
駐車場料金 |
6,600円 |
損保・ |
借家賠付きの火災保険にご加入いただきます。 |
保証会社 |
加入要 保証会社利用料:保証料:88190円(契約内容により100~120%で変動有)※記載金額は120%の場合 |
契約期間 |
- |
入居可能日 |
2026年05月下旬 |
フリーレント期間 |
- |
取引形態 |
一般媒介 |
備考 |
室内清掃費用 52800円 鍵交換代 16500円 月額:環境維持費 550円 初期:抗菌施工(任意) 34870円 保証会社利用必須 保証料:88190円(契約内容により100~120%で変動有)記載金額は120%の場合 |
レオパレスサナロA 105号室の建物情報
建物名称 |
レオパレスサナロA |
|---|---|
最寄駅 |
|
所在地 |
千葉県市原市山田橋 |
階層 |
1階部分(地上2階建) |
構造 |
鉄骨造 |
築年数 |
1998年3月(築28年) |
駐車場 |
6,600円 |
小学校学区 |
市原小学校 |
中学校学区 |
市原中学校 |
- 学区データについて
- ※学区データは必ずしも正確とは限りません。詳細に関しては最寄店舗または各自治体の教育委員会に必ずご確認ください。
無料この物件に問い合わせ
- レオパレスサナロA 105号室

-
6.8万円
(共益費
5,000円)
- 敷
- -
- 礼
- 68,000円
- 保
- -
- 償
- -
レオパレスサナロA 105号室の物件のお問い合わせ先・取り扱い店舗
ハウスコム 稲毛店
土日営業
- アクセス
-
総武本線「稲毛駅」徒歩1分
- 住所
- 〒263-0043 千葉県千葉市稲毛区小仲台2-4-11 川島東ビル3階
- 営業時間
- 10:00~18:00
- 定休日
- 水曜日
- 営業エリア
- 千葉市 四街道市 八街市 佐倉市 市原市 習志野市
- 取引態様
- 賃貸仲介業
お問い合わせNo. HC5-4333081-105-0175






















