LIME RESIDENCE HIGASHINAKAYAMA ***号室(1階/1K)の賃貸物件(賃貸マンション)
千葉県船橋市にあるLIME RESIDENCE HIGASHINAKAYAMA ***号室はガスコンロ、ガスコンロ二口以上、室内洗濯機置場、1階、駐輪場などが特徴です。最寄り駅の京成本線東中山駅から徒歩8分です。LIME RESIDENCE HIGASHINAKAYAMA ***号室の詳細はハウスコム 西船橋店までお気軽にお問い合わせください!
情報更新日:
次回更新予定日:
※次回更新予定日について:お店側では順次空室確認を行っていますが、次回更新予定日までに空室確認が行えない場合には、この物件情報は自動的に削除されます。
LIME RESIDENCE HIGASHINAKAYAMA ***号室の賃貸物件部屋概要
家賃 |
8.7万円
初期費用を |
|---|---|
共益費 |
5,000円
入居可能時期 |
敷金/礼金 |
1ヶ月 / - |
保証金/ |
- / - |
最寄駅 |
|
所在地 |
千葉県船橋市東中山 |
部屋番号 |
***号室 |
間取り |
1K(洋6.7) |
専有面積 |
23.35㎡ |
築年数 |
2024年2月(築3年) |
階数 |
1階部分(地上6階建) |
方位・位置 |
北西 / その他 |
物件種別 |
賃貸マンション |
構造 |
RC |
駐車場 |
空無し |
小学校学区 |
葛飾小学校 |
中学校学区 |
葛飾中学校 |
他の空き部屋 |
***号室 |
- 学区データについて
- ※学区データは必ずしも正確とは限りません。詳細に関しては最寄店舗または各自治体の教育委員会に必ずご確認ください。
LIME RESIDENCE HIGASHINAKAYAMA ***号室の特徴
-
一人暮らしに人気の設備

-
カップルに人気の設備

-
家族に人気の設備

-
夫婦に人気の設備

-
三世代で人気の設備

-
収納重視

-
外で子どもと遊びたい

-
雨の日でも洗濯したい

-
洋室で暮らしたい

-
持ち物をスッキリ隠す収納部屋

-
ガーデニングが好き

契約条件
ご契約時に保証人は不要です。 礼金が無料なため、初期費用が比較的安くなる傾向にあります。
セキュリティ
この物件の建物には、オートロックや宅配ボックスが設置されております。
室内設備
システムキッチンには、2つ以上のガスコンロが備え付けられています。 トイレは、温水洗浄便座機能付きになります。 女性に嬉しい設備のシャワーの付いている洗面化粧台があります。 洗濯に便利な設備として、室内洗濯機置場があります。浴室乾燥機も設置されているので、梅雨時の生乾き臭も比較的防ぐことができます。
居室状況
お部屋の床は、フローリングとなっており、エアコンが設置されています。 収納スペースとして、基本的な居室にクローゼットを設置、玄関にはシューズボックスがあります。
建物設備共用部分
居室外の専有スペースとして、洗濯物を干すなどの用途として利用できるバルコニーがあります。 建物の共用スペースに、日々の出入に便利なエレベーターや、急な外出や不在がちのご家庭の荷物受け取りに便利な宅配ボックスが設置されています。 駐輪場、バイク置き場が利用できます。
周辺施設
この物件の学区は、葛飾小学校区・葛飾中学校区です。
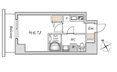
LIME RESIDENCE HIGASHINAKAYAMA ***号室の間取り
間取り:1K
間取詳細:1K(洋6.7)
専有面積:23.35㎡
方位:北西
部屋位置:その他
LIME RESIDENCE HIGASHINAKAYAMA ***号室の設備
キッチン
システムキッチン
ガスコンロ
ガスコンロ二口以上
バス・トイレ
バス・トイレ別
浴室乾燥機
温水洗浄便座
独立洗面台
シャワー付洗面化粧台
玄関
オートロック
宅配ボックス
収納
クローゼット
シューズボックス
全居室収納
バルコニー
バルコニー
ルーフバルコニー
室内設備
エアコン
フローリング
室内洗濯機置場
位置・立地
1階
インフラ
インターネット可
BS
CS
都市ガス
建物設備
エレベーター
駐輪場
バイク置き場
入居条件
オンライン相談可
オンライン内見可
保証人不要
ライフステージ
一人暮らしに人気の設備
カップルに人気の設備
家族に人気の設備
夫婦に人気の設備
三世代で人気の設備
こだわり
収納重視
外で子どもと遊びたい
雨の日でも洗濯したい
洋室で暮らしたい
持ち物をスッキリ隠す収納部屋
趣味
ガーデニングが好き
LIME RESIDENCE HIGASHINAKAYAMA ***号室の賃貸契約情報
毎月支払う |
家賃8.7万円/月共益費5,000円/月 |
|---|---|
初期費用 |
敷金1ヶ月 (8.7万円)礼金-保証金-敷引き償却金- |
更新料 |
87,000円 |
鍵交換費用 |
16,500円 |
室内清掃費用 |
- |
駐車場料金 |
空無し |
損保・ |
借家賠付きの火災保険にご加入いただきます。 |
保証会社 |
加入要 保証会社:オリコフォレントインシュア 保証会社利用料:初回保証料賃料共益費等50%(連保無)、30%(連保有)、以後1年毎25% 月々口座振替事務手数料220円(税込) |
契約期間 |
2年 |
入居可能日 |
相談 |
フリーレント期間 |
- |
取引形態 |
一般媒介 |
備考 |
礼金0(個人限定・短期解約違約金有)法人契約:礼金1 大手法人契約保証会社利用無しの場合、敷金1ヶ月積み増し |
LIME RESIDENCE HIGASHINAKAYAMA ***号室の建物情報
建物名称 |
LIME RESIDENCE HIGASHINAKAYAMA |
|---|---|
最寄駅 |
|
所在地 |
千葉県船橋市東中山 |
階層 |
1階部分(地上6階建) |
構造 |
RC |
築年数 |
2024年2月(築3年) |
駐車場 |
空無し |
小学校学区 |
葛飾小学校 |
中学校学区 |
葛飾中学校 |
- 学区データについて
- ※学区データは必ずしも正確とは限りません。詳細に関しては最寄店舗または各自治体の教育委員会に必ずご確認ください。
無料この物件に問い合わせ
- LIME RESIDENCE HIGASHINAKAYAMA ***号室

-
8.7万円
(共益費
5,000円)
- 敷
- 1ヶ月
- 礼
- -
- 保
- -
- 償
- -
LIME RESIDENCE HIGASHINAKAYAMA ***号室の物件のお問い合わせ先・取り扱い店舗
ハウスコム 西船橋店
- アクセス
-
総武線・中央線各駅停車「西船橋駅」北口徒歩1分
- 住所
- 〒273-0031 千葉県船橋市西船4丁目26−6
- 営業時間
- 10:00~18:00
- 定休日
- なし
- 営業エリア
- 船橋市・市川市・鎌ヶ谷市・松戸市,習志野市,浦安市
- 取引態様
- 賃貸仲介業























