パークキューブ大井町 1104号室(11階/1K)の賃貸物件(賃貸マンション)
東京都品川区にあるパークキューブ大井町 1104号室はバルコニー、エアコン、インターネット可、BS、ペット可・相談などが特徴です。最寄り駅の京浜東北・根岸線大井町駅から徒歩5分です。パークキューブ大井町 1104号室の詳細はハウスコム 大井町店までお気軽にお問い合わせください!
情報更新日:
次回更新予定日:
※次回更新予定日について:お店側では順次空室確認を行っていますが、次回更新予定日までに空室確認が行えない場合には、この物件情報は自動的に削除されます。
パークキューブ大井町 1104号室の賃貸物件部屋概要
家賃 |
13.4万円
初期費用を |
|---|---|
共益費 |
10,000円
入居可能時期 |
敷金/礼金 |
1ヶ月 / 1ヶ月 |
保証金/ |
- / - |
最寄駅 |
|
所在地 |
東京都品川区大井 |
部屋番号 |
1104号室 |
間取り |
1K |
専有面積 |
20.49㎡ |
築年数 |
2008年3月(築18年) |
階数 |
11階部分(地上14階建) |
方位・位置 |
東 / その他 |
物件種別 |
賃貸マンション |
構造 |
RC |
駐車場 |
無 |
小学校学区 |
山中小学校 |
中学校学区 |
伊藤学園義務教育学校 |
他の空き部屋 |
304号室 |
- 学区データについて
- ※学区データは必ずしも正確とは限りません。詳細に関しては最寄店舗または各自治体の教育委員会に必ずご確認ください。
パークキューブ大井町 1104号室の特徴
契約条件
ペットの飼育や楽器演奏もご相談ください。
セキュリティ
この物件の建物には、オートロックや宅配ボックスが設置されており、来客時には居室内のテレビモニターにて訪問者の顔を確認することができます。
室内設備
システムキッチンが備え付けられています。 洗濯に便利な設備として、室内洗濯機置場があります。
居室状況
エアコンが設置されています。
建物設備共用部分
居室外の専有スペースとして、洗濯物を干すなどの用途として利用できるバルコニーがあります。 建物の共用スペースに、日々の出入に便利なエレベーターや、急な外出や不在がちのご家庭の荷物受け取りに便利な宅配ボックスが設置されています。 バイク置き場が利用できます。
周辺施設
この物件の学区は、山中小学校区・伊藤学園義務教育学校区です。
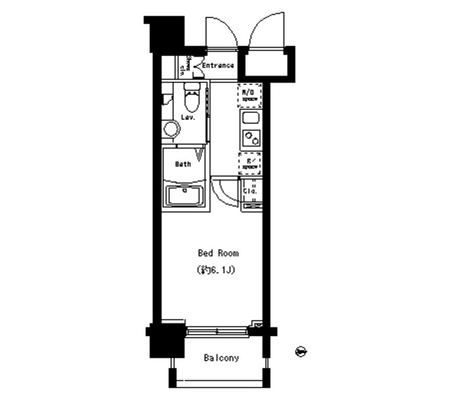
パークキューブ大井町 1104号室の間取り
間取り:1K
間取詳細:1K
専有面積:20.49㎡
方位:東
部屋位置:その他
パークキューブ大井町 1104号室の設備
キッチン
システムキッチン
バス・トイレ
バス・トイレ別
玄関
TVモニタ付インターホン
オートロック
宅配ボックス
バルコニー
バルコニー
ルーフバルコニー
室内設備
エアコン
室内洗濯機置場
位置・立地
2階以上
インフラ
インターネット可
BS
CS
建物設備
エレベーター
バイク置き場
入居条件
ペット可・相談
楽器可・相談
ライフステージ
一人暮らしに人気の設備
カップルに人気の設備
家族に人気の設備
夫婦に人気の設備
三世代で人気の設備
こだわり
外で子どもと遊びたい
雨の日でも洗濯したい
趣味
ガーデニングが好き
パークキューブ大井町 1104号室の賃貸契約情報
毎月支払う |
家賃13.4万円/月共益費10,000円/月 |
|---|---|
初期費用 |
敷金1ヶ月 (13.4万円)礼金1ヶ月 (13.4万円)保証金-敷引き償却金- |
更新料 |
134,000円 |
鍵交換費用 |
- |
室内清掃費用 |
- |
室内清掃費 |
55,000円 |
鍵交換費 |
16,500円 |
駐車場料金 |
無 |
損保・ |
借家賠付きの火災保険にご加入いただきます。 |
保証会社 |
加入要 保証会社利用料:保証会社名:レジデントアシスタンス株式会社/初回保証委託料(最低20000円):月額賃料等の50%、 2年目以降:9600円/年 |
契約期間 |
2年 |
入居可能日 |
2026年05月中旬 |
フリーレント期間 |
- |
取引形態 |
一般媒介 |
備考 |
1年未満解約ペナルティ有ペット飼育可(敷金1ヶ月積み増し/小型犬or猫2匹迄)/保証会社加入必須 ( |
パークキューブ大井町 1104号室の建物情報
建物名称 |
パークキューブ大井町 |
|---|---|
最寄駅 |
|
所在地 |
東京都品川区大井 |
階層 |
11階部分(地上14階建) |
構造 |
RC |
築年数 |
2008年3月(築18年) |
駐車場 |
無 |
小学校学区 |
山中小学校 |
中学校学区 |
伊藤学園義務教育学校 |
- 学区データについて
- ※学区データは必ずしも正確とは限りません。詳細に関しては最寄店舗または各自治体の教育委員会に必ずご確認ください。
無料この物件に問い合わせ
- パークキューブ大井町 1104号室

-
13.4万円
(共益費
10,000円)
- 敷
- 1ヶ月
- 礼
- 1ヶ月
- 保
- -
- 償
- -
パークキューブ大井町 1104号室の物件のお問い合わせ先・取り扱い店舗
ハウスコム 大井町店
- アクセス
-
京浜東北・根岸線「大井町駅」徒歩1分
- 住所
- 〒140-0014 東京都品川区大井1-2-19
- 営業時間
- 10:00~18:00
- 定休日
- 水曜日
- 営業エリア
- 品川区、大田区 港区
- 取引態様
- 賃貸仲介業






















