ラグゼナ平和台 ***号室(4階/1K)の賃貸物件(賃貸マンション)
東京都練馬区にあるラグゼナ平和台 ***号室は浴室乾燥機、ウォークインクローゼット、バルコニー、エレベーター、オンライン相談可などが特徴です。最寄り駅の東京メトロ 有楽町線平和台駅から徒歩6分です。ラグゼナ平和台 ***号室の詳細はハウスコム 練馬店までお気軽にお問い合わせください!
情報更新日:
次回更新予定日:
※次回更新予定日について:お店側では順次空室確認を行っていますが、次回更新予定日までに空室確認が行えない場合には、この物件情報は自動的に削除されます。
ラグゼナ平和台 ***号室の賃貸物件部屋概要
家賃 |
12.5万円
初期費用を |
|---|---|
共益費 |
10,000円
入居可能時期 |
敷金/礼金 |
1ヶ月 / 1ヶ月 |
保証金/ |
- / - |
最寄駅 |
|
所在地 |
東京都練馬区平和台 |
部屋番号 |
***号室 |
間取り |
1K(洋10.6) |
専有面積 |
33.51㎡ |
築年数 |
2019年3月(築7年) |
階数 |
4階部分(地上9階建) |
方位・位置 |
ー / その他 |
物件種別 |
賃貸マンション |
構造 |
RC |
駐車場 |
- |
小学校学区 |
北町西小学校 |
中学校学区 |
開進第一中学校 |
他の空き部屋 |
307号室 |
- 学区データについて
- ※学区データは必ずしも正確とは限りません。詳細に関しては最寄店舗または各自治体の教育委員会に必ずご確認ください。
ラグゼナ平和台 ***号室の特徴
-
一人暮らしに人気の設備

-
カップルに人気の設備

-
家族に人気の設備

-
夫婦に人気の設備

-
三世代で人気の設備

-
セキュリティ対策重視

-
外で子どもと遊びたい

-
雨の日でも洗濯したい

-
洋室で暮らしたい

-
服やおしゃれが好き

-
オークション・通販が好き

-
ガーデニングが好き

契約条件
ペットの飼育もご相談ください。
セキュリティ
この物件の建物には、オートロックや防犯カメラや宅配ボックスが設置されており、来客時には居室内のテレビモニターにて訪問者の顔を確認することができます。
室内設備
システムキッチンには、ガスコンロが備え付けられています。 トイレは、温水洗浄便座機能付きになります。 女性に嬉しい設備のシャワーの付いている洗面化粧台があります。 洗濯に便利な設備として、室内洗濯機置場があります。浴室乾燥機も設置されているので、梅雨時の生乾き臭も比較的防ぐことができます。
居室状況
お部屋の床は、フローリングとなっており、エアコンが設置されています。 インターネットも無料で入居後すぐ生活が始められます。 収納スペースとして、通常よりも収納力の高いウォークインクローゼット、玄関にはシューズボックスがあります。
建物設備共用部分
居室外の専有スペースとして、洗濯物を干すなどの用途として利用できるバルコニーがあります。 建物の共用スペースに、日々の出入に便利なエレベーターや、いざという時の防犯カメラや、急な外出や不在がちのご家庭の荷物受け取りに便利な宅配ボックスが設置されています。 駐輪場が利用できます。
周辺施設
この物件の学区は、北町西小学校区・開進第一中学校区です。
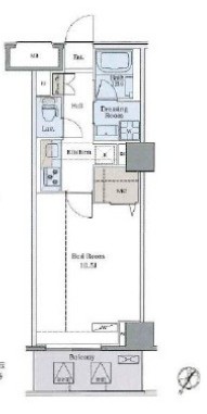
ラグゼナ平和台 ***号室の間取り
間取り:1K
間取詳細:1K(洋10.6)
専有面積:33.51㎡
方位:ー
部屋位置:その他
ラグゼナ平和台 ***号室の設備
キッチン
システムキッチン
ガスコンロ
バス・トイレ
バス・トイレ別
浴室乾燥機
温水洗浄便座
独立洗面台
シャワー付洗面化粧台
玄関
TVモニタ付インターホン
オートロック
宅配ボックス
収納
ウォークインクローゼット
シューズボックス
バルコニー
バルコニー
ルーフバルコニー
室内設備
エアコン
フローリング
室内洗濯機置場
位置・立地
2階以上
インフラ
インターネット可
都市ガス
建物設備
エレベーター
防犯カメラ
駐輪場
入居条件
ペット可・相談
オンライン相談可
オンライン内見可
ライフステージ
一人暮らしに人気の設備
カップルに人気の設備
家族に人気の設備
夫婦に人気の設備
三世代で人気の設備
こだわり
セキュリティ対策重視
外で子どもと遊びたい
雨の日でも洗濯したい
洋室で暮らしたい
趣味
服やおしゃれが好き
オークション・通販が好き
ガーデニングが好き
お得な条件
インターネット無料
ラグゼナ平和台 ***号室の賃貸契約情報
毎月支払う |
家賃12.5万円/月共益費10,000円/月 |
|---|---|
初期費用 |
敷金1ヶ月 (12.5万円)礼金1ヶ月 (12.5万円)保証金-敷引き償却金- |
更新料 |
125,000円 |
鍵交換費用 |
33,000円 |
室内清掃費用 |
- |
駐車場料金 |
- |
損保・ |
借家賠付きの火災保険にご加入いただきます。 |
保証会社 |
加入要 保証会社:全保連 保証会社利用料:初回保証料:賃料総額の50% 年間保証料:1万円 |
契約期間 |
2年 |
入居可能日 |
相談 |
フリーレント期間 |
- |
取引形態 |
一般媒介 |
備考 |
バイク置き場:有料 駐輪場:有料 ペット飼育時敷金積み増し料金(償却)有り |
ラグゼナ平和台 ***号室の建物情報
建物名称 |
ラグゼナ平和台 |
|---|---|
最寄駅 |
|
所在地 |
東京都練馬区平和台 |
階層 |
4階部分(地上9階建) |
構造 |
RC |
築年数 |
2019年3月(築7年) |
駐車場 |
- |
小学校学区 |
北町西小学校 |
中学校学区 |
開進第一中学校 |
- 学区データについて
- ※学区データは必ずしも正確とは限りません。詳細に関しては最寄店舗または各自治体の教育委員会に必ずご確認ください。
無料この物件に問い合わせ
- ラグゼナ平和台 ***号室

-
12.5万円
(共益費
10,000円)
- 敷
- 1ヶ月
- 礼
- 1ヶ月
- 保
- -
- 償
- -
ラグゼナ平和台 ***号室の物件のお問い合わせ先・取り扱い店舗
ハウスコム 練馬店
- アクセス
-
西武池袋線・豊島線「練馬駅」南口徒歩1分
都営大江戸線「練馬駅」A2出口徒歩1分
- 住所
- 〒176-0001 東京都練馬区練馬1丁目2−9 K&Iビル 1階
- 営業時間
- 10:00~18:00
- 定休日
- なし
- 営業エリア
- 練馬区、中野区、杉並区、板橋区、豊島区、西東京市、和光市、朝霞市、新座市お探しとあればどこでもお探し致します。
- 取引態様
- 賃貸仲介業




























