フロンティアレジデンス板橋 407号室(4階/1K)の賃貸物件(賃貸マンション)
東京都板橋区にあるフロンティアレジデンス板橋 407号室はシステムキッチン、エアコン、2階以上、都市ガス、オンライン相談可などが特徴です。最寄り駅の都営三田線板橋区役所前駅から徒歩3分です。フロンティアレジデンス板橋 407号室の詳細はハウスコム 池袋西口店までお気軽にお問い合わせください!
情報更新日:
次回更新予定日:
※次回更新予定日について:お店側では順次空室確認を行っていますが、次回更新予定日までに空室確認が行えない場合には、この物件情報は自動的に削除されます。
フロンティアレジデンス板橋 407号室の賃貸物件部屋概要
家賃 |
13.6万円
初期費用を |
|---|---|
共益費 |
15,000円
入居可能時期 |
敷金/礼金 |
- / - |
保証金/ |
- / - |
最寄駅 |
|
所在地 |
東京都板橋区板橋 |
部屋番号 |
407号室 |
間取り |
1K(洋0・K0) |
専有面積 |
26.66㎡ |
築年数 |
2023年12月(築3年) |
階数 |
4階部分(地上16階建) |
方位・位置 |
ー / その他 |
物件種別 |
賃貸マンション |
構造 |
RC |
駐車場 |
- |
小学校学区 |
板橋第二小学校 |
中学校学区 |
板橋第一中学校 |
他の空き部屋 |
1204号室 1302号室 1503号室 1601号室 307号室 308号室 405号室 508号室 607号室 608号室 804号室 805号室 807号室 |
- 学区データについて
- ※学区データは必ずしも正確とは限りません。詳細に関しては最寄店舗または各自治体の教育委員会に必ずご確認ください。
フロンティアレジデンス板橋 407号室の特徴
-
一人暮らしに人気の設備

-
カップルに人気の設備

-
家族に人気の設備

-
夫婦に人気の設備

-
三世代で人気の設備

-
セキュリティ対策重視

-
タイパ重視

-
外で子どもと遊びたい

-
雨の日でも洗濯したい

-
洋室で暮らしたい

-
ガーデニングが好き

契約条件
ペットの飼育もご相談ください。 また、ご契約時に保証人は不要です。 敷金と礼金が無料なため、初期費用が比較的安くなる傾向にあります。
セキュリティ
この物件の建物には、オートロックや防犯カメラや宅配ボックスが設置されており、来客時には居室内のテレビモニターにて訪問者の顔を確認することができます。
室内設備
システムキッチンが備え付けられています。 お風呂とトイレは別です。お風呂には、追い焚き機能が備わっています。 トイレは、温水洗浄便座機能付きになります。 女性に嬉しい設備のシャワーの付いている洗面化粧台があります。 洗濯に便利な設備として、室内洗濯機置場があります。浴室乾燥機も設置されているので、梅雨時の生乾き臭も比較的防ぐことができます。
居室状況
お部屋の床は、フローリングとなっており、エアコンが設置されています。 収納スペースとして、基本的な居室にクローゼットを設置、玄関にはシューズボックスがあります。
建物設備共用部分
居室外の専有スペースとして、洗濯物を干すなどの用途として利用できるバルコニーがあります。 建物の共用スペースに、日々の出入に便利なエレベーターや、いざという時の防犯カメラや、急な外出や不在がちのご家庭の荷物受け取りに便利な宅配ボックスや、居室内を常に清潔に保てる24時間利用可能なゴミ捨て置き場が設置されています。
周辺施設
この物件の学区は、板橋第二小学校区・板橋第一中学校区です。
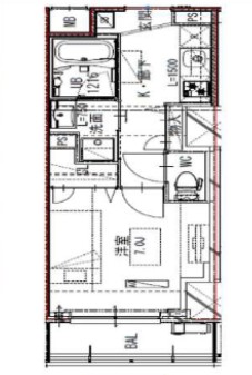
フロンティアレジデンス板橋 407号室の間取り
間取り:1K
間取詳細:1K(洋0・K0)
専有面積:26.66㎡
方位:ー
部屋位置:その他
フロンティアレジデンス板橋 407号室の設備
キッチン
システムキッチン
バス・トイレ
バス・トイレ別
追い焚き
浴室乾燥機
温水洗浄便座
独立洗面台
シャワー付洗面化粧台
玄関
TVモニタ付インターホン
オートロック
宅配ボックス
収納
クローゼット
シューズボックス
バルコニー
バルコニー
ルーフバルコニー
室内設備
エアコン
フローリング
室内洗濯機置場
位置・立地
2階以上
インフラ
BS
都市ガス
建物設備
エレベーター
防犯カメラ
24時間ゴミ出しOK
入居条件
ペット可・相談
オンライン相談可
オンライン内見可
保証人不要
ライフステージ
一人暮らしに人気の設備
カップルに人気の設備
家族に人気の設備
夫婦に人気の設備
三世代で人気の設備
こだわり
セキュリティ対策重視
タイパ重視
外で子どもと遊びたい
雨の日でも洗濯したい
洋室で暮らしたい
趣味
ガーデニングが好き
フロンティアレジデンス板橋 407号室の賃貸契約情報
毎月支払う |
家賃13.6万円/月共益費15,000円/月 |
|---|---|
初期費用 |
敷金-礼金-保証金-敷引き償却金- |
更新料 |
136,000円 |
鍵交換費用 |
27,500円 |
室内清掃費用 |
- |
安心入居サポート代 |
15,000円 |
駐車場料金 |
- |
損保・ |
借家賠付きの火災保険にご加入いただきます。 |
保証会社 |
加入要 保証会社利用料:初回:50%、月額:1000円 |
契約期間 |
2年 |
入居可能日 |
相談 |
フリーレント期間 |
- |
取引形態 |
一般媒介 |
備考 |
ペット飼育時条件変更有 |
フロンティアレジデンス板橋 407号室の建物情報
建物名称 |
フロンティアレジデンス板橋 |
|---|---|
最寄駅 |
|
所在地 |
東京都板橋区板橋 |
階層 |
4階部分(地上16階建) |
構造 |
RC |
築年数 |
2023年12月(築3年) |
駐車場 |
- |
小学校学区 |
板橋第二小学校 |
中学校学区 |
板橋第一中学校 |
- 学区データについて
- ※学区データは必ずしも正確とは限りません。詳細に関しては最寄店舗または各自治体の教育委員会に必ずご確認ください。
無料この物件に問い合わせ
- フロンティアレジデンス板橋 407号室

-
13.6万円
(共益費
15,000円)
- 敷
- -
- 礼
- -
- 保
- -
- 償
- -
フロンティアレジデンス板橋 407号室の物件のお問い合わせ先・取り扱い店舗
ハウスコム 池袋西口店
- アクセス
-
山手線「池袋駅」西口徒歩1分
東京メトロ 丸ノ内線「池袋駅」D11出口徒歩1分
- 住所
- 〒171-0021 東京都豊島区西池袋1丁目19−6 松長ビル 2階
- 営業時間
- 10:00~18:00
- 定休日
- なし
- 営業エリア
- 豊島区 板橋区 新宿区 練馬区 文京区
- 取引態様
- 賃貸仲介業






