PRIME SQUAREⅢ 501号室(5階/1DK)の賃貸物件(賃貸マンション)
東京都大田区にあるPRIME SQUAREⅢ 501号室は浴室乾燥機、2階以上、角部屋、インターネット可、保証人不要などが特徴です。最寄り駅の京浜東北・根岸線大森駅から徒歩8分です。PRIME SQUAREⅢ 501号室の詳細はハウスコム 大森店までお気軽にお問い合わせください!
情報更新日:
次回更新予定日:
※次回更新予定日について:お店側では順次空室確認を行っていますが、次回更新予定日までに空室確認が行えない場合には、この物件情報は自動的に削除されます。
PRIME SQUAREⅢ 501号室の賃貸物件部屋概要
家賃 |
15.5万円
初期費用を |
|---|---|
共益費 |
10,000円
入居可能時期 |
敷金/礼金 |
1ヶ月 / 1ヶ月 |
保証金/ |
- / - |
最寄駅 |
|
所在地 |
東京都大田区大森北 |
部屋番号 |
501号室 |
間取り |
1DK(洋4・DK6.5) |
専有面積 |
32.30㎡ |
築年数 |
新築 |
階数 |
5階部分(地上14階建) |
方位・位置 |
南東 / 角部屋 |
物件種別 |
賃貸マンション |
構造 |
RC |
駐車場 |
- |
小学校学区 |
ー |
中学校学区 |
ー |
他の空き部屋 |
1001号室 1002号室 1003号室 1101号室 1102号室 1103号室 1201号室 1202号室 1203号室 1302号室 201号室 202号室 301号室 302号室 303号室 304号室 401号室 402号室 403号室 404号室 502号室 503号室 504号室 601号室 602号室 603号室 604号室 701号室 702号室 703号室 801号室 802号室 803号室 901号室 902号室 903号室 |
- 学区データについて
- ※学区データは必ずしも正確とは限りません。詳細に関しては最寄店舗または各自治体の教育委員会に必ずご確認ください。
PRIME SQUAREⅢ 501号室の特徴
-
一人暮らしに人気の設備

-
カップルに人気の設備

-
家族に人気の設備

-
夫婦に人気の設備

-
三世代で人気の設備

-
外で子どもと遊びたい

-
雨の日でも洗濯したい

-
洋室で暮らしたい

-
オークション・通販が好き

-
ガーデニングが好き

契約条件
ご契約時に保証人は不要です。
セキュリティ
この物件の建物には、オートロックや宅配ボックスが設置されており、来客時には居室内のテレビモニターにて訪問者の顔を確認することができます。
室内設備
システムキッチンが備え付けられています。 お風呂とトイレは別です。お風呂には、追い焚き機能が備わっています。 トイレは、温水洗浄便座機能付きになります。 女性に嬉しい設備の独立した洗面化粧台があります。 洗濯に便利な設備として、室内洗濯機置場があります。浴室乾燥機も設置されているので、梅雨時の生乾き臭も比較的防ぐことができます。
居室状況
お部屋の床は、フローリングとなっており、エアコンが設置されています。 インターネットも無料で入居後すぐ生活が始められます。 収納スペースとして、基本的な居室にクローゼットを設置、玄関にはシューズボックスがあります。
建物設備共用部分
居室外の専有スペースとして、洗濯物を干すなどの用途として利用できるバルコニーがあります。 建物の共用スペースに、日々の出入に便利なエレベーターや、急な外出や不在がちのご家庭の荷物受け取りに便利な宅配ボックスが設置されています。
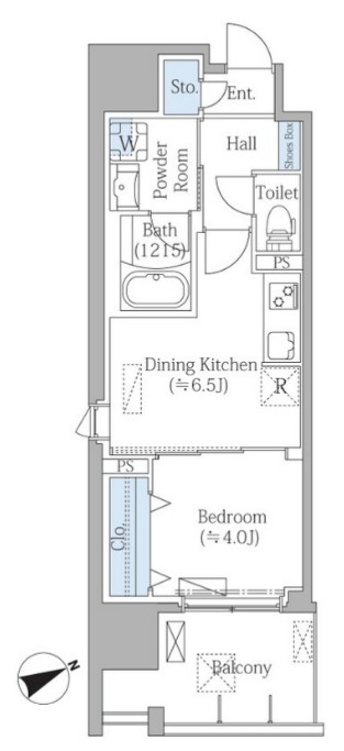
PRIME SQUAREⅢ 501号室の間取り
間取り:1DK
間取詳細:1DK(洋4・DK6.5)
専有面積:32.30㎡
方位:南東
部屋位置:角部屋
PRIME SQUAREⅢ 501号室の設備
キッチン
システムキッチン
バス・トイレ
バス・トイレ別
追い焚き
浴室乾燥機
温水洗浄便座
独立洗面台
玄関
TVモニタ付インターホン
オートロック
宅配ボックス
収納
クローゼット
シューズボックス
バルコニー
バルコニー
ルーフバルコニー
室内設備
エアコン
フローリング
室内洗濯機置場
位置・立地
2階以上
角部屋
インフラ
インターネット可
都市ガス
建物設備
エレベーター
入居条件
オンライン相談可
オンライン内見可
保証人不要
ライフステージ
一人暮らしに人気の設備
カップルに人気の設備
家族に人気の設備
夫婦に人気の設備
三世代で人気の設備
こだわり
外で子どもと遊びたい
雨の日でも洗濯したい
洋室で暮らしたい
趣味
オークション・通販が好き
ガーデニングが好き
お得な条件
インターネット無料
PRIME SQUAREⅢ 501号室の賃貸契約情報
毎月支払う |
家賃15.5万円/月共益費10,000円/月 |
|---|---|
初期費用 |
敷金1ヶ月 (15.5万円)礼金1ヶ月 (15.5万円)保証金-敷引き償却金- |
更新料 |
- |
鍵交換費用 |
- |
室内清掃費用 |
59,400円 |
駐車場料金 |
- |
損保・ |
借家賠付きの火災保険にご加入いただきます。 |
保証会社 |
加入要 保証会社:クレディセゾン 保証会社利用料:初回:50% 年間:10000円 |
契約期間 |
定期借家 2年 |
入居可能日 |
2026年05月中旬 |
フリーレント期間 |
- |
取引形態 |
一般媒介 |
備考 |
1年未満解約時違約金有 |
PRIME SQUAREⅢ 501号室の建物情報
建物名称 |
PRIME SQUAREⅢ |
|---|---|
最寄駅 |
|
所在地 |
東京都大田区大森北 |
階層 |
5階部分(地上14階建) |
構造 |
RC |
築年数 |
新築 |
駐車場 |
- |
小学校学区 |
ー |
中学校学区 |
ー |
- 学区データについて
- ※学区データは必ずしも正確とは限りません。詳細に関しては最寄店舗または各自治体の教育委員会に必ずご確認ください。
無料この物件に問い合わせ
- PRIME SQUAREⅢ 501号室

-
15.5万円
(共益費
10,000円)
- 敷
- 1ヶ月
- 礼
- 1ヶ月
- 保
- -
- 償
- -
PRIME SQUAREⅢ 501号室の物件のお問い合わせ先・取り扱い店舗
ハウスコム 大森店
- アクセス
-
京浜東北・根岸線「大森駅」徒歩1分
- 住所
- 〒143-0023 東京都大田区山王2丁目2−4
- 営業時間
- 10:00~18:00
- 定休日
- 水曜日
- 営業エリア
- 大田区、品川区、港区
- 取引態様
- 賃貸仲介業











