プレサンス新町ウィズジョイ 1304号室(13階/1LDK)の賃貸物件(賃貸マンション)
大阪府大阪市西区にあるプレサンス新町ウィズジョイ 1304号室は浴室乾燥機、オートロック、CATV、BS、バイク置き場などが特徴です。最寄り駅の大阪メトロ 長堀鶴見緑地線西長堀駅から徒歩2分です。プレサンス新町ウィズジョイ 1304号室の詳細はミニミニ FC心斎橋店までお気軽にお問い合わせください!
情報更新日:
次回更新予定日:
※次回更新予定日について:お店側では順次空室確認を行っていますが、次回更新予定日までに空室確認が行えない場合には、この物件情報は自動的に削除されます。
プレサンス新町ウィズジョイ 1304号室の賃貸物件部屋概要
家賃 |
17.25万円
初期費用を |
|---|---|
共益費 |
12,500円
入居可能時期 |
敷金/礼金 |
- / 200,000円 |
保証金/ |
- / - |
最寄駅 |
|
所在地 |
大阪府大阪市西区新町 |
部屋番号 |
1304号室 |
間取り |
1LDK(LDK13・洋6) |
専有面積 |
44.64㎡ |
築年数 |
2018年7月(築8年) |
階数 |
13階部分(地上15階建) |
方位・位置 |
南 / 角部屋 |
物件種別 |
賃貸マンション |
構造 |
RC |
駐車場 |
近隣 33,000円 |
小学校学区 |
堀江小学校 |
中学校学区 |
堀江中学校 |
他の空き部屋 |
ー |
- 学区データについて
- ※学区データは必ずしも正確とは限りません。詳細に関しては最寄店舗または各自治体の教育委員会に必ずご確認ください。
プレサンス新町ウィズジョイ 1304号室の特徴
-
一人暮らしに人気の設備

-
カップルに人気の設備

-
家族に人気の設備

-
夫婦に人気の設備

-
三世代で人気の設備

-
バリアフリー重視

-
外で子どもと遊びたい

-
身だしなみに気をつかいたい

-
雨の日でも洗濯したい

-
苦手な冬を暖かく過ごしたい

-
洋室で暮らしたい

-
料理が好き

-
服やおしゃれが好き

-
靴やスニーカーが好き

-
推し活グッズを飾りたい

-
オークション・通販が好き

-
ガーデニングが好き

契約条件
この物件は、2人入居もご契約できます。 敷金が無料なため、初期費用が比較的安くなる傾向にあります。
セキュリティ
この物件の建物には、オートロックや防犯カメラや宅配ボックスが設置されております。
室内設備
システムキッチンには、ガスコンロが備え付けられています。 お風呂とトイレは別です。お風呂には、追い焚き機能が備わっています。 トイレは、温水洗浄便座機能付きになります。 女性に嬉しい設備のシャワーの付いている洗面化粧台があります。 洗濯に便利な設備として、室内洗濯機置場があります。浴室乾燥機も設置されているので、梅雨時の生乾き臭も比較的防ぐことができます。
居室状況
お部屋の床は、フローリングとなっており、エアコンと一部床下暖房が設置されています。 インターネットも無料で入居後すぐ生活が始められます。 収納スペースとして、基本的な居室にクローゼットを設置、通常よりも収納力の高いウォークインクローゼット、玄関にはシューズインクローゼットがあります。
建物設備共用部分
居室外の専有スペースとして、洗濯物を干すなどの用途として利用できるバルコニーがあります。 建物の共用スペースに、日々の出入に便利なエレベーターや、いざという時の防犯カメラや、急な外出や不在がちのご家庭の荷物受け取りに便利な宅配ボックスが設置されています。 駐輪場、バイク置き場が利用できます。
周辺施設
この物件の学区は、堀江小学校区・堀江中学校区です。
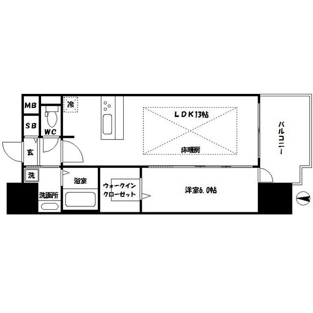
プレサンス新町ウィズジョイ 1304号室の間取り
間取り:1LDK
間取詳細:1LDK(LDK13・洋6)
専有面積:44.64㎡
方位:南
部屋位置:角部屋
プレサンス新町ウィズジョイ 1304号室の設備
キッチン
システムキッチン
カウンターキッチン
ガスコンロ
バス・トイレ
バス・トイレ別
追い焚き
浴室乾燥機
温水洗浄便座
独立洗面台
シャワー付洗面化粧台
玄関
オートロック
宅配ボックス
収納
クローゼット
ウォークインクローゼット
シューズインクローゼット
シューズボックス
バルコニー
バルコニー
ルーフバルコニー
室内設備
エアコン
フローリング
床下暖房
室内洗濯機置場
バリアフリー
位置・立地
2階以上
角部屋
南向き
インフラ
インターネット可
CATV
BS
CS
都市ガス
建物設備
エレベーター
防犯カメラ
駐輪場
バイク置き場
分譲賃貸
入居条件
2人入居可
オンライン相談可
オンライン内見可
ライフステージ
一人暮らしに人気の設備
カップルに人気の設備
家族に人気の設備
夫婦に人気の設備
三世代で人気の設備
こだわり
バリアフリー重視
外で子どもと遊びたい
身だしなみに気をつかいたい
雨の日でも洗濯したい
苦手な冬を暖かく過ごしたい
洋室で暮らしたい
趣味
料理が好き
服やおしゃれが好き
靴やスニーカーが好き
推し活グッズを飾りたい
オークション・通販が好き
ガーデニングが好き
お得な条件
インターネット無料
プレサンス新町ウィズジョイ 1304号室の賃貸契約情報
毎月支払う |
家賃17.25万円/月共益費12,500円/月 |
|---|---|
初期費用 |
敷金-礼金200,000円保証金-敷引き償却金- |
更新料 |
11,000円 |
鍵交換費用 |
29,700円 |
室内清掃費用 |
38,500円 |
駐車場料金 |
近隣 33,000円 |
損保・ |
借家賠付きの火災保険にご加入いただきます。 |
保証会社 |
加入要 保証会社利用料:初回:総賃料の50% 月次:総賃料の1.5% |
契約期間 |
2年 |
入居可能日 |
2026年05月下旬 |
フリーレント期間 |
- |
取引形態 |
一般媒介 |
備考 |
- |
プレサンス新町ウィズジョイ 1304号室の建物情報
建物名称 |
プレサンス新町ウィズジョイ |
|---|---|
最寄駅 |
|
所在地 |
大阪府大阪市西区新町 |
階層 |
13階部分(地上15階建) |
構造 |
RC |
築年数 |
2018年7月(築8年) |
駐車場 |
近隣 33,000円 |
小学校学区 |
堀江小学校 |
中学校学区 |
堀江中学校 |
- 学区データについて
- ※学区データは必ずしも正確とは限りません。詳細に関しては最寄店舗または各自治体の教育委員会に必ずご確認ください。
無料この物件に問い合わせ
- プレサンス新町ウィズジョイ 1304号室

-
17.25万円
(共益費
12,500円)
- 敷
- -
- 礼
- 200,000円
- 保
- -
- 償
- -
プレサンス新町ウィズジョイ 1304号室の物件のお問い合わせ先・取り扱い店舗
ミニミニ FC心斎橋店
- アクセス
-
大阪メトロ 御堂筋線「心斎橋駅」徒歩2分
大阪メトロ 長堀鶴見緑地線「心斎橋駅」徒歩2分
- 住所
- 〒542-0081 大阪府大阪市中央区南船場3-11-6 アルファビル1F
- 営業時間
- 10:00~18:00
- 定休日
- なし
- 営業エリア
- 大阪市中央区,大阪市西区、大阪市北区、大阪市浪速区、大阪市城東区、大阪市港区、大阪市福島区
- 取引態様
- 賃貸仲介業























