エステムコート名古屋葵 308号室(3階/1LDK)の賃貸物件(賃貸マンション)
愛知県名古屋市東区にあるエステムコート名古屋葵 308号室はシャワー付洗面化粧台、クローゼット、角部屋、平面駐車場、分譲賃貸などが特徴です。最寄り駅の名古屋市営地下鉄 桜通線車道駅から徒歩5分です。エステムコート名古屋葵 308号室の詳細はハウスコム 大曽根店までお気軽にお問い合わせください!
情報更新日:
次回更新予定日:
※次回更新予定日について:お店側では順次空室確認を行っていますが、次回更新予定日までに空室確認が行えない場合には、この物件情報は自動的に削除されます。
エステムコート名古屋葵 308号室の賃貸物件部屋概要
家賃 |
8.8万円
初期費用を |
|---|---|
共益費 |
7,100円
入居可能時期 |
敷金/礼金 |
- / - |
保証金/ |
- / - |
最寄駅 |
|
所在地 |
愛知県名古屋市東区葵 |
部屋番号 |
308号室 |
間取り |
1LDK(洋4・LDK8) |
専有面積 |
32.14㎡ |
築年数 |
2024年2月(築3年) |
階数 |
3階部分(地上15階建) |
方位・位置 |
東 / 角部屋 |
物件種別 |
賃貸マンション |
構造 |
RC |
駐車場 |
空無し |
小学校学区 |
葵小学校 |
中学校学区 |
あずま中学校 |
他の空き部屋 |
1506号室 301号室 407号室 607号室 |
- 学区データについて
- ※学区データは必ずしも正確とは限りません。詳細に関しては最寄店舗または各自治体の教育委員会に必ずご確認ください。
エステムコート名古屋葵 308号室の特徴
-
一人暮らしに人気の設備

-
カップルに人気の設備

-
家族に人気の設備

-
夫婦に人気の設備

-
三世代で人気の設備

-
セキュリティ対策重視

-
外で子どもと遊びたい

-
身だしなみに気をつかいたい

-
雨の日でも洗濯したい

-
洋室で暮らしたい

-
オークション・通販が好き

-
ガーデニングが好き

契約条件
ペットの飼育もご相談ください。 敷金と礼金が無料なため、初期費用が比較的安くなる傾向にあります。
セキュリティ
この物件の建物には、オートロックや防犯カメラや宅配ボックスが設置されており、来客時には居室内のテレビモニターにて訪問者の顔を確認することができます。
室内設備
システムキッチンには、2つ以上のガスコンロが備え付けられています。 トイレは、温水洗浄便座機能付きになります。 女性に嬉しい設備のシャワーの付いている洗面化粧台があります。 洗濯に便利な設備として、室内洗濯機置場があります。
居室状況
お部屋の床は、フローリングとなっており、エアコンが設置されています。 インターネットも無料で入居後すぐ生活が始められます。 収納スペースとして、基本的な居室にクローゼットを設置、玄関にはシューズボックスがあります。
建物設備共用部分
居室外の専有スペースとして、洗濯物を干すなどの用途として利用できるバルコニーがあります。 建物の共用スペースに、日々の出入に便利なエレベーターや、いざという時の防犯カメラや、急な外出や不在がちのご家庭の荷物受け取りに便利な宅配ボックスが設置されています。 平面駐車場があります。駐輪場が利用できます。
周辺施設
この物件の学区は、葵小学校区・あずま中学校区です。
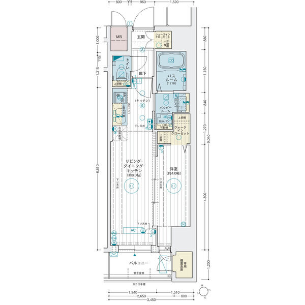
エステムコート名古屋葵 308号室の間取り
間取り:1LDK
間取詳細:1LDK(洋4・LDK8)
専有面積:32.14㎡
方位:東
部屋位置:角部屋
エステムコート名古屋葵 308号室の設備
キッチン
システムキッチン
ガスコンロ
ガスコンロ二口以上
バス・トイレ
バス・トイレ別
温水洗浄便座
独立洗面台
シャワー付洗面化粧台
玄関
TVモニタ付インターホン
オートロック
宅配ボックス
収納
クローゼット
シューズボックス
バルコニー
バルコニー
ルーフバルコニー
室内設備
エアコン
フローリング
室内洗濯機置場
位置・立地
2階以上
角部屋
インフラ
インターネット可
CATV
BS
CS
都市ガス
建物設備
エレベーター
防犯カメラ
駐車場
平面駐車場
駐輪場
分譲賃貸
入居条件
ペット可・相談
オンライン相談可
オンライン内見可
ライフステージ
一人暮らしに人気の設備
カップルに人気の設備
家族に人気の設備
夫婦に人気の設備
三世代で人気の設備
こだわり
セキュリティ対策重視
外で子どもと遊びたい
身だしなみに気をつかいたい
雨の日でも洗濯したい
洋室で暮らしたい
趣味
オークション・通販が好き
ガーデニングが好き
お得な条件
インターネット無料
エステムコート名古屋葵 308号室の賃貸契約情報
毎月支払う |
家賃8.8万円/月共益費7,100円/月 |
|---|---|
初期費用 |
敷金-礼金-保証金-敷引き償却金- |
更新料 |
- |
鍵交換費用 |
- |
室内清掃費用 |
- |
エステム安心クラブ入会金 |
5,500円 |
駐車場料金 |
空無し |
損保・ |
借家賠付きの火災保険にご加入いただきます。 |
保証会社 |
加入要 保証会社利用料:初回保証料:総賃料の50% 月額保証料:1.5% |
契約期間 |
1年 |
入居可能日 |
2026年06月下旬 |
フリーレント期間 |
- |
取引形態 |
一般媒介 |
備考 |
退去時:室内清掃費用 40040円(税込)、カギ交換費用 33000円(税込)、エアコンクリーニング代 13200円(税込) 短期解約違約金:1年未満 家賃・共益費の1ヶ月分 小型犬2匹まで飼育可:月額500円/退去時消毒費2.2万円(税込/退去時) ペット飼育時・20歳未満は鍵交換費用・室内清掃費用を契約時にお支払い バイク置き場:有料 |
エステムコート名古屋葵 308号室の建物情報
建物名称 |
エステムコート名古屋葵 |
|---|---|
最寄駅 |
|
所在地 |
愛知県名古屋市東区葵 |
階層 |
3階部分(地上15階建) |
構造 |
RC |
築年数 |
2024年2月(築3年) |
駐車場 |
空無し |
小学校学区 |
葵小学校 |
中学校学区 |
あずま中学校 |
- 学区データについて
- ※学区データは必ずしも正確とは限りません。詳細に関しては最寄店舗または各自治体の教育委員会に必ずご確認ください。
無料この物件に問い合わせ
- エステムコート名古屋葵 308号室

-
8.8万円
(共益費
7,100円)
- 敷
- -
- 礼
- -
- 保
- -
- 償
- -
エステムコート名古屋葵 308号室の物件のお問い合わせ先・取り扱い店舗
ハウスコム 大曽根店
- アクセス
-
名古屋市営地下鉄 名城線「大曽根駅」徒歩2分
- 住所
- 〒462-0825 愛知県名古屋市北区大曽根3丁目5−6 Comfort大曽根 1階
- 営業時間
- 10:00~18:00
- 定休日
- なし
- 営業エリア
- 名古屋市北区・東区・千種区・西区・守山区・春日井市
- 取引態様
- 賃貸仲介業











