ドエルマルシェB ***号室(1階/1LDK)の賃貸物件(賃貸アパート)
愛知県岡崎市にあるドエルマルシェB ***号室はバス・トイレ別、プロパンガス、駐車場、駐輪場、オンライン相談可などが特徴です。最寄り駅の名鉄名古屋本線東岡崎駅からバスで21分、洞町から徒歩3分です。ドエルマルシェB ***号室の詳細はハウスコム 岡崎店までお気軽にお問い合わせください!
情報更新日:
次回更新予定日:
※次回更新予定日について:お店側では順次空室確認を行っていますが、次回更新予定日までに空室確認が行えない場合には、この物件情報は自動的に削除されます。
ドエルマルシェB ***号室の賃貸物件部屋概要
家賃 |
4.4万円
初期費用を |
|---|---|
共益費 |
3,500円
入居可能時期 |
敷金/礼金 |
- / - |
保証金/ |
- / - |
最寄駅 |
|
所在地 |
愛知県岡崎市洞町 |
部屋番号 |
***号室 |
間取り |
1LDK(洋6.6・LDK11.3) |
専有面積 |
44.60㎡ |
築年数 |
1998年3月(築28年) |
階数 |
1階部分(地上2階建) |
方位・位置 |
東 / 角部屋 |
物件種別 |
賃貸アパート |
構造 |
木造 |
駐車場 |
4,400円 |
小学校学区 |
男川小学校 |
中学校学区 |
美川中学校 |
他の空き部屋 |
ー |
- 学区データについて
- ※学区データは必ずしも正確とは限りません。詳細に関しては最寄店舗または各自治体の教育委員会に必ずご確認ください。
ドエルマルシェB ***号室の特徴
契約条件
この物件は、2人入居もご契約できます。 敷金と礼金が無料なため、初期費用が比較的安くなる傾向にあります。
室内設備
女性に嬉しい設備の独立した洗面化粧台があります。 洗濯に便利な設備として、室内洗濯機置場があります。
居室状況
お部屋の床は、フローリングとなっています。収納スペースとして、基本的な居室にクローゼットを設置、玄関にはシューズボックスがあります。
建物設備共用部分
居室外の専有スペースとして、洗濯物を干すなどの用途として利用できるバルコニーがあります。 平面駐車場があります。駐輪場が利用できます。
周辺施設
この物件の学区は、男川小学校区・美川中学校区です。近くには、徒歩13分(995m)でセブンイレブン岡崎欠町店があります。
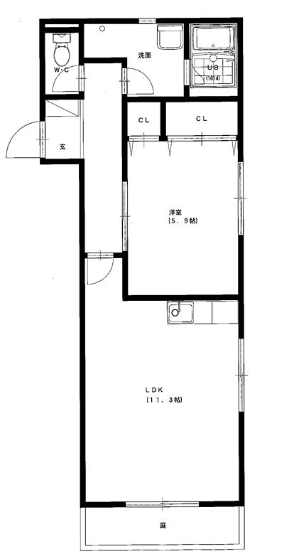
ドエルマルシェB ***号室の間取り
間取り:1LDK
間取詳細:1LDK(洋6.6・LDK11.3)
専有面積:44.60㎡
方位:東
部屋位置:角部屋
ドエルマルシェB ***号室の設備
バス・トイレ
バス・トイレ別
独立洗面台
収納
クローゼット
シューズボックス
バルコニー
バルコニー
ルーフバルコニー
室内設備
フローリング
室内洗濯機置場
位置・立地
1階
角部屋
インフラ
CATV
プロパンガス
建物設備
駐車場
平面駐車場
駐輪場
入居条件
2人入居可
オンライン相談可
オンライン内見可
即入居可
ライフステージ
一人暮らしに人気の設備
カップルに人気の設備
家族に人気の設備
夫婦に人気の設備
三世代で人気の設備
こだわり
外で子どもと遊びたい
雨の日でも洗濯したい
洋室で暮らしたい
趣味
ガーデニングが好き
ドエルマルシェB ***号室の賃貸契約情報
毎月支払う |
家賃4.4万円/月共益費3,500円/月 |
|---|---|
初期費用 |
敷金-礼金-保証金-敷引き償却金- |
更新料 |
- |
鍵交換費用 |
20,000円 |
室内清掃費用 |
- |
修繕費 |
70,000円 |
駐車場料金 |
4,400円 |
損保・ |
借家賠付きの火災保険にご加入いただきます。 |
保証会社 |
加入要 保証会社利用料:初回保証料50%月額2090円 |
契約期間 |
- |
入居可能日 |
即入居可 |
フリーレント期間 |
- |
取引形態 |
一般媒介 |
備考 |
- |
ドエルマルシェB ***号室の建物情報
建物名称 |
ドエルマルシェB |
|---|---|
最寄駅 |
|
所在地 |
愛知県岡崎市洞町 |
階層 |
1階部分(地上2階建) |
構造 |
木造 |
築年数 |
1998年3月(築28年) |
駐車場 |
4,400円 |
小学校学区 |
男川小学校 |
中学校学区 |
美川中学校 |
- 学区データについて
- ※学区データは必ずしも正確とは限りません。詳細に関しては最寄店舗または各自治体の教育委員会に必ずご確認ください。
無料この物件に問い合わせ
- ドエルマルシェB ***号室

-
4.4万円
(共益費
3,500円)
- 敷
- -
- 礼
- -
- 保
- -
- 償
- -
ドエルマルシェB ***号室の物件のお問い合わせ先・取り扱い店舗
ハウスコム 岡崎店
- アクセス
-
名鉄名古屋本線「東岡崎駅」北口徒歩8分
- 住所
- 〒444-0044 愛知県岡崎市康生通南2−32 Sビル 1階
- 営業時間
- 10:00~18:00
- 定休日
- なし
- 営業エリア
- 岡崎市、幸田町、豊川市、蒲郡市、安城市、西尾市
- 取引態様
- 賃貸仲介業






































