KEIAI RESIDENCE 大和田Ⅳ 201号室(2階/1LDK)の賃貸物件(賃貸アパート)
埼玉県さいたま市見沼区にあるKEIAI RESIDENCE 大和田Ⅳ 201号室はシステムキッチン、バルコニー、CATV、オンライン相談可、保証人不要などが特徴です。最寄り駅の東武アーバンパークライン・野田線大和田駅から徒歩9分です。KEIAI RESIDENCE 大和田Ⅳ 201号室の詳細はハウスコム 大宮東口店までお気軽にお問い合わせください!
情報更新日:
次回更新予定日:
※次回更新予定日について:お店側では順次空室確認を行っていますが、次回更新予定日までに空室確認が行えない場合には、この物件情報は自動的に削除されます。
KEIAI RESIDENCE 大和田Ⅳ 201号室の賃貸物件部屋概要
家賃 |
7.5万円
初期費用を |
|---|---|
共益費 |
3,500円
入居可能時期 |
敷金/礼金 |
- / 1ヶ月 |
保証金/ |
- / - |
最寄駅 |
|
所在地 |
埼玉県さいたま市見沼区大和田町 |
部屋番号 |
201号室 |
間取り |
1LDK(洋3・LDK10.2) |
専有面積 |
31.98㎡ |
築年数 |
新築 |
階数 |
2階部分(地上3階建) |
方位・位置 |
ー / 角部屋 |
物件種別 |
賃貸アパート |
構造 |
木造 |
駐車場 |
- |
小学校学区 |
大砂土東小学校 |
中学校学区 |
大宮八幡中学校 |
他の空き部屋 |
101号室 102号室 103号室 202号室 203号室 301号室 302号室 303号室 |
- 学区データについて
- ※学区データは必ずしも正確とは限りません。詳細に関しては最寄店舗または各自治体の教育委員会に必ずご確認ください。
KEIAI RESIDENCE 大和田Ⅳ 201号室の特徴
-
一人暮らしに人気の設備

-
カップルに人気の設備

-
家族に人気の設備

-
夫婦に人気の設備

-
三世代で人気の設備

-
外で子どもと遊びたい

-
雨の日でも洗濯したい

-
洋室で暮らしたい

-
服やおしゃれが好き

-
推し活グッズを飾りたい

-
オークション・通販が好き

-
ガーデニングが好き

契約条件
ご契約時に保証人は不要です。 敷金が無料なため、初期費用が比較的安くなる傾向にあります。
セキュリティ
この物件の建物には、オートロックや宅配ボックスが設置されております。
室内設備
システムキッチンが備え付けられています。 トイレは、温水洗浄便座機能付きになります。 女性に嬉しい設備のシャワーの付いている洗面化粧台があります。 洗濯に便利な設備として、室内洗濯機置場があります。浴室乾燥機も設置されているので、梅雨時の生乾き臭も比較的防ぐことができます。
居室状況
お部屋の床は、フローリングとなっており、エアコンが設置されています。 インターネットも無料で入居後すぐ生活が始められます。 収納スペースとして、基本的な居室にクローゼットを設置、通常よりも収納力の高いウォークインクローゼット、玄関にはシューズボックスがあります。
建物設備共用部分
居室外の専有スペースとして、洗濯物を干すなどの用途として利用できるバルコニーがあります。 建物の共用スペースに、急な外出や不在がちのご家庭の荷物受け取りに便利な宅配ボックスが設置されています。
周辺施設
この物件の学区は、大砂土東小学校区・大宮八幡中学校区です。
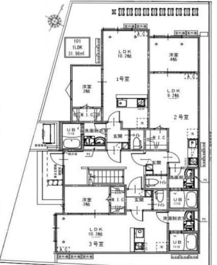
KEIAI RESIDENCE 大和田Ⅳ 201号室の間取り
間取り:1LDK
間取詳細:1LDK(洋3・LDK10.2)
専有面積:31.98㎡
方位:ー
部屋位置:角部屋
KEIAI RESIDENCE 大和田Ⅳ 201号室の設備
キッチン
システムキッチン
カウンターキッチン
バス・トイレ
バス・トイレ別
浴室乾燥機
温水洗浄便座
独立洗面台
シャワー付洗面化粧台
玄関
オートロック
宅配ボックス
収納
クローゼット
ウォークインクローゼット
シューズボックス
バルコニー
バルコニー
ルーフバルコニー
室内設備
エアコン
フローリング
室内洗濯機置場
位置・立地
2階以上
角部屋
インフラ
インターネット可
CATV
BS
CS
都市ガス
入居条件
オンライン相談可
オンライン内見可
保証人不要
ライフステージ
一人暮らしに人気の設備
カップルに人気の設備
家族に人気の設備
夫婦に人気の設備
三世代で人気の設備
こだわり
外で子どもと遊びたい
雨の日でも洗濯したい
洋室で暮らしたい
趣味
服やおしゃれが好き
推し活グッズを飾りたい
オークション・通販が好き
ガーデニングが好き
お得な条件
インターネット無料
KEIAI RESIDENCE 大和田Ⅳ 201号室の賃貸契約情報
毎月支払う |
家賃7.5万円/月共益費3,500円/月 |
|---|---|
初期費用 |
敷金-礼金1ヶ月 (7.5万円)保証金-敷引き償却金- |
更新料 |
75,000円 |
鍵交換費用 |
27,500円 |
室内清掃費用 |
66,000円 |
駐車場料金 |
- |
損保・ |
借家賠付きの火災保険にご加入いただきます。 |
保証会社 |
加入要 保証会社利用料:初回保証料:家賃総額50% 月額保証料:900円/月 |
契約期間 |
2年 |
入居可能日 |
2026年05月 |
フリーレント期間 |
- |
取引形態 |
一般媒介 |
備考 |
- |
KEIAI RESIDENCE 大和田Ⅳ 201号室の建物情報
建物名称 |
KEIAI RESIDENCE 大和田Ⅳ |
|---|---|
最寄駅 |
|
所在地 |
埼玉県さいたま市見沼区大和田町 |
階層 |
2階部分(地上3階建) |
構造 |
木造 |
築年数 |
新築 |
駐車場 |
- |
小学校学区 |
大砂土東小学校 |
中学校学区 |
大宮八幡中学校 |
- 学区データについて
- ※学区データは必ずしも正確とは限りません。詳細に関しては最寄店舗または各自治体の教育委員会に必ずご確認ください。
無料この物件に問い合わせ
- KEIAI RESIDENCE 大和田Ⅳ 201号室

-
7.5万円
(共益費
3,500円)
- 敷
- -
- 礼
- 1ヶ月
- 保
- -
- 償
- -
KEIAI RESIDENCE 大和田Ⅳ 201号室の物件のお問い合わせ先・取り扱い店舗
ハウスコム 大宮東口店
- アクセス
-
京浜東北・根岸線「大宮駅」東口(北)徒歩1分
- 住所
- 〒330-0846 埼玉県さいたま市大宮区大門町1丁目92−7 ハイカラ堂ビル 2階
- 営業時間
- 10:00~18:00
- 定休日
- 水曜日
- 営業エリア
- さいたま市大宮区、中央区、北区、西区、見沼区、西区、浦和区、岩槻区、上尾市、蓮田市、白岡市、伊奈町 etc.
- 取引態様
- 賃貸仲介業
















