レジディア市ヶ谷Ⅱ ***号室(10階/1K)の賃貸物件(賃貸マンション)
東京都新宿区にあるレジディア市ヶ谷Ⅱ ***号室はオートロック、バルコニー、都市ガス、24時間ゴミ出しOK、オンライン内見可などが特徴です。最寄り駅の東京メトロ 有楽町線市ケ谷駅から徒歩10分です。レジディア市ヶ谷Ⅱ ***号室の詳細はハウスコム 新宿店までお気軽にお問い合わせください!
情報更新日:
次回更新予定日:
※次回更新予定日について:お店側では順次空室確認を行っていますが、次回更新予定日までに空室確認が行えない場合には、この物件情報は自動的に削除されます。
レジディア市ヶ谷Ⅱ ***号室の賃貸物件部屋概要
家賃 |
18.5万円
初期費用を |
|---|---|
共益費 |
20,000円
入居可能時期 |
敷金/礼金 |
- / - |
保証金/ |
- / - |
最寄駅 |
|
所在地 |
東京都新宿区市谷砂土原町 |
部屋番号 |
***号室 |
間取り |
1K(洋12.7) |
専有面積 |
35.19㎡ |
築年数 |
2007年10月(築19年) |
階数 |
10階部分(地上14階建) |
方位・位置 |
北東 / その他 |
物件種別 |
賃貸マンション |
構造 |
RC |
駐車場 |
- |
小学校学区 |
愛日小学校 |
中学校学区 |
牛込第三中学校 |
他の空き部屋 |
***号室 ***号室 904号室 |
- 学区データについて
- ※学区データは必ずしも正確とは限りません。詳細に関しては最寄店舗または各自治体の教育委員会に必ずご確認ください。
レジディア市ヶ谷Ⅱ ***号室の特徴
-
一人暮らしに人気の設備

-
カップルに人気の設備

-
家族に人気の設備

-
夫婦に人気の設備

-
三世代で人気の設備

-
セキュリティ対策重視

-
タイパ重視

-
外で子どもと遊びたい

-
雨の日でも洗濯したい

-
洋室で暮らしたい

-
ガーデニングが好き

契約条件
ペットの飼育もご相談ください。 敷金と礼金が無料なため、初期費用が比較的安くなる傾向にあります。
セキュリティ
この物件の建物には、オートロックや防犯カメラや宅配ボックスが設置されており、来客時には居室内のテレビモニターにて訪問者の顔を確認することができます。
室内設備
システムキッチンには、2つ以上のガスコンロが備え付けられています。 トイレは、温水洗浄便座機能付きになります。 女性に嬉しい設備のシャワーの付いている洗面化粧台があります。 洗濯に便利な設備として、室内洗濯機置場があります。浴室乾燥機も設置されているので、梅雨時の生乾き臭も比較的防ぐことができます。
居室状況
お部屋の床は、フローリングとなっており、エアコンが設置されています。 収納スペースとして、基本的な居室にクローゼットを設置、玄関にはシューズボックスがあります。
建物設備共用部分
居室外の専有スペースとして、洗濯物を干すなどの用途として利用できるバルコニーがあります。 建物の共用スペースに、日々の出入に便利なエレベーターや、いざという時の防犯カメラや、急な外出や不在がちのご家庭の荷物受け取りに便利な宅配ボックスや、居室内を常に清潔に保てる24時間利用可能なゴミ捨て置き場が設置されています。 駐輪場、バイク置き場が利用できます。
周辺施設
この物件の学区は、愛日小学校区・牛込第三中学校区です。
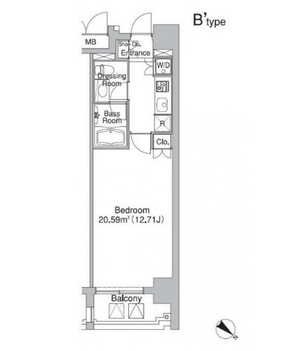
レジディア市ヶ谷Ⅱ ***号室の間取り
間取り:1K
間取詳細:1K(洋12.7)
専有面積:35.19㎡
方位:北東
部屋位置:その他
レジディア市ヶ谷Ⅱ ***号室の設備
キッチン
システムキッチン
ガスコンロ
ガスコンロ二口以上
バス・トイレ
バス・トイレ別
浴室乾燥機
温水洗浄便座
独立洗面台
シャワー付洗面化粧台
玄関
TVモニタ付インターホン
オートロック
宅配ボックス
収納
クローゼット
シューズボックス
バルコニー
バルコニー
ルーフバルコニー
室内設備
エアコン
フローリング
室内洗濯機置場
デザイナーズ
位置・立地
2階以上
インフラ
都市ガス
建物設備
エレベーター
防犯カメラ
24時間ゴミ出しOK
駐輪場
バイク置き場
入居条件
ペット可・相談
オンライン相談可
オンライン内見可
ライフステージ
一人暮らしに人気の設備
カップルに人気の設備
家族に人気の設備
夫婦に人気の設備
三世代で人気の設備
こだわり
セキュリティ対策重視
タイパ重視
外で子どもと遊びたい
雨の日でも洗濯したい
洋室で暮らしたい
趣味
ガーデニングが好き
レジディア市ヶ谷Ⅱ ***号室の賃貸契約情報
毎月支払う |
家賃18.5万円/月共益費20,000円/月 |
|---|---|
初期費用 |
敷金-礼金-保証金-敷引き償却金- |
更新料 |
185,000円 |
鍵交換費用 |
22,000円 |
室内清掃費用 |
67,100円 |
入居者限定会員サービス/2年 |
11,000円 |
駐車場料金 |
- |
損保・ |
借家賠付きの火災保険にご加入いただきます。 |
保証会社 |
加入要 保証会社利用料:初回保証料:総賃料40%、更新時:10,000円/年、月額:1,000円 |
契約期間 |
2年 |
入居可能日 |
相談 |
フリーレント期間 |
- |
取引形態 |
一般媒介 |
備考 |
ペット:?型?1匹もしくは猫1匹迄(敷?1ヶ?追加) 敷金0ヶ月は個人契約限定(大手法人は敷金2ヶ月) 1年未満解約時、賃料1ヶ?分の違約?有り 退去時エアコン洗浄費:13200円/台 解約予告:2ヶ月前 セカンドハウス利?不可 インターネット:別途要契約、実費負担 駐車場・駐輪場:要空き確認 バイク置場:敷金1カ月、中型まで、要空き確認 |
レジディア市ヶ谷Ⅱ ***号室の建物情報
建物名称 |
レジディア市ヶ谷Ⅱ |
|---|---|
最寄駅 |
|
所在地 |
東京都新宿区市谷砂土原町 |
階層 |
10階部分(地上14階建) |
構造 |
RC |
築年数 |
2007年10月(築19年) |
駐車場 |
- |
小学校学区 |
愛日小学校 |
中学校学区 |
牛込第三中学校 |
- 学区データについて
- ※学区データは必ずしも正確とは限りません。詳細に関しては最寄店舗または各自治体の教育委員会に必ずご確認ください。
無料この物件に問い合わせ
- レジディア市ヶ谷Ⅱ ***号室

-
18.5万円
(共益費
20,000円)
- 敷
- -
- 礼
- -
- 保
- -
- 償
- -
レジディア市ヶ谷Ⅱ ***号室の物件のお問い合わせ先・取り扱い店舗
ハウスコム 新宿店
- アクセス
-
山手線「新宿駅」徒歩1分
- 住所
- 〒160-0022 東京都新宿区新宿3-36-2 新宿キリンビル3階
- 営業時間
- 10:00~18:00
- 定休日
- 水曜日
- 営業エリア
- 主に新宿区・渋谷区(その他の地域もご紹介可能です)
- 取引態様
- 賃貸仲介業





























