レオパレスコンフォート ***号室(1階/1K)の賃貸物件(賃貸アパート)
埼玉県さいたま市西区にあるレオパレスコンフォート ***号室はバス・トイレ別、ロフト付、家具付、インターネット可、CATVなどが特徴です。最寄り駅の高崎線宮原駅からバスで13分、内野本郷から徒歩9分です。レオパレスコンフォート ***号室の詳細はハウスコム 大宮店までお気軽にお問い合わせください!
情報更新日:
次回更新予定日:
※次回更新予定日について:お店側では順次空室確認を行っていますが、次回更新予定日までに空室確認が行えない場合には、この物件情報は自動的に削除されます。
レオパレスコンフォート ***号室の賃貸物件部屋概要
家賃 |
5.8万円
初期費用を |
|---|---|
共益費 |
5,000円
入居可能時期 |
敷金/礼金 |
- / 58,000円 |
保証金/ |
- / - |
最寄駅 |
|
所在地 |
埼玉県さいたま市西区大字内野本郷 |
部屋番号 |
***号室 |
間取り |
1K |
専有面積 |
19.87㎡ |
築年数 |
2006年9月(築20年) |
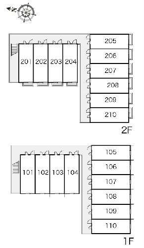
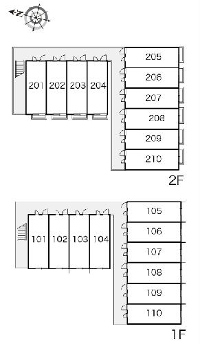
階数 |
1階部分(地上2階建) |
方位・位置 |
ー / その他 |
物件種別 |
賃貸アパート |
構造 |
軽量鉄骨 |
駐車場 |
無 |
小学校学区 |
日進北小学校 |
中学校学区 |
宮前中学校 |
他の空き部屋 |
ー |
- 学区データについて
- ※学区データは必ずしも正確とは限りません。詳細に関しては最寄店舗または各自治体の教育委員会に必ずご確認ください。
レオパレスコンフォート ***号室の特徴
契約条件
敷金が無料なため、初期費用が比較的安くなる傾向にあります。
セキュリティ
この物件の建物には、宅配ボックスが設置されており、来客時には居室内のテレビモニターにて訪問者の顔を確認することができます。
室内設備
トイレは、温水洗浄便座機能付きになります。 洗濯に便利な設備として、室内洗濯機置場があります。
居室状況
居室には、ロフトが設置されており大規模な収納スペースやセパレートされた寝室として活用できます。 エアコンが設置されています。 家具が備え付けられており、入居後すぐ生活が始められます。 収納スペースとして、玄関にはシューズボックスがあります。
建物設備共用部分
建物の共用スペースに、急な外出や不在がちのご家庭の荷物受け取りに便利な宅配ボックスが設置されています。
周辺施設
この物件の学区は、日進北小学校区・宮前中学校区です。
レオパレスコンフォート ***号室の間取り
間取り:1K
間取詳細:1K
専有面積:19.87㎡
方位:ー
部屋位置:その他
レオパレスコンフォート ***号室の設備
バス・トイレ
バス・トイレ別
温水洗浄便座
玄関
TVモニタ付インターホン
宅配ボックス
収納
シューズボックス
室内設備
エアコン
室内洗濯機置場
ロフト付
家具付
位置・立地
1階
インフラ
インターネット可
CATV
ライフステージ
一人暮らしに人気の設備
カップルに人気の設備
家族に人気の設備
夫婦に人気の設備
三世代で人気の設備
トレンド
ミニマリスト
こだわり
雨の日でも洗濯したい
寝るためだけの部屋
レオパレスコンフォート ***号室の賃貸契約情報
毎月支払う |
家賃5.8万円/月共益費5,000円/月 |
|---|---|
初期費用 |
敷金-礼金58,000円保証金-敷引き償却金- |
更新料 |
- |
鍵交換費用 |
16,500円 |
室内清掃費用 |
41,800円 |
抗菌施工(任意) |
23,760円 |
駐車場料金 |
無 |
損保・ |
借家賠付きの火災保険にご加入いただきます。 |
保証会社 |
加入要 保証会社利用料:保証料:55190円(契約内容により100~120%で変動有)※記載金額は120%の場合 |
契約期間 |
- |
入居可能日 |
即入居可 |
フリーレント期間 |
- |
取引形態 |
一般媒介 |
備考 |
- |
レオパレスコンフォート ***号室の建物情報
建物名称 |
レオパレスコンフォート |
|---|---|
最寄駅 |
|
所在地 |
埼玉県さいたま市西区大字内野本郷 |
階層 |
1階部分(地上2階建) |
構造 |
軽量鉄骨 |
築年数 |
2006年9月(築20年) |
駐車場 |
無 |
小学校学区 |
日進北小学校 |
中学校学区 |
宮前中学校 |
- 学区データについて
- ※学区データは必ずしも正確とは限りません。詳細に関しては最寄店舗または各自治体の教育委員会に必ずご確認ください。
無料この物件に問い合わせ
- レオパレスコンフォート ***号室

-
5.8万円
(共益費
5,000円)
- 敷
- -
- 礼
- 58,000円
- 保
- -
- 償
- -
レオパレスコンフォート ***号室の物件のお問い合わせ先・取り扱い店舗
ハウスコム 大宮店
- アクセス
-
京浜東北・根岸線「大宮駅」西口徒歩1分
- 住所
- 〒330-0854 埼玉県さいたま市大宮区桜木町1丁目1−4 TS-114ビル 1階
- 営業時間
- 10:00~18:00
- 定休日
- なし
- 営業エリア
- さいたま市中央区,さいたま市北区,さいたま市大宮区,さいたま市桜区,さいたま市西区,さいたま市見沼区,岩槻区,上尾市,北足立郡伊奈町
- 取引態様
- 賃貸仲介業


























