レオパレスHOPE 201号室(2階/1K)の賃貸物件(賃貸アパート)
東京都調布市にあるレオパレスHOPE 201号室は冷蔵庫付、バス・トイレ別、浴室乾燥機、角部屋、オンライン内見可などが特徴です。最寄り駅の京王相模原線京王多摩川駅から徒歩7分です。レオパレスHOPE 201号室の詳細はハウスコム 調布店までお気軽にお問い合わせください!
情報更新日:
次回更新予定日:
※次回更新予定日について:お店側では順次空室確認を行っていますが、次回更新予定日までに空室確認が行えない場合には、この物件情報は自動的に削除されます。
レオパレスHOPE 201号室の賃貸物件部屋概要
家賃 |
8.7万円
初期費用を |
|---|---|
共益費 |
5,000円
入居可能時期 |
敷金/礼金 |
- / 87,000円 |
保証金/ |
- / - |
最寄駅 |
|
所在地 |
東京都調布市多摩川 |
部屋番号 |
201号室 |
間取り |
1K(洋6.8) |
専有面積 |
24.99㎡ |
築年数 |
2004年11月(築22年) |
階数 |
2階部分(地上2階建) |
方位・位置 |
南東 / 角部屋 |
物件種別 |
賃貸アパート |
構造 |
木造 |
駐車場 |
無 |
小学校学区 |
多摩川小学校 |
中学校学区 |
第五中学校 |
他の空き部屋 |
202号室 204号室 |
- 学区データについて
- ※学区データは必ずしも正確とは限りません。詳細に関しては最寄店舗または各自治体の教育委員会に必ずご確認ください。
レオパレスHOPE 201号室の特徴
契約条件
この物件は、入居者が学生限定もしくは歓迎でご契約できます。 また、ご契約時に保証人は不要です。 敷金が無料なため、初期費用が比較的安くなる傾向にあります。
セキュリティ
この物件の建物には、防犯カメラや宅配ボックスが設置されており、来客時には居室内のテレビモニターにて訪問者の顔を確認することができます。
室内設備
システムキッチンには、電気コンロが設置されており、キッチン設備として冷蔵庫が備え付けられています。 洗濯に便利な設備として、室内洗濯機置場があります。浴室乾燥機も設置されているので、梅雨時の生乾き臭も比較的防ぐことができます。
居室状況
お部屋の床は、フローリングとなっており、エアコンが設置されています。 収納スペースとして、玄関にはシューズボックスがあります。
建物設備共用部分
建物の共用スペースに、いざという時の防犯カメラや、急な外出や不在がちのご家庭の荷物受け取りに便利な宅配ボックスが設置されています。 駐輪場が利用できます。
周辺施設
この物件の学区は、多摩川小学校区・第五中学校区です。
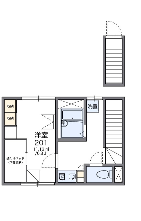
レオパレスHOPE 201号室の間取り
間取り:1K
間取詳細:1K(洋6.8)
専有面積:24.99㎡
方位:南東
部屋位置:角部屋
レオパレスHOPE 201号室の設備
キッチン
システムキッチン
電気コンロ
冷蔵庫付
バス・トイレ
バス・トイレ別
浴室乾燥機
玄関
TVモニタ付インターホン
宅配ボックス
収納
シューズボックス
室内設備
エアコン
フローリング
室内洗濯機置場
位置・立地
2階以上
最上階
角部屋
インフラ
インターネット可
プロパンガス
建物設備
防犯カメラ
駐輪場
入居条件
学生限定・歓迎
オンライン相談可
オンライン内見可
保証人不要
ライフステージ
一人暮らしに人気の設備
カップルに人気の設備
家族に人気の設備
夫婦に人気の設備
三世代で人気の設備
こだわり
雨の日でも洗濯したい
洋室で暮らしたい
レオパレスHOPE 201号室の賃貸契約情報
毎月支払う |
家賃8.7万円/月共益費5,000円/月 |
|---|---|
初期費用 |
敷金-礼金87,000円保証金-敷引き償却金- |
更新料 |
- |
鍵交換費用 |
16,500円 |
室内清掃費用 |
41,800円 |
抗菌施工(任意) |
23,760円 |
駐車場料金 |
無 |
損保・ |
借家賠付きの火災保険にご加入いただきます。 |
保証会社 |
加入要 保証会社利用料:保証料:110990円(契約内容により100~120%で変動有)※記載金額は120%の場合 |
契約期間 |
- |
入居可能日 |
2026年05月 |
フリーレント期間 |
- |
取引形態 |
一般媒介 |
備考 |
- |
レオパレスHOPE 201号室の建物情報
建物名称 |
レオパレスHOPE |
|---|---|
最寄駅 |
|
所在地 |
東京都調布市多摩川 |
階層 |
2階部分(地上2階建) |
構造 |
木造 |
築年数 |
2004年11月(築22年) |
駐車場 |
無 |
小学校学区 |
多摩川小学校 |
中学校学区 |
第五中学校 |
- 学区データについて
- ※学区データは必ずしも正確とは限りません。詳細に関しては最寄店舗または各自治体の教育委員会に必ずご確認ください。
無料この物件に問い合わせ
- レオパレスHOPE 201号室

-
8.7万円
(共益費
5,000円)
- 敷
- -
- 礼
- 87,000円
- 保
- -
- 償
- -
レオパレスHOPE 201号室の物件のお問い合わせ先・取り扱い店舗
ハウスコム 調布店
- アクセス
-
京王線「調布駅」徒歩2分
- 住所
- 〒182-0024 東京都調布市布田4丁目17−10 セントラルレジデンス調布 1階
- 営業時間
- 10:00~18:00
- 定休日
- 水曜日
- 営業エリア
- 調布市、府中市、稲城市、川崎市多摩区、世田谷区
- 取引態様
- 賃貸仲介業



























