Le’a横濱天王町参番館 301号室(3階/1K)の賃貸物件(賃貸マンション)
神奈川県横浜市保土ケ谷区にあるLe’a横濱天王町参番館 301号室はシューズボックス、ルーフバルコニー、2階以上、エレベーター、防犯カメラなどが特徴です。最寄り駅の相鉄本線天王町駅から徒歩5分です。Le’a横濱天王町参番館 301号室の詳細はハウスコム 菊名店までお気軽にお問い合わせください!
情報更新日:
次回更新予定日:
※次回更新予定日について:お店側では順次空室確認を行っていますが、次回更新予定日までに空室確認が行えない場合には、この物件情報は自動的に削除されます。
Le’a横濱天王町参番館 301号室の賃貸物件部屋概要
家賃 |
8.3万円
初期費用を |
|---|---|
共益費 |
10,000円
入居可能時期 |
敷金/礼金 |
- / 83,000円 |
保証金/ |
93,000円 / - |
最寄駅 |
|
所在地 |
神奈川県横浜市保土ケ谷区天王町 |
部屋番号 |
301号室 |
間取り |
1K |
専有面積 |
20.02㎡ |
築年数 |
2019年4月(築7年) |
階数 |
3階部分(地上7階建) |
方位・位置 |
南西 / 角部屋 |
物件種別 |
賃貸マンション |
構造 |
RC |
駐車場 |
- |
小学校学区 |
帷子小学校 |
中学校学区 |
宮田中学校 |
他の空き部屋 |
ー |
- 学区データについて
- ※学区データは必ずしも正確とは限りません。詳細に関しては最寄店舗または各自治体の教育委員会に必ずご確認ください。
Le’a横濱天王町参番館 301号室の特徴
-
一人暮らしに人気の設備

-
カップルに人気の設備

-
家族に人気の設備

-
夫婦に人気の設備

-
三世代で人気の設備

-
外で子どもと遊びたい

-
身だしなみに気をつかいたい

-
洋室で暮らしたい

-
持ち物をスッキリ隠す収納部屋

-
ガーデニングが好き

契約条件
敷金が無料なため、初期費用が比較的安くなる傾向にあります。
セキュリティ
この物件の建物には、防犯カメラや宅配ボックスが設置されており、来客時には居室内のテレビモニターにて訪問者の顔を確認することができます。
室内設備
システムキッチンには、2つ以上のガスコンロが備え付けられています。 トイレは、温水洗浄便座機能付きになります。 女性に嬉しい設備の独立した洗面化粧台があります。
居室状況
お部屋の床は、フローリングとなっており、エアコンが設置されています。 収納スペースとして、玄関にはシューズボックスがあります。
建物設備共用部分
居室外の専有スペースとして、洗濯物を干すなどの用途として利用できるバルコニーがあります。 建物の共用スペースに、日々の出入に便利なエレベーターや、いざという時の防犯カメラや、急な外出や不在がちのご家庭の荷物受け取りに便利な宅配ボックスが設置されています。 駐輪場、バイク置き場が利用できます。
周辺施設
この物件の学区は、帷子小学校区・宮田中学校区です。
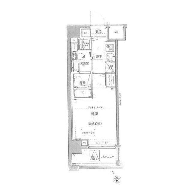
Le’a横濱天王町参番館 301号室の間取り
間取り:1K
間取詳細:1K
専有面積:20.02㎡
方位:南西
部屋位置:角部屋
Le’a横濱天王町参番館 301号室の設備
キッチン
システムキッチン
ガスコンロ
ガスコンロ二口以上
バス・トイレ
バス・トイレ別
温水洗浄便座
独立洗面台
玄関
TVモニタ付インターホン
宅配ボックス
収納
シューズボックス
全居室収納
バルコニー
バルコニー
ルーフバルコニー
室内設備
エアコン
フローリング
位置・立地
2階以上
角部屋
インフラ
インターネット可
BS
CS
都市ガス
建物設備
エレベーター
防犯カメラ
駐輪場
バイク置き場
分譲賃貸
ライフステージ
一人暮らしに人気の設備
カップルに人気の設備
家族に人気の設備
夫婦に人気の設備
三世代で人気の設備
こだわり
外で子どもと遊びたい
身だしなみに気をつかいたい
洋室で暮らしたい
持ち物をスッキリ隠す収納部屋
趣味
ガーデニングが好き
Le’a横濱天王町参番館 301号室の賃貸契約情報
毎月支払う |
家賃8.3万円/月共益費10,000円/月 |
|---|---|
初期費用 |
敷金-礼金83,000円保証金93,000円敷引き償却金- |
更新料 |
- |
鍵交換費用 |
- |
室内清掃費用 |
- |
駐車場料金 |
- |
損保・ |
借家賠付きの火災保険にご加入いただきます。 |
保証会社 |
|
契約期間 |
- |
入居可能日 |
2026年07月中旬 |
フリーレント期間 |
- |
取引形態 |
一般媒介 |
備考 |
- |
Le’a横濱天王町参番館 301号室の建物情報
建物名称 |
Le’a横濱天王町参番館 |
|---|---|
最寄駅 |
|
所在地 |
神奈川県横浜市保土ケ谷区天王町 |
階層 |
3階部分(地上7階建) |
構造 |
RC |
築年数 |
2019年4月(築7年) |
駐車場 |
- |
小学校学区 |
帷子小学校 |
中学校学区 |
宮田中学校 |
- 学区データについて
- ※学区データは必ずしも正確とは限りません。詳細に関しては最寄店舗または各自治体の教育委員会に必ずご確認ください。
無料この物件に問い合わせ
- Le’a横濱天王町参番館 301号室

-
8.3万円
(共益費
10,000円)
- 敷
- -
- 礼
- 83,000円
- 保
- 93,000円
- 償
- -
Le’a横濱天王町参番館 301号室の物件のお問い合わせ先・取り扱い店舗
ハウスコム 菊名店
- アクセス
-
東急東横線「菊名駅」徒歩1分
- 住所
- 〒222-0011 神奈川県横浜市港北区菊名4丁目1−6 クレセント菊名 1階
- 営業時間
- 10:00~18:00
- 定休日
- なし
- 営業エリア
- 横浜市港北区、横浜市神奈川区、横浜市都筑区、横浜市鶴見区、横浜市緑区
- 取引態様
- 賃貸仲介業

