グリーンレーン桜上水 101号室(1階/1R)の賃貸物件(賃貸マンション)
東京都杉並区にあるグリーンレーン桜上水 101号室はTVモニタ付インターホン、オートロック、バルコニー、ルーフバルコニー、CATVなどが特徴です。最寄り駅の京王線桜上水駅から徒歩10分です。グリーンレーン桜上水 101号室の詳細はハウスコム 高円寺店までお気軽にお問い合わせください!
情報更新日:
次回更新予定日:
※次回更新予定日について:お店側では順次空室確認を行っていますが、次回更新予定日までに空室確認が行えない場合には、この物件情報は自動的に削除されます。
グリーンレーン桜上水 101号室の賃貸物件部屋概要
家賃 |
6.3万円
初期費用を |
|---|---|
共益費 |
8,000円
入居可能時期 |
敷金/礼金 |
- / 1ヶ月 |
保証金/ |
- / - |
最寄駅 |
|
所在地 |
東京都杉並区下高井戸 |
部屋番号 |
101号室 |
間取り |
1R(洋0) |
専有面積 |
16.06㎡ |
築年数 |
1987年4月(築39年) |
階数 |
1階部分(地上3階建) |
方位・位置 |
ー / その他 |
物件種別 |
賃貸マンション |
構造 |
RC |
駐車場 |
- |
小学校学区 |
高井戸第三小学校 |
中学校学区 |
向陽中学校 |
他の空き部屋 |
ー |
- 学区データについて
- ※学区データは必ずしも正確とは限りません。詳細に関しては最寄店舗または各自治体の教育委員会に必ずご確認ください。
グリーンレーン桜上水 101号室の特徴
契約条件
ご契約時に保証人は不要です。 敷金が無料なため、初期費用が比較的安くなる傾向にあります。
セキュリティ
この物件の建物には、オートロックや防犯カメラや宅配ボックスが設置されており、来客時には居室内のテレビモニターにて訪問者の顔を確認することができます。
室内設備
IHコンロが備え付けられています。 洗濯に便利な設備として、室内洗濯機置場があります。
居室状況
お部屋の床は、フローリングとなっており、エアコンが設置されています。 収納スペースとして、基本的な居室にクローゼットを設置、玄関にはシューズボックスがあります。
建物設備共用部分
居室外の専有スペースとして、洗濯物を干すなどの用途として利用できるバルコニーがあります。 建物の共用スペースに、いざという時の防犯カメラや、急な外出や不在がちのご家庭の荷物受け取りに便利な宅配ボックスが設置されています。
周辺施設
この物件の学区は、高井戸第三小学校区・向陽中学校区です。
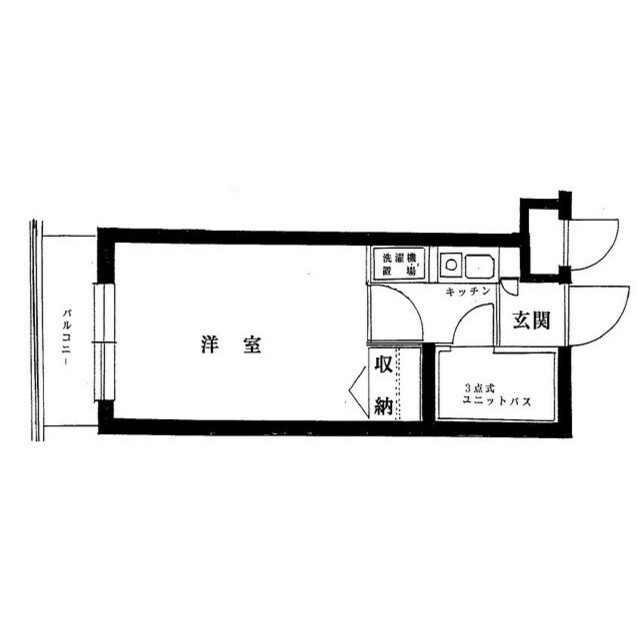
グリーンレーン桜上水 101号室の間取り
間取り:1R
間取詳細:1R(洋0)
専有面積:16.06㎡
方位:ー
部屋位置:その他
グリーンレーン桜上水 101号室の設備
キッチン
IHコンロ
玄関
TVモニタ付インターホン
オートロック
宅配ボックス
収納
クローゼット
シューズボックス
バルコニー
バルコニー
ルーフバルコニー
室内設備
エアコン
フローリング
室内洗濯機置場
位置・立地
1階
インフラ
CATV
建物設備
防犯カメラ
分譲賃貸
入居条件
オンライン相談可
オンライン内見可
保証人不要
ライフステージ
一人暮らしに人気の設備
カップルに人気の設備
家族に人気の設備
夫婦に人気の設備
三世代で人気の設備
こだわり
外で子どもと遊びたい
雨の日でも洗濯したい
洋室で暮らしたい
趣味
ガーデニングが好き
グリーンレーン桜上水 101号室の賃貸契約情報
毎月支払う |
家賃6.3万円/月共益費8,000円/月 |
|---|---|
初期費用 |
敷金-礼金1ヶ月 (6.3万円)保証金-敷引き償却金- |
更新料 |
63,000円 |
鍵交換費用 |
27,500円 |
室内清掃費用 |
- |
クリーニング費用 |
55,000円 |
駐車場料金 |
- |
損保・ |
借家賠付きの火災保険にご加入いただきます。 |
保証会社 |
加入要 保証会社利用料:初回80% 月額1% |
契約期間 |
2年 |
入居可能日 |
2026年05月 |
フリーレント期間 |
- |
取引形態 |
一般媒介 |
備考 |
火災保険要加入 |
グリーンレーン桜上水 101号室の建物情報
建物名称 |
グリーンレーン桜上水 |
|---|---|
最寄駅 |
|
所在地 |
東京都杉並区下高井戸 |
階層 |
1階部分(地上3階建) |
構造 |
RC |
築年数 |
1987年4月(築39年) |
駐車場 |
- |
小学校学区 |
高井戸第三小学校 |
中学校学区 |
向陽中学校 |
- 学区データについて
- ※学区データは必ずしも正確とは限りません。詳細に関しては最寄店舗または各自治体の教育委員会に必ずご確認ください。
無料この物件に問い合わせ
- グリーンレーン桜上水 101号室

-
6.3万円
(共益費
8,000円)
- 敷
- -
- 礼
- 1ヶ月
- 保
- -
- 償
- -
グリーンレーン桜上水 101号室の物件のお問い合わせ先・取り扱い店舗
ハウスコム 高円寺店
- アクセス
-
中央本線(JR東日本)「高円寺駅」北口徒歩1分
- 住所
- 〒166-0002 東京都杉並区高円寺北2-4-5 ロータリービル2階
- 営業時間
- 10:00~18:00
- 定休日
- 火曜日・水曜日
- 営業エリア
- 【杉並区・中野区・練馬区・新宿区・世田谷区・武蔵野市】
- 取引態様
- 賃貸仲介業
























