グランソフィア高萩 C 201号室(2階/2LDK)の賃貸物件(賃貸アパート)
埼玉県日高市にあるグランソフィア高萩 C 201号室はカウンターキッチン、IHコンロ、バス・トイレ別、シャワー付洗面化粧台、シューズボックスなどが特徴です。最寄り駅の川越線武蔵高萩駅から徒歩12分です。グランソフィア高萩 C 201号室の詳細はハウスコム 所沢店までお気軽にお問い合わせください!
情報更新日:
次回更新予定日:
※次回更新予定日について:お店側では順次空室確認を行っていますが、次回更新予定日までに空室確認が行えない場合には、この物件情報は自動的に削除されます。
グランソフィア高萩 C 201号室の賃貸物件部屋概要
家賃 |
7万円
初期費用を |
|---|---|
共益費 |
3,000円
入居可能時期 |
敷金/礼金 |
- / - |
保証金/ |
- / - |
最寄駅 |
|
所在地 |
埼玉県日高市大字高萩 |
部屋番号 |
201号室 |
間取り |
2LDK |
専有面積 |
60.45㎡ |
築年数 |
新築 |
階数 |
2階部分(地上2階建) |
方位・位置 |
南 / その他 |
物件種別 |
賃貸アパート |
構造 |
木造 |
駐車場 |
4,400円 |
小学校学区 |
高萩小学校 |
中学校学区 |
高萩中学校 |
他の空き部屋 |
101号室 102号室 202号室 |
- 学区データについて
- ※学区データは必ずしも正確とは限りません。詳細に関しては最寄店舗または各自治体の教育委員会に必ずご確認ください。
グランソフィア高萩 C 201号室の特徴
契約条件
この物件は、2人入居もご契約できます。 ペットの飼育、法人契約・事務所のご利用もご相談ください。 敷金と礼金が無料なため、初期費用が比較的安くなる傾向にあります。
セキュリティ
来客時には居室内のテレビモニターにて訪問者の顔を確認することができます。
室内設備
システムキッチンには、IHコンロが備え付けられています。 お風呂とトイレは別です。お風呂には、追い焚き機能が備わっています。 トイレは、温水洗浄便座機能付きになります。 女性に嬉しい設備のシャワーの付いている洗面化粧台があります。 洗濯に便利な設備として、室内洗濯機置場があります。浴室乾燥機も設置されているので、梅雨時の生乾き臭も比較的防ぐことができます。
居室状況
エアコンが設置されています。 照明器具が備え付けられており、入居後すぐ生活が始められます。 収納スペースとして、基本的な居室にクローゼットを設置、玄関にはシューズボックスがあります。
建物設備共用部分
駐輪場が利用できます。
周辺施設
この物件の学区は、高萩小学校区・高萩中学校区です。
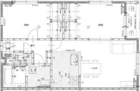
グランソフィア高萩 C 201号室の間取り
間取り:2LDK
間取詳細:2LDK
専有面積:60.45㎡
方位:南
部屋位置:その他
グランソフィア高萩 C 201号室の設備
キッチン
システムキッチン
カウンターキッチン
IHコンロ
バス・トイレ
バス・トイレ別
追い焚き
浴室乾燥機
温水洗浄便座
独立洗面台
シャワー付洗面化粧台
玄関
TVモニタ付インターホン
収納
クローゼット
シューズボックス
室内設備
エアコン
室内洗濯機置場
照明器具付
位置・立地
2階以上
最上階
南向き
インフラ
プロパンガス
建物設備
駐輪場
入居条件
ペット可・相談
2人入居可
事務所可・相談
ライフステージ
一人暮らしに人気の設備
カップルに人気の設備
家族に人気の設備
夫婦に人気の設備
三世代で人気の設備
こだわり
雨の日でも洗濯したい
寝るためだけの部屋
趣味
料理が好き
推し活グッズを飾りたい
グランソフィア高萩 C 201号室の賃貸契約情報
毎月支払う |
家賃7万円/月共益費3,000円/月 |
|---|---|
初期費用 |
敷金-礼金-保証金-敷引き償却金- |
更新料 |
70,000円 |
鍵交換費用 |
- |
室内清掃費用 |
- |
ホームマイスター24 |
16,500円 |
駐車場料金 |
4,400円 |
損保・ |
借家賠付きの火災保険にご加入いただきます。 |
保証会社 |
加入要 保証会社利用料:期間:2年 初回保証料100%、継続保証料1年毎/賃料の15% |
契約期間 |
2年 |
入居可能日 |
2026年07月上旬 |
フリーレント期間 |
- |
取引形態 |
一般媒介 |
備考 |
- |
グランソフィア高萩 C 201号室の建物情報
建物名称 |
グランソフィア高萩 C |
|---|---|
最寄駅 |
|
所在地 |
埼玉県日高市大字高萩 |
階層 |
2階部分(地上2階建) |
構造 |
木造 |
築年数 |
新築 |
駐車場 |
4,400円 |
小学校学区 |
高萩小学校 |
中学校学区 |
高萩中学校 |
- 学区データについて
- ※学区データは必ずしも正確とは限りません。詳細に関しては最寄店舗または各自治体の教育委員会に必ずご確認ください。
無料この物件に問い合わせ
- グランソフィア高萩 C 201号室

-
7万円
(共益費
3,000円)
- 敷
- -
- 礼
- -
- 保
- -
- 償
- -
グランソフィア高萩 C 201号室の物件のお問い合わせ先・取り扱い店舗
ハウスコム 所沢店
- アクセス
-
西武池袋線・豊島線「所沢駅」東口徒歩2分
- 住所
- 〒359-0037 埼玉県所沢市くすのき台1丁目10−6 毛利ビル 2階
- 営業時間
- 10:00~18:00
- 定休日
- なし
- 営業エリア
- 所沢市,入間市,狭山市,飯能市,日高市,東村山市,清瀬市,東大和市,新座市,西東京市,その他隣接近郊エリア
- 取引態様
- 賃貸仲介業












