DIPS四ツ木 401号室(1階/1K)の賃貸物件(賃貸マンション)
東京都葛飾区にあるDIPS四ツ木 401号室は室内洗濯機置場、1階、24時間ゴミ出しOK、駐輪場、2人入居可などが特徴です。最寄り駅の京成押上線四ツ木駅から徒歩7分です。DIPS四ツ木 401号室の詳細はハウスコム 北千住店までお気軽にお問い合わせください!
情報更新日:
次回更新予定日:
※次回更新予定日について:お店側では順次空室確認を行っていますが、次回更新予定日までに空室確認が行えない場合には、この物件情報は自動的に削除されます。
DIPS四ツ木 401号室の賃貸物件部屋概要
家賃 |
9.55万円
初期費用を |
|---|---|
共益費 |
12,000円
入居可能時期 |
敷金/礼金 |
- / - |
保証金/ |
1ヶ月 / 95,500円 |
最寄駅 |
|
所在地 |
東京都葛飾区四つ木 |
部屋番号 |
401号室 |
間取り |
1K(洋8.1) |
専有面積 |
25.38㎡ |
築年数 |
新築 |
階数 |
1階部分(地上7階建) |
方位・位置 |
南東 / 角部屋 |
物件種別 |
賃貸マンション |
構造 |
RC |
駐車場 |
空無し |
小学校学区 |
よつぎ小学校 |
中学校学区 |
四ツ木中学校 |
他の空き部屋 |
201号室 304号室 305号室 306号室 403号室 406号室 503号室 505号室 506号室 507号室 601号室 604号室 605号室 701号室 704号室 |
- 学区データについて
- ※学区データは必ずしも正確とは限りません。詳細に関しては最寄店舗または各自治体の教育委員会に必ずご確認ください。
DIPS四ツ木 401号室の特徴
契約条件
この物件は、2人入居もご契約できます。 ペットの飼育もご相談ください。 敷金と礼金が無料なため、初期費用が比較的安くなる傾向にあります。
セキュリティ
この物件の建物には、オートロックや宅配ボックスが設置されており、来客時には居室内のテレビモニターにて訪問者の顔を確認することができます。
室内設備
システムキッチンには、2つ以上のガスコンロが備え付けられています。 トイレは、温水洗浄便座機能付きになります。 女性に嬉しい設備の独立した洗面化粧台があります。 洗濯に便利な設備として、室内洗濯機置場があります。浴室乾燥機も設置されているので、梅雨時の生乾き臭も比較的防ぐことができます。
居室状況
お部屋の床は、フローリングとなっており、エアコンが設置されています。 収納スペースとして、基本的な居室にクローゼットがあります。
建物設備共用部分
建物の共用スペースに、日々の出入に便利なエレベーターや、急な外出や不在がちのご家庭の荷物受け取りに便利な宅配ボックスや、居室内を常に清潔に保てる24時間利用可能なゴミ捨て置き場が設置されています。 駐輪場が利用できます。
周辺施設
この物件の学区は、よつぎ小学校区・四ツ木中学校区です。
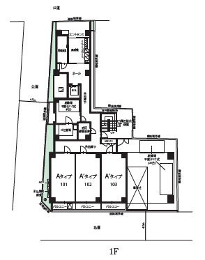
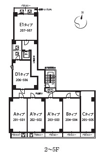
DIPS四ツ木 401号室の間取り
間取り:1K
間取詳細:1K(洋8.1)
専有面積:25.38㎡
方位:南東
部屋位置:角部屋
DIPS四ツ木 401号室の設備
キッチン
システムキッチン
ガスコンロ
ガスコンロ二口以上
バス・トイレ
バス・トイレ別
浴室乾燥機
温水洗浄便座
独立洗面台
玄関
TVモニタ付インターホン
オートロック
宅配ボックス
収納
クローゼット
室内設備
エアコン
フローリング
室内洗濯機置場
位置・立地
1階
角部屋
インフラ
インターネット可
都市ガス
建物設備
エレベーター
24時間ゴミ出しOK
駐輪場
分譲賃貸
入居条件
ペット可・相談
2人入居可
ライフステージ
一人暮らしに人気の設備
カップルに人気の設備
家族に人気の設備
夫婦に人気の設備
三世代で人気の設備
こだわり
タイパ重視
身だしなみに気をつかいたい
雨の日でも洗濯したい
洋室で暮らしたい
DIPS四ツ木 401号室の賃貸契約情報
毎月支払う |
家賃9.55万円/月共益費12,000円/月 |
|---|---|
初期費用 |
敷金-礼金-保証金1ヶ月敷引き償却金95,500円 |
更新料 |
143,250円 |
鍵交換費用 |
24,200円 |
室内清掃費用 |
- |
駐車場料金 |
空無し |
損保・ |
借家賠付きの火災保険にご加入いただきます。 |
保証会社 |
加入要 保証会社:エポスカード 保証会社利用料:初期費用:賃料合計の50% 月額手数料:賃料の1.5% 年間費用なし |
契約期間 |
2年 |
入居可能日 |
2026年05月 |
フリーレント期間 |
- |
取引形態 |
一般媒介 |
備考 |
- |
DIPS四ツ木 401号室の建物情報
建物名称 |
DIPS四ツ木 |
|---|---|
最寄駅 |
|
所在地 |
東京都葛飾区四つ木 |
階層 |
1階部分(地上7階建) |
構造 |
RC |
築年数 |
新築 |
駐車場 |
空無し |
小学校学区 |
よつぎ小学校 |
中学校学区 |
四ツ木中学校 |
- 学区データについて
- ※学区データは必ずしも正確とは限りません。詳細に関しては最寄店舗または各自治体の教育委員会に必ずご確認ください。
無料この物件に問い合わせ
- DIPS四ツ木 401号室

-
9.55万円
(共益費
12,000円)
- 敷
- -
- 礼
- -
- 保
- 1ヶ月
- 償
- 95,500円
DIPS四ツ木 401号室の物件のお問い合わせ先・取り扱い店舗
ハウスコム 北千住店
- アクセス
-
東京メトロ 日比谷線「北千住駅」東口徒歩1分
- 住所
- 〒120-0026 東京都足立区千住旭町3−11 NSビル 1階
- 営業時間
- 10:00~18:00
- 定休日
- なし
- 営業エリア
- 足立区、荒川区、台東区、墨田区、葛飾区、八潮市、草加市、三郷市
- 取引態様
- 賃貸仲介業














