パークスフィア牛込神楽坂 606号室(6階/1LDK)の賃貸物件(賃貸マンション)
東京都新宿区にあるパークスフィア牛込神楽坂 606号室はシステムキッチン、食洗機、宅配ボックス、CATV、バイク置き場などが特徴です。最寄り駅の都営大江戸線牛込柳町駅から徒歩4分です。パークスフィア牛込神楽坂 606号室の詳細はハウスコム 明大前店までお気軽にお問い合わせください!
情報更新日:
次回更新予定日:
※次回更新予定日について:お店側では順次空室確認を行っていますが、次回更新予定日までに空室確認が行えない場合には、この物件情報は自動的に削除されます。
パークスフィア牛込神楽坂 606号室の賃貸物件部屋概要
家賃 |
24.5万円
初期費用を |
|---|---|
共益費 |
15,000円
入居可能時期 |
敷金/礼金 |
1ヶ月 / 1ヶ月 |
保証金/ |
- / - |
最寄駅 |
|
所在地 |
東京都新宿区南山伏町 |
部屋番号 |
606号室 |
間取り |
1LDK |
専有面積 |
40.01㎡ |
築年数 |
2021年7月(築5年) |
階数 |
6階部分(地上13階建) |
方位・位置 |
東 / その他 |
物件種別 |
賃貸マンション |
構造 |
RC |
駐車場 |
無 |
小学校学区 |
市谷小学校 |
中学校学区 |
牛込第一中学校 |
他の空き部屋 |
1001号室 ***号室 1103号室 1307号室 1308号室 1310号室 206号室 403号室 507号室 808号室 903号室 |
- 学区データについて
- ※学区データは必ずしも正確とは限りません。詳細に関しては最寄店舗または各自治体の教育委員会に必ずご確認ください。
パークスフィア牛込神楽坂 606号室の特徴
-
一人暮らしに人気の設備

-
カップルに人気の設備

-
家族に人気の設備

-
夫婦に人気の設備

-
三世代で人気の設備

-
外で子どもと遊びたい

-
雨の日でも洗濯したい

-
洋室で暮らしたい

-
服やおしゃれが好き

-
ガーデニングが好き

契約条件
ペットの飼育もご相談ください。
セキュリティ
この物件の建物には、オートロックや宅配ボックスが設置されております。
室内設備
システムキッチンには、キッチン設備として食洗機が備え付けられています。 お風呂とトイレは別です。お風呂には、追い焚き機能が備わっています。 女性に嬉しい設備の独立した洗面化粧台があります。 洗濯に便利な設備として、室内洗濯機置場があります。浴室乾燥機も設置されているので、梅雨時の生乾き臭も比較的防ぐことができます。
居室状況
お部屋の床は、フローリングとなっており、エアコンと一部床下暖房が設置されています。 収納スペースとして、基本的な居室にクローゼットを設置、通常よりも収納力の高いウォークインクローゼットがあります。
建物設備共用部分
居室外の専有スペースとして、洗濯物を干すなどの用途として利用できるバルコニーがあります。 建物の共用スペースに、日々の出入に便利なエレベーターや、急な外出や不在がちのご家庭の荷物受け取りに便利な宅配ボックスが設置されています。 バイク置き場が利用できます。
周辺施設
この物件の学区は、市谷小学校区・牛込第一中学校区です。
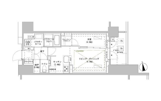
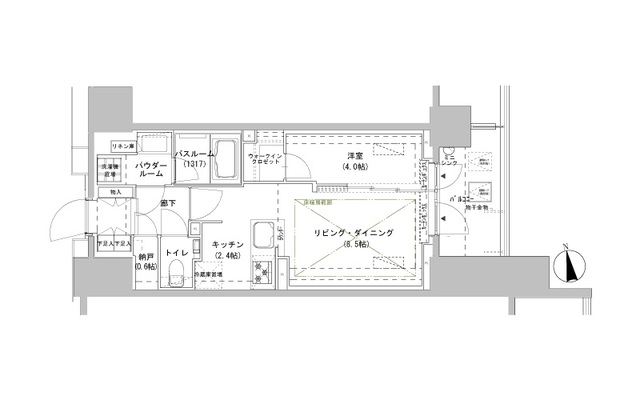
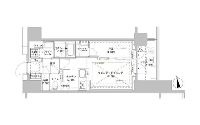
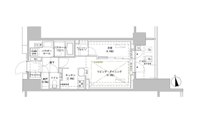
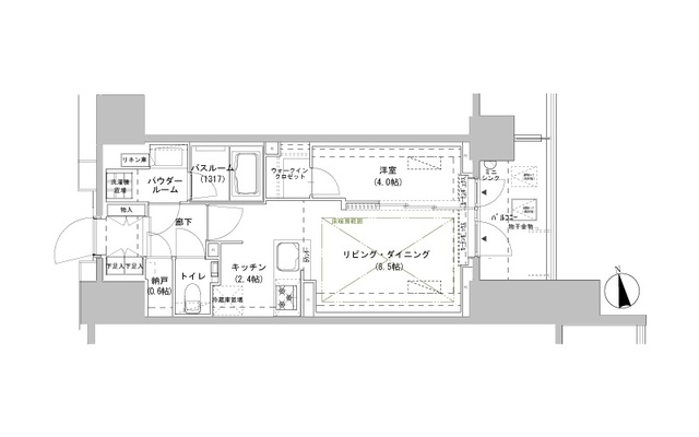
パークスフィア牛込神楽坂 606号室の間取り
間取り:1LDK
間取詳細:1LDK
専有面積:40.01㎡
方位:東
部屋位置:その他
パークスフィア牛込神楽坂 606号室の設備
キッチン
システムキッチン
食洗機
バス・トイレ
バス・トイレ別
追い焚き
浴室乾燥機
独立洗面台
玄関
オートロック
宅配ボックス
収納
クローゼット
ウォークインクローゼット
バルコニー
バルコニー
ルーフバルコニー
室内設備
エアコン
フローリング
床下暖房
室内洗濯機置場
位置・立地
2階以上
インフラ
CATV
BS
CS
建物設備
エレベーター
バイク置き場
入居条件
ペット可・相談
即入居可
ライフステージ
一人暮らしに人気の設備
カップルに人気の設備
家族に人気の設備
夫婦に人気の設備
三世代で人気の設備
こだわり
外で子どもと遊びたい
雨の日でも洗濯したい
洋室で暮らしたい
趣味
服やおしゃれが好き
ガーデニングが好き
パークスフィア牛込神楽坂 606号室の賃貸契約情報
毎月支払う |
家賃24.5万円/月共益費15,000円/月 |
|---|---|
初期費用 |
敷金1ヶ月 (24.5万円)礼金1ヶ月 (24.5万円)保証金-敷引き償却金- |
更新料 |
245,000円 |
鍵交換費用 |
- |
室内清掃費用 |
- |
室内清掃費 |
61,615円 |
鍵交換費 |
16,500円 |
駐車場料金 |
無 |
損保・ |
借家賠付きの火災保険にご加入いただきます。 |
保証会社 |
加入要 保証会社:オリコフォレントインシュア 保証会社利用料:初回保証委託料(最低20,000円):月額賃料等の50%、2年目以降:10,000円/年 |
契約期間 |
2年 |
入居可能日 |
即入居可 |
フリーレント期間 |
- |
取引形態 |
一般媒介 |
備考 |
- |
パークスフィア牛込神楽坂 606号室の建物情報
建物名称 |
パークスフィア牛込神楽坂 |
|---|---|
最寄駅 |
|
所在地 |
東京都新宿区南山伏町 |
階層 |
6階部分(地上13階建) |
構造 |
RC |
築年数 |
2021年7月(築5年) |
駐車場 |
無 |
小学校学区 |
市谷小学校 |
中学校学区 |
牛込第一中学校 |
- 学区データについて
- ※学区データは必ずしも正確とは限りません。詳細に関しては最寄店舗または各自治体の教育委員会に必ずご確認ください。
無料この物件に問い合わせ
- パークスフィア牛込神楽坂 606号室

-
24.5万円
(共益費
15,000円)
- 敷
- 1ヶ月
- 礼
- 1ヶ月
- 保
- -
- 償
- -
パークスフィア牛込神楽坂 606号室の物件のお問い合わせ先・取り扱い店舗
ハウスコム 明大前店
- アクセス
-
京王線「明大前駅」中央口徒歩1分
京王井の頭線「明大前駅」中央口徒歩1分
- 住所
- 〒156-0043 東京都世田谷区松原2丁目44−1 グランシーン明大前 1階
- 営業時間
- 10:00~18:00
- 定休日
- なし
- 営業エリア
- 世田谷区・杉並区・渋谷区・中野区・新宿区・三鷹市・調布市
- 取引態様
- 賃貸仲介業















