ケイオービル 501号室(5階/1LDK)の賃貸物件(賃貸マンション)
東京都渋谷区にあるケイオービル 501号室はシステムキッチン、バルコニー、ルーフバルコニー、和室あり、2階以上などが特徴です。最寄り駅の京王線笹塚駅から徒歩5分です。ケイオービル 501号室の詳細はハウスコム 明大前店までお気軽にお問い合わせください!
情報更新日:
次回更新予定日:
※次回更新予定日について:お店側では順次空室確認を行っていますが、次回更新予定日までに空室確認が行えない場合には、この物件情報は自動的に削除されます。
ケイオービル 501号室の賃貸物件部屋概要
家賃 |
12万円
初期費用を |
|---|---|
共益費 |
-
入居可能時期 |
敷金/礼金 |
1ヶ月 / - |
保証金/ |
- / - |
最寄駅 |
|
所在地 |
東京都渋谷区笹塚 |
部屋番号 |
501号室 |
間取り |
1LDK(LDK12.2・和6) |
専有面積 |
45.00㎡ |
築年数 |
1965年6月(築61年) |
階数 |
5階部分(地上6階建) |
方位・位置 |
ー / その他 |
物件種別 |
賃貸マンション |
構造 |
RC |
駐車場 |
- |
小学校学区 |
ー |
中学校学区 |
ー |
他の空き部屋 |
ー |
- 学区データについて
- ※学区データは必ずしも正確とは限りません。詳細に関しては最寄店舗または各自治体の教育委員会に必ずご確認ください。
ケイオービル 501号室の特徴
契約条件
この物件は、2人入居もご契約できます。 礼金が無料なため、初期費用が比較的安くなる傾向にあります。
セキュリティ
来客時には居室内のテレビモニターにて訪問者の顔を確認することができます。
室内設備
システムキッチンには、2つ以上のガスコンロが備え付けられています。 女性に嬉しい設備の独立した洗面化粧台があります。
居室状況
居室には、和室の居室もあり、子育てやリラックススペースとしての利用もできます。 お部屋の床は、フローリングとなっており、エアコンが設置されています。 収納スペースとして、基本的な居室にクローゼットを設置、玄関にはシューズボックスがあります。
建物設備共用部分
居室外の専有スペースとして、洗濯物を干すなどの用途として利用できるバルコニーがあります。 建物の共用スペースに、日々の出入に便利なエレベーターが設置されています。
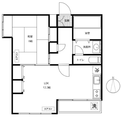
ケイオービル 501号室の間取り
間取り:1LDK
間取詳細:1LDK(LDK12.2・和6)
専有面積:45.00㎡
方位:ー
部屋位置:その他
ケイオービル 501号室の設備
キッチン
システムキッチン
ガスコンロ
ガスコンロ二口以上
バス・トイレ
バス・トイレ別
独立洗面台
玄関
TVモニタ付インターホン
収納
クローゼット
シューズボックス
バルコニー
バルコニー
ルーフバルコニー
室内設備
エアコン
フローリング
和室あり
位置・立地
2階以上
建物設備
エレベーター
入居条件
2人入居可
オンライン相談可
オンライン内見可
即入居可
ライフステージ
一人暮らしに人気の設備
カップルに人気の設備
家族に人気の設備
夫婦に人気の設備
三世代で人気の設備
こだわり
外で子どもと遊びたい
洋室で暮らしたい
趣味
ガーデニングが好き
ケイオービル 501号室の賃貸契約情報
毎月支払う |
家賃12万円/月共益費- |
|---|---|
初期費用 |
敷金1ヶ月 (12万円)礼金-保証金-敷引き償却金- |
更新料 |
- |
鍵交換費用 |
- |
室内清掃費用 |
- |
駐車場料金 |
- |
損保・ |
借家賠付きの火災保険にご加入いただきます。 |
保証会社 |
加入要 保証会社利用料:初回保証料50%~ |
契約期間 |
定期借家 2027年 10月まで |
入居可能日 |
即入居可 |
フリーレント期間 |
- |
取引形態 |
一般媒介 |
備考 |
- |
ケイオービル 501号室の建物情報
建物名称 |
ケイオービル |
|---|---|
最寄駅 |
|
所在地 |
東京都渋谷区笹塚 |
階層 |
5階部分(地上6階建) |
構造 |
RC |
築年数 |
1965年6月(築61年) |
駐車場 |
- |
小学校学区 |
ー |
中学校学区 |
ー |
- 学区データについて
- ※学区データは必ずしも正確とは限りません。詳細に関しては最寄店舗または各自治体の教育委員会に必ずご確認ください。
無料この物件に問い合わせ
- ケイオービル 501号室

-
12万円
(共益費
-)
- 敷
- 1ヶ月
- 礼
- -
- 保
- -
- 償
- -
ケイオービル 501号室の物件のお問い合わせ先・取り扱い店舗
ハウスコム 明大前店
- アクセス
-
京王線「明大前駅」中央口徒歩1分
京王井の頭線「明大前駅」中央口徒歩1分
- 住所
- 〒156-0043 東京都世田谷区松原2丁目44−1 グランシーン明大前 1階
- 営業時間
- 10:00~18:00
- 定休日
- なし
- 営業エリア
- 世田谷区・杉並区・渋谷区・中野区・新宿区・三鷹市・調布市
- 取引態様
- 賃貸仲介業


















