メイクスアート名古屋城西 ***号室(2階/1LDK)の賃貸物件(賃貸マンション)
愛知県名古屋市西区にあるメイクスアート名古屋城西 ***号室はガスコンロ、角部屋、都市ガス、楽器可・相談、オンライン内見可などが特徴です。最寄り駅の名古屋市営地下鉄 鶴舞線浄心駅から徒歩8分です。メイクスアート名古屋城西 ***号室の詳細はハウスコム 浄心店までお気軽にお問い合わせください!
情報更新日:
次回更新予定日:
※次回更新予定日について:お店側では順次空室確認を行っていますが、次回更新予定日までに空室確認が行えない場合には、この物件情報は自動的に削除されます。
メイクスアート名古屋城西 ***号室の賃貸物件部屋概要
家賃 |
7.62万円
初期費用を |
|---|---|
共益費 |
8,000円
入居可能時期 |
敷金/礼金 |
- / - |
保証金/ |
- / - |
最寄駅 |
|
所在地 |
愛知県名古屋市西区城西 |
部屋番号 |
***号室 |
間取り |
1LDK(K1.6・LD6.4・洋3.3) |
専有面積 |
29.04㎡ |
築年数 |
新築 |
階数 |
2階部分(地上10階建) |
方位・位置 |
北 / 角部屋 |
物件種別 |
賃貸マンション |
構造 |
RC |
駐車場 |
- |
小学校学区 |
城西小学校 |
中学校学区 |
浄心中学校 |
他の空き部屋 |
***号室 ***号室 ***号室 ***号室 ***号室 ***号室 ***号室 ***号室 ***号室 ***号室 ***号室 ***号室 ***号室 ***号室 ***号室 ***号室 ***号室 ***号室 ***号室 ***号室 ***号室 ***号室 ***号室 ***号室 ***号室 ***号室 ***号室 ***号室 ***号室 ***号室 ***号室 ***号室 ***号室 |
- 学区データについて
- ※学区データは必ずしも正確とは限りません。詳細に関しては最寄店舗または各自治体の教育委員会に必ずご確認ください。
メイクスアート名古屋城西 ***号室の特徴
-
一人暮らしに人気の設備

-
カップルに人気の設備

-
家族に人気の設備

-
夫婦に人気の設備

-
三世代で人気の設備

-
セキュリティ対策重視

-
外で子どもと遊びたい

-
雨の日でも洗濯したい

-
洋室で暮らしたい

-
服やおしゃれが好き

-
ガーデニングが好き

契約条件
ペットの飼育や楽器演奏もご相談ください。 敷金と礼金が無料なため、初期費用が比較的安くなる傾向にあります。
セキュリティ
この物件の建物には、オートロックや防犯カメラや宅配ボックスが設置されており、来客時には居室内のテレビモニターにて訪問者の顔を確認することができます。
室内設備
システムキッチンには、2つ以上のガスコンロが備え付けられています。 トイレは、温水洗浄便座機能付きになります。 女性に嬉しい設備のシャワーの付いている洗面化粧台があります。 洗濯に便利な設備として、室内洗濯機置場があります。浴室乾燥機も設置されているので、梅雨時の生乾き臭も比較的防ぐことができます。
居室状況
お部屋の床は、フローリングとなっており、エアコンが設置されています。 収納スペースとして、通常よりも収納力の高いウォークインクローゼット、玄関にはシューズボックスがあります。
建物設備共用部分
居室外の専有スペースとして、洗濯物を干すなどの用途として利用できるバルコニーがあります。 建物の共用スペースに、日々の出入に便利なエレベーターや、いざという時の防犯カメラや、急な外出や不在がちのご家庭の荷物受け取りに便利な宅配ボックスが設置されています。
周辺施設
この物件の学区は、城西小学校区・浄心中学校区です。
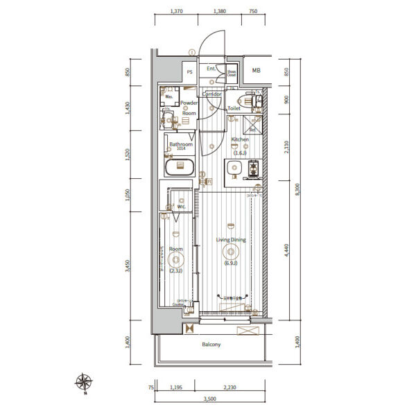
メイクスアート名古屋城西 ***号室の間取り
間取り:1LDK
間取詳細:1LDK(K1.6・LD6.4・洋3.3)
専有面積:29.04㎡
方位:北
部屋位置:角部屋
メイクスアート名古屋城西 ***号室の設備
キッチン
システムキッチン
ガスコンロ
ガスコンロ二口以上
バス・トイレ
バス・トイレ別
浴室乾燥機
温水洗浄便座
独立洗面台
シャワー付洗面化粧台
玄関
TVモニタ付インターホン
オートロック
宅配ボックス
収納
ウォークインクローゼット
シューズボックス
バルコニー
バルコニー
ルーフバルコニー
室内設備
エアコン
フローリング
室内洗濯機置場
位置・立地
2階以上
角部屋
インフラ
インターネット可
BS
CS
都市ガス
建物設備
エレベーター
防犯カメラ
入居条件
ペット可・相談
楽器可・相談
オンライン相談可
オンライン内見可
ライフステージ
一人暮らしに人気の設備
カップルに人気の設備
家族に人気の設備
夫婦に人気の設備
三世代で人気の設備
こだわり
セキュリティ対策重視
外で子どもと遊びたい
雨の日でも洗濯したい
洋室で暮らしたい
趣味
服やおしゃれが好き
ガーデニングが好き
メイクスアート名古屋城西 ***号室の賃貸契約情報
毎月支払う |
家賃7.62万円/月共益費8,000円/月 |
|---|---|
初期費用 |
敷金-礼金-保証金-敷引き償却金- |
更新料 |
- |
鍵交換費用 |
- |
室内清掃費用 |
- |
駐車場料金 |
- |
損保・ |
借家賠付きの火災保険にご加入いただきます。 |
保証会社 |
加入要 保証会社利用料:初回保証料:50%月次:440円 更新:15,000円 |
契約期間 |
2年 |
入居可能日 |
相談 |
フリーレント期間 |
- |
取引形態 |
一般媒介 |
備考 |
1年未満の解約:総賃料の2ヶ月 2年未満の解約:総賃料の1ヶ月 室内清掃費用 退去時 38500円(税込) エアコンクリーニング(1台につき) 退去時 16500円(税込) |
メイクスアート名古屋城西 ***号室の建物情報
建物名称 |
メイクスアート名古屋城西 |
|---|---|
最寄駅 |
|
所在地 |
愛知県名古屋市西区城西 |
階層 |
2階部分(地上10階建) |
構造 |
RC |
築年数 |
新築 |
駐車場 |
- |
小学校学区 |
城西小学校 |
中学校学区 |
浄心中学校 |
- 学区データについて
- ※学区データは必ずしも正確とは限りません。詳細に関しては最寄店舗または各自治体の教育委員会に必ずご確認ください。
無料この物件に問い合わせ
- メイクスアート名古屋城西 ***号室

-
7.62万円
(共益費
8,000円)
- 敷
- -
- 礼
- -
- 保
- -
- 償
- -
メイクスアート名古屋城西 ***号室の物件のお問い合わせ先・取り扱い店舗
ハウスコム 浄心店
- アクセス
-
名古屋市営地下鉄 鶴舞線「浄心駅」5番出口徒歩1分
- 住所
- 〒451-0062 愛知県名古屋市西区花の木3丁目15−11 Astrale浄心 1階
- 営業時間
- 10:00~18:00
- 定休日
- なし
- 営業エリア
- 名古屋市西区,名古屋市北区,名古屋市東区,名古屋市中村区,名古屋市中区,清須市,名古屋市守山区,北名古屋市,春日井市,豊山町.稲沢市
- 取引態様
- 賃貸仲介業





























