レオパレス葵第2 105号室(1階/1K)の賃貸物件(賃貸マンション)
東京都国分寺市にあるレオパレス葵第2 105号室は電気コンロ、バス・トイレ別、バルコニー、エアコン、1階などが特徴です。最寄り駅の西武国分寺線恋ヶ窪駅から徒歩11分です。レオパレス葵第2 105号室の詳細はハウスコム 国立店までお気軽にお問い合わせください!
情報更新日:
次回更新予定日:
※次回更新予定日について:お店側では順次空室確認を行っていますが、次回更新予定日までに空室確認が行えない場合には、この物件情報は自動的に削除されます。
レオパレス葵第2 105号室の賃貸物件部屋概要
家賃 |
6万円
初期費用を |
|---|---|
共益費 |
5,000円
入居可能時期 |
敷金/礼金 |
- / 60,000円 |
保証金/ |
- / - |
最寄駅 |
|
所在地 |
東京都国分寺市東戸倉 |
部屋番号 |
105号室 |
間取り |
1K |
専有面積 |
20.28㎡ |
築年数 |
2000年6月(築26年) |
階数 |
1階部分(地上3階建) |
方位・位置 |
ー / その他 |
物件種別 |
賃貸マンション |
構造 |
鉄骨造 |
駐車場 |
15,950円 |
小学校学区 |
第六小学校 |
中学校学区 |
第一中学校 |
他の空き部屋 |
ー |
- 学区データについて
- ※学区データは必ずしも正確とは限りません。詳細に関しては最寄店舗または各自治体の教育委員会に必ずご確認ください。
レオパレス葵第2 105号室の特徴
契約条件
敷金が無料なため、初期費用が比較的安くなる傾向にあります。
室内設備
電気コンロが備え付けられています。 洗濯に便利な設備として、室内洗濯機置場があります。
居室状況
エアコンが設置されています。
建物設備共用部分
居室外の専有スペースとして、洗濯物を干すなどの用途として利用できるバルコニーがあります。
周辺施設
この物件の学区は、第六小学校区・第一中学校区です。
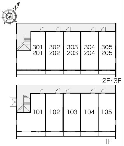
レオパレス葵第2 105号室の間取り
間取り:1K
間取詳細:1K
専有面積:20.28㎡
方位:ー
部屋位置:その他
レオパレス葵第2 105号室の設備
キッチン
電気コンロ
バス・トイレ
バス・トイレ別
バルコニー
バルコニー
ルーフバルコニー
室内設備
エアコン
室内洗濯機置場
位置・立地
1階
ライフステージ
一人暮らしに人気の設備
カップルに人気の設備
家族に人気の設備
夫婦に人気の設備
三世代で人気の設備
こだわり
外で子どもと遊びたい
雨の日でも洗濯したい
寝るためだけの部屋
趣味
ガーデニングが好き
レオパレス葵第2 105号室の賃貸契約情報
毎月支払う |
家賃6万円/月共益費5,000円/月 |
|---|---|
初期費用 |
敷金-礼金60,000円保証金-敷引き償却金- |
更新料 |
- |
鍵交換費用 |
16,500円 |
室内清掃費用 |
41,800円 |
抗菌施工(任意) |
23,760円 |
駐車場料金 |
15,950円 |
損保・ |
借家賠付きの火災保険にご加入いただきます。 |
保証会社 |
加入要 保証会社利用料:保証料:78590円(契約内容により100~120%で変動有)※記載金額は120%の場合 |
契約期間 |
- |
入居可能日 |
2026年05月下旬 |
フリーレント期間 |
- |
取引形態 |
一般媒介 |
備考 |
- |
レオパレス葵第2 105号室の建物情報
建物名称 |
レオパレス葵第2 |
|---|---|
最寄駅 |
|
所在地 |
東京都国分寺市東戸倉 |
階層 |
1階部分(地上3階建) |
構造 |
鉄骨造 |
築年数 |
2000年6月(築26年) |
駐車場 |
15,950円 |
小学校学区 |
第六小学校 |
中学校学区 |
第一中学校 |
- 学区データについて
- ※学区データは必ずしも正確とは限りません。詳細に関しては最寄店舗または各自治体の教育委員会に必ずご確認ください。
無料この物件に問い合わせ
- レオパレス葵第2 105号室

-
6万円
(共益費
5,000円)
- 敷
- -
- 礼
- 60,000円
- 保
- -
- 償
- -
レオパレス葵第2 105号室の物件のお問い合わせ先・取り扱い店舗
ハウスコム 国立店
水曜日営業
土日営業
年中無休(年末年始などを除く)
- アクセス
-
中央本線(JR東日本)「国立駅」南口徒歩2分
- 住所
- 〒186-0002 東京都国立市東1丁目15−13 ナイスアーバン国立 大学通り1F
- 営業時間
- 10:00~18:00
- 定休日
- なし
- 営業エリア
- 国立市・立川市・国分寺市・府中市・小平市・小金井市・日野市
- 取引態様
- 賃貸仲介業
お問い合わせNo. HC5-2649744-105-0074

















