下落合の完工年月(2026年4月)築の賃貸マンション ***号室(3階/2LDK)の賃貸物件(賃貸マンション)
東京都新宿区にある下落合の完工年月(2026年4月)築の賃貸マンション ***号室はシステムキッチン、バス・トイレ別、温水洗浄便座、TVモニタ付インターホン、CATVなどが特徴です。最寄り駅の東京メトロ 東西線高田馬場駅から徒歩7分です。下落合の完工年月(2026年4月)築の賃貸マンション ***号室の詳細はハウスコム 池袋西口店までお気軽にお問い合わせください!
情報更新日:
次回更新予定日:
※次回更新予定日について:お店側では順次空室確認を行っていますが、次回更新予定日までに空室確認が行えない場合には、この物件情報は自動的に削除されます。
下落合の完工年月(2026年4月)築の賃貸マンション ***号室の賃貸物件部屋概要
家賃 |
20.6万円
初期費用を |
|---|---|
共益費 |
15,000円
入居可能時期 |
敷金/礼金 |
1ヶ月 / 1ヶ月 |
保証金/ |
- / - |
最寄駅 |
|
所在地 |
東京都新宿区下落合 |
部屋番号 |
***号室 |
間取り |
2LDK |
専有面積 |
46.38㎡ |
築年数 |
2026年4月 |
階数 |
3階部分(地上7階建) |
方位・位置 |
南 / その他 |
物件種別 |
賃貸マンション |
構造 |
RC |
駐車場 |
- |
小学校学区 |
ー |
中学校学区 |
ー |
他の空き部屋 |
***号室 ***号室 ***号室 ***号室 ***号室 ***号室 ***号室 ***号室 ***号室 ***号室 ***号室 ***号室 ***号室 |
- 学区データについて
- ※学区データは必ずしも正確とは限りません。詳細に関しては最寄店舗または各自治体の教育委員会に必ずご確認ください。
下落合の完工年月(2026年4月)築の賃貸マンション ***号室の特徴
-
一人暮らしに人気の設備

-
カップルに人気の設備

-
家族に人気の設備

-
夫婦に人気の設備

-
三世代で人気の設備

-
セキュリティ対策重視

-
雨の日でも洗濯したい

-
洋室で暮らしたい

-
推し活グッズを飾りたい

-
オークション・通販が好き

セキュリティ
この物件の建物には、オートロックや防犯カメラや宅配ボックスが設置されており、来客時には居室内のテレビモニターにて訪問者の顔を確認することができます。
室内設備
システムキッチンが備え付けられています。 お風呂とトイレは別です。お風呂には、追い焚き機能が備わっています。 トイレは、温水洗浄便座機能付きになります。 女性に嬉しい設備の独立した洗面化粧台があります。 洗濯に便利な設備として、浴室乾燥機も設置されているので、梅雨時の生乾き臭も比較的防ぐことができます。
居室状況
お部屋の床は、フローリングとなっており、エアコンが設置されています。 インターネットも無料で入居後すぐ生活が始められます。 収納スペースとして、基本的な居室にクローゼットを設置、玄関にはシューズボックスがあります。
建物設備共用部分
建物の共用スペースに、日々の出入に便利なエレベーターや、いざという時の防犯カメラや、急な外出や不在がちのご家庭の荷物受け取りに便利な宅配ボックスが設置されています。
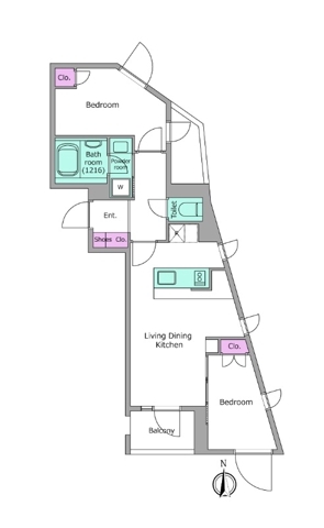
下落合の完工年月(2026年4月)築の賃貸マンション ***号室の間取り
間取り:2LDK
間取詳細:2LDK
専有面積:46.38㎡
方位:南
部屋位置:その他
下落合の完工年月(2026年4月)築の賃貸マンション ***号室の設備
キッチン
システムキッチン
カウンターキッチン
バス・トイレ
バス・トイレ別
追い焚き
浴室乾燥機
温水洗浄便座
独立洗面台
玄関
TVモニタ付インターホン
オートロック
宅配ボックス
収納
クローゼット
シューズボックス
室内設備
エアコン
フローリング
デザイナーズ
位置・立地
2階以上
南向き
インフラ
CATV
BS
CS
建物設備
エレベーター
防犯カメラ
ライフステージ
一人暮らしに人気の設備
カップルに人気の設備
家族に人気の設備
夫婦に人気の設備
三世代で人気の設備
こだわり
セキュリティ対策重視
雨の日でも洗濯したい
洋室で暮らしたい
趣味
推し活グッズを飾りたい
オークション・通販が好き
お得な条件
インターネット無料
下落合の完工年月(2026年4月)築の賃貸マンション ***号室の賃貸契約情報
毎月支払う |
家賃20.6万円/月共益費15,000円/月 |
|---|---|
初期費用 |
敷金1ヶ月 (20.6万円)礼金1ヶ月 (20.6万円)保証金-敷引き償却金- |
更新料 |
- |
鍵交換費用 |
- |
室内清掃費用 |
- |
入居者限定会員サービス/2年 |
11,000円 |
駐車場料金 |
- |
損保・ |
借家賠付きの火災保険にご加入いただきます。 |
保証会社 |
加入要 保証会社利用料:【IRS①】IUCレジデンシャルサポート |
契約期間 |
定期借家 2年 |
入居可能日 |
2026年05月上旬 |
フリーレント期間 |
- |
取引形態 |
一般媒介 |
備考 |
- |
下落合の完工年月(2026年4月)築の賃貸マンション ***号室の建物情報
建物名称 |
下落合の完工年月(2026年4月)築の賃貸マンション |
|---|---|
最寄駅 |
|
所在地 |
東京都新宿区下落合 |
階層 |
3階部分(地上7階建) |
構造 |
RC |
築年数 |
2026年4月 |
駐車場 |
- |
小学校学区 |
ー |
中学校学区 |
ー |
- 学区データについて
- ※学区データは必ずしも正確とは限りません。詳細に関しては最寄店舗または各自治体の教育委員会に必ずご確認ください。
無料この物件に問い合わせ
- 下落合の完工年月(2026年4月)築の賃貸マンション ***号室

-
20.6万円
(共益費
15,000円)
- 敷
- 1ヶ月
- 礼
- 1ヶ月
- 保
- -
- 償
- -
下落合の完工年月(2026年4月)築の賃貸マンション ***号室の物件のお問い合わせ先・取り扱い店舗
ハウスコム 池袋西口店
- アクセス
-
山手線「池袋駅」西口徒歩1分
東京メトロ 丸ノ内線「池袋駅」D11出口徒歩1分
- 住所
- 〒171-0021 東京都豊島区西池袋1丁目19−6 松長ビル 2階
- 営業時間
- 10:00~18:00
- 定休日
- なし
- 営業エリア
- 豊島区 板橋区 新宿区 練馬区 文京区
- 取引態様
- 賃貸仲介業



