アーバネックス秋葉原EAST 901号室(9階/1LDK)の賃貸物件(賃貸マンション)
東京都台東区にあるアーバネックス秋葉原EAST 901号室はシステムキッチン、オートロック、ルーフバルコニー、エアコン、2階以上などが特徴です。最寄り駅の東京メトロ 日比谷線秋葉原駅から徒歩8分です。アーバネックス秋葉原EAST 901号室の詳細はハウスコム 押上店までお気軽にお問い合わせください!
情報更新日:
次回更新予定日:
※次回更新予定日について:お店側では順次空室確認を行っていますが、次回更新予定日までに空室確認が行えない場合には、この物件情報は自動的に削除されます。
アーバネックス秋葉原EAST 901号室の賃貸物件部屋概要
家賃 |
18.1万円
初期費用を |
|---|---|
共益費 |
12,000円
入居可能時期 |
敷金/礼金 |
1ヶ月 / - |
保証金/ |
- / - |
最寄駅 |
|
所在地 |
東京都台東区浅草橋 |
部屋番号 |
901号室 |
間取り |
1LDK |
専有面積 |
39.55㎡ |
築年数 |
2014年7月(築12年) |
階数 |
9階部分(地上12階建) |
方位・位置 |
南 / その他 |
物件種別 |
賃貸マンション |
構造 |
RC |
駐車場 |
無 |
小学校学区 |
台東育英小学校 |
中学校学区 |
浅草中学校 |
他の空き部屋 |
ー |
- 学区データについて
- ※学区データは必ずしも正確とは限りません。詳細に関しては最寄店舗または各自治体の教育委員会に必ずご確認ください。
アーバネックス秋葉原EAST 901号室の特徴
契約条件
礼金が無料なため、初期費用が比較的安くなる傾向にあります。
セキュリティ
この物件の建物には、オートロックや宅配ボックスが設置されております。
室内設備
システムキッチンが備え付けられています。 お風呂とトイレは別です。お風呂には、追い焚き機能が備わっています。 洗濯に便利な設備として、浴室乾燥機も設置されているので、梅雨時の生乾き臭も比較的防ぐことができます。
居室状況
エアコンが設置されています。
建物設備共用部分
居室外の専有スペースとして、洗濯物を干すなどの用途として利用できるバルコニーがあります。 建物の共用スペースに、日々の出入に便利なエレベーターや、急な外出や不在がちのご家庭の荷物受け取りに便利な宅配ボックスが設置されています。 バイク置き場が利用できます。
周辺施設
この物件の学区は、台東育英小学校区・浅草中学校区です。
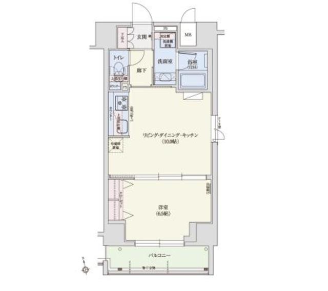
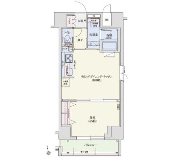
アーバネックス秋葉原EAST 901号室の間取り
間取り:1LDK
間取詳細:1LDK
専有面積:39.55㎡
方位:南
部屋位置:その他
アーバネックス秋葉原EAST 901号室の設備
キッチン
システムキッチン
バス・トイレ
バス・トイレ別
追い焚き
浴室乾燥機
玄関
オートロック
宅配ボックス
バルコニー
バルコニー
ルーフバルコニー
室内設備
エアコン
位置・立地
2階以上
南向き
インフラ
インターネット可
CATV
BS
CS
建物設備
エレベーター
バイク置き場
ライフステージ
一人暮らしに人気の設備
カップルに人気の設備
家族に人気の設備
夫婦に人気の設備
三世代で人気の設備
こだわり
外で子どもと遊びたい
雨の日でも洗濯したい
趣味
ガーデニングが好き
アーバネックス秋葉原EAST 901号室の賃貸契約情報
毎月支払う |
家賃18.1万円/月共益費12,000円/月 |
|---|---|
初期費用 |
敷金1ヶ月 (18.1万円)礼金-保証金-敷引き償却金- |
更新料 |
181,000円 |
鍵交換費用 |
- |
室内清掃費用 |
- |
室内清掃費 |
48,400円 |
鍵交換費 |
44,000円 |
駐車場料金 |
無 |
損保・ |
借家賠付きの火災保険にご加入いただきます。 |
保証会社 |
加入要 保証会社利用料:保証会社名:クレディセゾン・レジデントアシスタンス株式会社/初回保証委託料(最低15000円):月額賃料等の50%、 2年目以降:10000円/年 |
契約期間 |
2年 |
入居可能日 |
2026年06月下旬 |
フリーレント期間 |
- |
取引形態 |
一般媒介 |
備考 |
- |
アーバネックス秋葉原EAST 901号室の建物情報
建物名称 |
アーバネックス秋葉原EAST |
|---|---|
最寄駅 |
|
所在地 |
東京都台東区浅草橋 |
階層 |
9階部分(地上12階建) |
構造 |
RC |
築年数 |
2014年7月(築12年) |
駐車場 |
無 |
小学校学区 |
台東育英小学校 |
中学校学区 |
浅草中学校 |
- 学区データについて
- ※学区データは必ずしも正確とは限りません。詳細に関しては最寄店舗または各自治体の教育委員会に必ずご確認ください。
無料この物件に問い合わせ
- アーバネックス秋葉原EAST 901号室

-
18.1万円
(共益費
12,000円)
- 敷
- 1ヶ月
- 礼
- -
- 保
- -
- 償
- -
アーバネックス秋葉原EAST 901号室の物件のお問い合わせ先・取り扱い店舗
ハウスコム 押上店
- アクセス
-
東京メトロ 半蔵門線「押上駅」B1出口徒歩1分
- 住所
- 〒130-0002 東京都墨田区業平4丁目16−2 三橋ビル 1F
- 営業時間
- 10:00~18:00
- 定休日
- 水曜日
- 営業エリア
- 墨田区・江東区・中央区・台東区・江戸川区・葛飾区・足立区・荒川区
- 取引態様
- 賃貸仲介業



































