KEIAI RESIDENCE 五香 104号室(1階/1K)の賃貸物件(賃貸アパート)
千葉県松戸市にあるKEIAI RESIDENCE 五香 104号室はシステムキッチン、浴室乾燥機、オートロック、バルコニー、プロパンガスなどが特徴です。最寄り駅の京成松戸線五香駅から徒歩7分です。KEIAI RESIDENCE 五香 104号室の詳細はハウスコム 松戸店までお気軽にお問い合わせください!
情報更新日:
次回更新予定日:
※次回更新予定日について:お店側では順次空室確認を行っていますが、次回更新予定日までに空室確認が行えない場合には、この物件情報は自動的に削除されます。
KEIAI RESIDENCE 五香 104号室の賃貸物件部屋概要
家賃 |
5.9万円
初期費用を |
|---|---|
共益費 |
3,500円
入居可能時期 |
敷金/礼金 |
- / - |
保証金/ |
- / - |
最寄駅 |
|
所在地 |
千葉県松戸市金ケ作 |
部屋番号 |
104号室 |
間取り |
1K |
専有面積 |
20.54㎡ |
築年数 |
新築 |
階数 |
1階部分(地上3階建) |
方位・位置 |
北 / その他 |
物件種別 |
賃貸アパート |
構造 |
木造 |
駐車場 |
無 |
小学校学区 |
金ケ作小学校 |
中学校学区 |
金ケ作中学校 |
他の空き部屋 |
101号室 102号室 103号室 201号室 202号室 204号室 |
- 学区データについて
- ※学区データは必ずしも正確とは限りません。詳細に関しては最寄店舗または各自治体の教育委員会に必ずご確認ください。
KEIAI RESIDENCE 五香 104号室の特徴
-
一人暮らしに人気の設備

-
カップルに人気の設備

-
家族に人気の設備

-
夫婦に人気の設備

-
三世代で人気の設備

-
外で子どもと遊びたい

-
雨の日でも洗濯したい

-
洋室で暮らしたい

-
寝るためだけの部屋

-
オークション・通販が好き

-
ガーデニングが好き

契約条件
敷金と礼金が無料なため、初期費用が比較的安くなる傾向にあり、更新料が無料なので、長年お得に住み続けることができます。
セキュリティ
この物件の建物には、オートロックや宅配ボックスが設置されており、来客時には居室内のテレビモニターにて訪問者の顔を確認することができます。
室内設備
システムキッチンが備え付けられています。 トイレは、温水洗浄便座機能付きになります。 女性に嬉しい設備の独立した洗面化粧台があります。 洗濯に便利な設備として、浴室乾燥機も設置されているので、梅雨時の生乾き臭も比較的防ぐことができます。
居室状況
居室には、ロフトが設置されており大規模な収納スペースやセパレートされた寝室として活用できます。 お部屋の床は、フローリングとなっており、エアコンが設置されています。 インターネットも無料で入居後すぐ生活が始められます。 収納スペースとして、玄関にはシューズボックスがあります。
建物設備共用部分
居室外の専有スペースとして、洗濯物を干すなどの用途として利用できるバルコニーがあります。 建物の共用スペースに、急な外出や不在がちのご家庭の荷物受け取りに便利な宅配ボックスが設置されています。 駐輪場が利用できます。
周辺施設
この物件の学区は、金ケ作小学校区・金ケ作中学校区です。
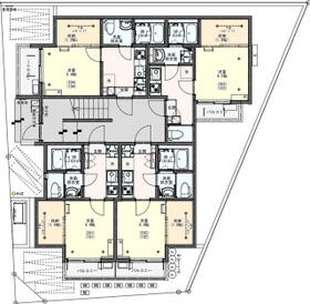
KEIAI RESIDENCE 五香 104号室の間取り
間取り:1K
間取詳細:1K
専有面積:20.54㎡
方位:北
部屋位置:その他
KEIAI RESIDENCE 五香 104号室の設備
キッチン
システムキッチン
バス・トイレ
バス・トイレ別
浴室乾燥機
温水洗浄便座
独立洗面台
玄関
TVモニタ付インターホン
オートロック
宅配ボックス
収納
シューズボックス
バルコニー
バルコニー
ルーフバルコニー
室内設備
エアコン
フローリング
ロフト付
位置・立地
1階
インフラ
CATV
プロパンガス
建物設備
駐輪場
ライフステージ
一人暮らしに人気の設備
カップルに人気の設備
家族に人気の設備
夫婦に人気の設備
三世代で人気の設備
こだわり
外で子どもと遊びたい
雨の日でも洗濯したい
洋室で暮らしたい
寝るためだけの部屋
趣味
オークション・通販が好き
ガーデニングが好き
お得な条件
更新料無料
インターネット無料
KEIAI RESIDENCE 五香 104号室の賃貸契約情報
毎月支払う |
家賃5.9万円/月共益費3,500円/月 |
|---|---|
初期費用 |
敷金-礼金-保証金-敷引き償却金- |
更新料 |
- |
鍵交換費用 |
- |
室内清掃費用 |
- |
駐車場料金 |
無 |
損保・ |
借家賠付きの火災保険にご加入いただきます。 |
保証会社 |
加入要 保証会社利用料:初回保証料:家賃総額50% 月額保証料:900円/月 |
契約期間 |
2年 |
入居可能日 |
2025年11月下旬 |
フリーレント期間 |
- |
取引形態 |
一般媒介 |
備考 |
保証会社利用必須 初回保証料:家賃総額50% 月額保証料:900円/月 |
KEIAI RESIDENCE 五香 104号室の建物情報
建物名称 |
KEIAI RESIDENCE 五香 |
|---|---|
最寄駅 |
|
所在地 |
千葉県松戸市金ケ作 |
階層 |
1階部分(地上3階建) |
構造 |
木造 |
築年数 |
新築 |
駐車場 |
無 |
小学校学区 |
金ケ作小学校 |
中学校学区 |
金ケ作中学校 |
- 学区データについて
- ※学区データは必ずしも正確とは限りません。詳細に関しては最寄店舗または各自治体の教育委員会に必ずご確認ください。
無料この物件に問い合わせ
- KEIAI RESIDENCE 五香 104号室

-
5.9万円
(共益費
3,500円)
- 敷
- -
- 礼
- -
- 保
- -
- 償
- -
KEIAI RESIDENCE 五香 104号室の物件のお問い合わせ先・取り扱い店舗
ハウスコム 松戸店
- アクセス
-
常磐線「松戸駅」西口徒歩1分
- 住所
- 〒271-0091 千葉県松戸市本町2−3 平野第1ビル 3階
- 営業時間
- AM10:00~PM06:00
- 定休日
- なし
- 営業エリア
- 松戸市、鎌ヶ谷市、柏市、野田市、三郷市、八潮市、流山市
- 取引態様
- 賃貸仲介業













