シャルマンフジスマート住之江ファミリア 204号室(2階/3LDK)の賃貸物件(賃貸マンション)
大阪府大阪市住之江区にあるシャルマンフジスマート住之江ファミリア 204号室はバス・トイレ別、独立洗面台、バルコニー、2階以上、オンライン相談可などが特徴です。最寄り駅の南海本線住ノ江駅から徒歩8分です。シャルマンフジスマート住之江ファミリア 204号室の詳細はミニミニ FC肥後橋店までお気軽にお問い合わせください!
情報更新日:
次回更新予定日:
※次回更新予定日について:お店側では順次空室確認を行っていますが、次回更新予定日までに空室確認が行えない場合には、この物件情報は自動的に削除されます。
シャルマンフジスマート住之江ファミリア 204号室の賃貸物件部屋概要
家賃 |
12.5万円
初期費用を |
|---|---|
共益費 |
-
入居可能時期 |
敷金/礼金 |
- / 300,000円 |
保証金/ |
- / - |
最寄駅 |
|
所在地 |
大阪府大阪市住之江区浜口西 |
部屋番号 |
204号室 |
間取り |
3LDK |
専有面積 |
70.85㎡ |
築年数 |
2015年6月(築11年) |
階数 |
2階部分(地上13階建) |
方位・位置 |
南 / その他 |
物件種別 |
賃貸マンション |
構造 |
RC |
駐車場 |
- |
小学校学区 |
清江小学校 |
中学校学区 |
真住中学校 |
他の空き部屋 |
ー |
- 学区データについて
- ※学区データは必ずしも正確とは限りません。詳細に関しては最寄店舗または各自治体の教育委員会に必ずご確認ください。
シャルマンフジスマート住之江ファミリア 204号室の特徴
契約条件
敷金が無料なため、初期費用が比較的安くなる傾向にあります。
セキュリティ
この物件の建物には、オートロックや防犯カメラや宅配ボックスが設置されております。
室内設備
カウンターキッチンが備え付けられています。 お風呂とトイレは別です。お風呂には、追い焚き機能が備わっています。 女性に嬉しい設備の独立した洗面化粧台があります。
建物設備共用部分
居室外の専有スペースとして、洗濯物を干すなどの用途として利用できるバルコニーがあります。 建物の共用スペースに、日々の出入に便利なエレベーターや、いざという時の防犯カメラや、急な外出や不在がちのご家庭の荷物受け取りに便利な宅配ボックスが設置されています。 駐輪場が利用できます。
周辺施設
この物件の学区は、清江小学校区・真住中学校区です。
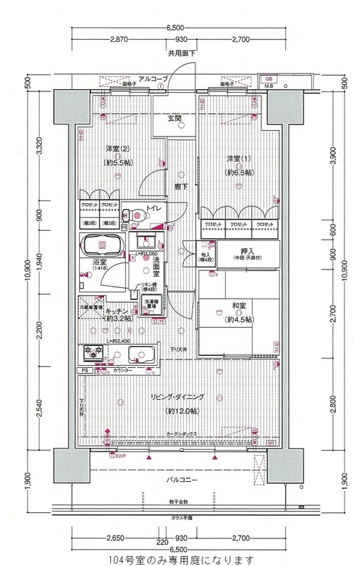
シャルマンフジスマート住之江ファミリア 204号室の間取り
間取り:3LDK
間取詳細:3LDK
専有面積:70.85㎡
方位:南
部屋位置:その他
シャルマンフジスマート住之江ファミリア 204号室の設備
キッチン
カウンターキッチン
バス・トイレ
バス・トイレ別
追い焚き
独立洗面台
玄関
オートロック
宅配ボックス
バルコニー
バルコニー
ルーフバルコニー
位置・立地
2階以上
南向き
建物設備
エレベーター
防犯カメラ
駐輪場
入居条件
オンライン相談可
オンライン内見可
即入居可
ライフステージ
一人暮らしに人気の設備
カップルに人気の設備
家族に人気の設備
夫婦に人気の設備
三世代で人気の設備
こだわり
外で子どもと遊びたい
趣味
推し活グッズを飾りたい
ガーデニングが好き
シャルマンフジスマート住之江ファミリア 204号室の賃貸契約情報
毎月支払う |
家賃12.5万円/月共益費- |
|---|---|
初期費用 |
敷金-礼金300,000円保証金-敷引き償却金- |
更新料 |
- |
鍵交換費用 |
11,000円 |
室内清掃費用 |
33,000円 |
駐車場料金 |
- |
損保・ |
借家賠付きの火災保険にご加入いただきます。 |
保証会社 |
|
契約期間 |
2年 |
入居可能日 |
即入居可 |
フリーレント期間 |
- |
取引形態 |
一般媒介 |
備考 |
駐輪場:有料 |
シャルマンフジスマート住之江ファミリア 204号室の建物情報
建物名称 |
シャルマンフジスマート住之江ファミリア |
|---|---|
最寄駅 |
|
所在地 |
大阪府大阪市住之江区浜口西 |
階層 |
2階部分(地上13階建) |
構造 |
RC |
築年数 |
2015年6月(築11年) |
駐車場 |
- |
小学校学区 |
清江小学校 |
中学校学区 |
真住中学校 |
- 学区データについて
- ※学区データは必ずしも正確とは限りません。詳細に関しては最寄店舗または各自治体の教育委員会に必ずご確認ください。
無料この物件に問い合わせ
- シャルマンフジスマート住之江ファミリア 204号室

-
12.5万円
(共益費
-)
- 敷
- -
- 礼
- 300,000円
- 保
- -
- 償
- -
シャルマンフジスマート住之江ファミリア 204号室の物件のお問い合わせ先・取り扱い店舗
ミニミニ FC肥後橋店
- アクセス
-
大阪メトロ 四つ橋線「肥後橋駅」徒歩1分
- 住所
- 〒550-0002 大阪府大阪市西区江戸堀1-13-17
- 営業時間
- 10:00~18:00
- 定休日
- 水曜日
- 営業エリア
- 大阪市西区,大阪市中央区,大阪市北区,大阪市福島区,大阪市都島区,大阪市淀川区,大阪市東淀川区,大阪市西淀川区
- 取引態様
- 賃貸仲介業





















