SYFORME SUMIYOSHIⅡ 501号室(5階/1DK)の賃貸物件(賃貸マンション)
東京都江東区にあるSYFORME SUMIYOSHIⅡ 501号室はシステムキッチン、独立洗面台、バルコニー、エアコン、2人入居可などが特徴です。最寄り駅の都営新宿線住吉駅から徒歩7分です。SYFORME SUMIYOSHIⅡ 501号室の詳細はハウスコム 押上店までお気軽にお問い合わせください!
情報更新日:
次回更新予定日:
※次回更新予定日について:お店側では順次空室確認を行っていますが、次回更新予定日までに空室確認が行えない場合には、この物件情報は自動的に削除されます。
SYFORME SUMIYOSHIⅡ 501号室の賃貸物件部屋概要
家賃 |
12.3万円
初期費用を |
|---|---|
共益費 |
10,000円
入居可能時期 |
敷金/礼金 |
- / - |
保証金/ |
- / - |
最寄駅 |
|
所在地 |
東京都江東区大島 |
部屋番号 |
501号室 |
間取り |
1DK(洋4.2・DK4.5) |
専有面積 |
25.68㎡ |
築年数 |
2024年3月(築3年) |
階数 |
5階部分(地上13階建) |
方位・位置 |
北 / その他 |
物件種別 |
賃貸マンション |
構造 |
RC |
駐車場 |
空無し |
小学校学区 |
第一大島小学校 |
中学校学区 |
大島西中学校 |
他の空き部屋 |
ー |
- 学区データについて
- ※学区データは必ずしも正確とは限りません。詳細に関しては最寄店舗または各自治体の教育委員会に必ずご確認ください。
SYFORME SUMIYOSHIⅡ 501号室の特徴
-
一人暮らしに人気の設備

-
カップルに人気の設備

-
家族に人気の設備

-
夫婦に人気の設備

-
三世代で人気の設備

-
外で子どもと遊びたい

-
雨の日でも洗濯したい

-
洋室で暮らしたい

-
オークション・通販が好き

-
ガーデニングが好き

契約条件
この物件は、2人入居もご契約できます。 ペットの飼育もご相談ください。 また、ご契約時に保証人は不要です。 敷金と礼金が無料なため、初期費用が比較的安くなる傾向にあります。
セキュリティ
この物件の建物には、オートロックや防犯カメラや宅配ボックスが設置されております。
室内設備
システムキッチンには、2つ以上のガスコンロが備え付けられています。 お風呂とトイレは別です。お風呂には、追い焚き機能が備わっています。 トイレは、温水洗浄便座機能付きになります。 女性に嬉しい設備の独立した洗面化粧台があります。 洗濯に便利な設備として、室内洗濯機置場があります。浴室乾燥機も設置されているので、梅雨時の生乾き臭も比較的防ぐことができます。
居室状況
お部屋の床は、フローリングとなっており、エアコンが設置されています。 インターネットも無料で入居後すぐ生活が始められます。 収納スペースとして、基本的な居室にクローゼットを設置、玄関にはシューズボックスがあります。
建物設備共用部分
居室外の専有スペースとして、洗濯物を干すなどの用途として利用できるバルコニーがあります。 建物の共用スペースに、日々の出入に便利なエレベーターや、いざという時の防犯カメラや、急な外出や不在がちのご家庭の荷物受け取りに便利な宅配ボックスが設置されています。 駐輪場、バイク置き場が利用できます。
周辺施設
この物件の学区は、第一大島小学校区・大島西中学校区です。
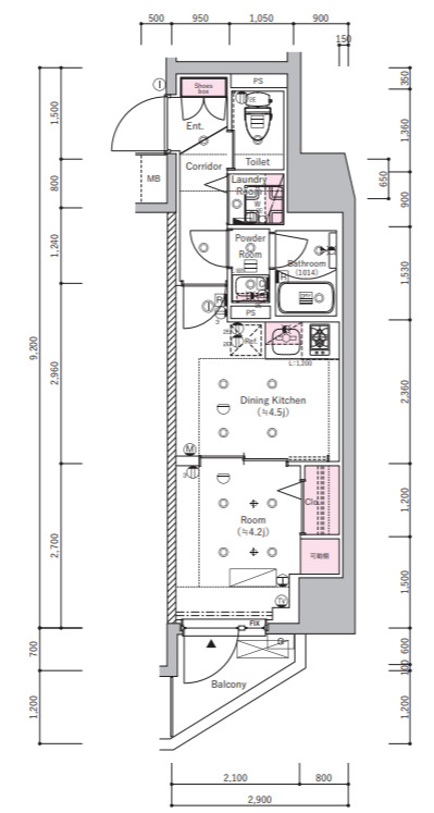
SYFORME SUMIYOSHIⅡ 501号室の間取り
間取り:1DK
間取詳細:1DK(洋4.2・DK4.5)
専有面積:25.68㎡
方位:北
部屋位置:その他
SYFORME SUMIYOSHIⅡ 501号室の設備
キッチン
システムキッチン
ガスコンロ
ガスコンロ二口以上
バス・トイレ
バス・トイレ別
追い焚き
浴室乾燥機
温水洗浄便座
独立洗面台
玄関
オートロック
宅配ボックス
収納
クローゼット
シューズボックス
バルコニー
バルコニー
ルーフバルコニー
室内設備
エアコン
フローリング
室内洗濯機置場
位置・立地
2階以上
インフラ
インターネット可
BS
CS
都市ガス
建物設備
エレベーター
防犯カメラ
駐輪場
バイク置き場
入居条件
ペット可・相談
2人入居可
保証人不要
ライフステージ
一人暮らしに人気の設備
カップルに人気の設備
家族に人気の設備
夫婦に人気の設備
三世代で人気の設備
こだわり
外で子どもと遊びたい
雨の日でも洗濯したい
洋室で暮らしたい
趣味
オークション・通販が好き
ガーデニングが好き
お得な条件
インターネット無料
SYFORME SUMIYOSHIⅡ 501号室の賃貸契約情報
毎月支払う |
家賃12.3万円/月共益費10,000円/月 |
|---|---|
初期費用 |
敷金-礼金-保証金-敷引き償却金- |
更新料 |
123,000円 |
鍵交換費用 |
33,000円 |
室内清掃費用 |
52,800円 |
駐車場料金 |
空無し |
損保・ |
借家賠付きの火災保険にご加入いただきます。 |
保証会社 |
加入要 保証会社:クレディセゾン 保証会社利用料:初回40%、以降10,000円/年(総賃料15万円以上:14,000円/年)~ 外国籍の方:GTNを利用。初回保証料100%(最低保証料40,000円)、月額保証料1,000円 |
契約期間 |
2年 |
入居可能日 |
相談 |
フリーレント期間 |
- |
取引形態 |
一般媒介 |
備考 |
- |
SYFORME SUMIYOSHIⅡ 501号室の建物情報
建物名称 |
SYFORME SUMIYOSHIⅡ |
|---|---|
最寄駅 |
|
所在地 |
東京都江東区大島 |
階層 |
5階部分(地上13階建) |
構造 |
RC |
築年数 |
2024年3月(築3年) |
駐車場 |
空無し |
小学校学区 |
第一大島小学校 |
中学校学区 |
大島西中学校 |
- 学区データについて
- ※学区データは必ずしも正確とは限りません。詳細に関しては最寄店舗または各自治体の教育委員会に必ずご確認ください。
無料この物件に問い合わせ
- SYFORME SUMIYOSHIⅡ 501号室

-
12.3万円
(共益費
10,000円)
- 敷
- -
- 礼
- -
- 保
- -
- 償
- -
SYFORME SUMIYOSHIⅡ 501号室の物件のお問い合わせ先・取り扱い店舗
ハウスコム 押上店
- アクセス
-
東京メトロ 半蔵門線「押上駅」B1出口徒歩1分
- 住所
- 〒130-0002 東京都墨田区業平4丁目16−2 三橋ビル 1F
- 営業時間
- 10:00~18:00
- 定休日
- 水曜日
- 営業エリア
- 墨田区・江東区・中央区・台東区・江戸川区・葛飾区・足立区・荒川区
- 取引態様
- 賃貸仲介業





























