クラシアム神奈川台場 210号室(2階/3LDK)の賃貸物件(賃貸マンション)
神奈川県横浜市神奈川区にあるクラシアム神奈川台場 210号室はシャワー付洗面化粧台、宅配ボックス、2階以上、CS、駐輪場などが特徴です。最寄り駅の京浜東北・根岸線東神奈川駅から徒歩10分です。クラシアム神奈川台場 210号室の詳細はハウスコム 菊名店までお気軽にお問い合わせください!
情報更新日:
次回更新予定日:
※次回更新予定日について:お店側では順次空室確認を行っていますが、次回更新予定日までに空室確認が行えない場合には、この物件情報は自動的に削除されます。
クラシアム神奈川台場 210号室の賃貸物件部屋概要
家賃 |
24.4万円
初期費用を |
|---|---|
共益費 |
18,000円
入居可能時期 |
敷金/礼金 |
244,000円 / 244,000円 |
保証金/ |
- / - |
最寄駅 |
|
所在地 |
神奈川県横浜市神奈川区神奈川 |
部屋番号 |
210号室 |
間取り |
3LDK |
専有面積 |
73.17㎡ |
築年数 |
新築 |
階数 |
2階部分(地上7階建) |
方位・位置 |
南西 / その他 |
物件種別 |
賃貸マンション |
構造 |
RC |
駐車場 |
25,300円 |
小学校学区 |
幸ケ谷小学校 |
中学校学区 |
栗田谷中学校 |
他の空き部屋 |
106号室 107号室 112号室 113号室 206号室 207号室 208号室 209号室 212号室 213号室 306号室 310号室 |
- 学区データについて
- ※学区データは必ずしも正確とは限りません。詳細に関しては最寄店舗または各自治体の教育委員会に必ずご確認ください。
クラシアム神奈川台場 210号室の特徴
-
一人暮らしに人気の設備

-
カップルに人気の設備

-
家族に人気の設備

-
夫婦に人気の設備

-
三世代で人気の設備

-
セキュリティ対策重視

-
収納重視

-
外で子どもと遊びたい

-
雨の日でも洗濯したい

-
持ち物をスッキリ隠す収納部屋

-
オークション・通販が好き

-
ガーデニングが好き

セキュリティ
この物件の建物には、オートロックや防犯カメラや宅配ボックスが設置されており、来客時には居室内のテレビモニターにて訪問者の顔を確認することができます。
室内設備
システムキッチンには、ガスコンロが備え付けられています。 お風呂とトイレは別です。お風呂には、追い焚き機能が備わっています。 トイレは、温水洗浄便座機能付きになります。 女性に嬉しい設備のシャワーの付いている洗面化粧台があります。 洗濯に便利な設備として、室内洗濯機置場があります。浴室乾燥機も設置されているので、梅雨時の生乾き臭も比較的防ぐことができます。
居室状況
エアコンが設置されています。 インターネットも無料で入居後すぐ生活が始められます。 収納スペースとして、基本的な居室にクローゼットを設置、玄関にはシューズボックスがあります。
建物設備共用部分
居室外の専有スペースとして、洗濯物を干すなどの用途として利用できるバルコニーがあります。 建物の共用スペースに、日々の出入に便利なエレベーターや、いざという時の防犯カメラや、急な外出や不在がちのご家庭の荷物受け取りに便利な宅配ボックスが設置されています。 駐輪場、バイク置き場が利用できます。
周辺施設
この物件の学区は、幸ケ谷小学校区・栗田谷中学校区です。
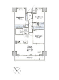
クラシアム神奈川台場 210号室の間取り
間取り:3LDK
間取詳細:3LDK
専有面積:73.17㎡
方位:南西
部屋位置:その他
クラシアム神奈川台場 210号室の設備
キッチン
システムキッチン
ガスコンロ
バス・トイレ
バス・トイレ別
追い焚き
浴室乾燥機
温水洗浄便座
独立洗面台
シャワー付洗面化粧台
玄関
TVモニタ付インターホン
オートロック
宅配ボックス
収納
クローゼット
シューズボックス
全居室収納
バルコニー
バルコニー
ルーフバルコニー
室内設備
エアコン
室内洗濯機置場
位置・立地
2階以上
インフラ
インターネット可
CATV
BS
CS
都市ガス
建物設備
エレベーター
防犯カメラ
駐輪場
バイク置き場
入居条件
即入居可
ライフステージ
一人暮らしに人気の設備
カップルに人気の設備
家族に人気の設備
夫婦に人気の設備
三世代で人気の設備
こだわり
セキュリティ対策重視
収納重視
外で子どもと遊びたい
雨の日でも洗濯したい
持ち物をスッキリ隠す収納部屋
趣味
オークション・通販が好き
ガーデニングが好き
お得な条件
フリーレント
インターネット無料
クラシアム神奈川台場 210号室の賃貸契約情報
毎月支払う |
家賃24.4万円/月共益費18,000円/月 |
|---|---|
初期費用 |
敷金244,000円礼金244,000円保証金-敷引き償却金- |
更新料 |
244,000円 |
鍵交換費用 |
- |
室内清掃費用 |
- |
鍵交換費用 |
17,600円 |
駐車場料金 |
25,300円 |
損保・ |
借家賠付きの火災保険にご加入いただきます。 |
保証会社 |
加入要 保証会社利用料:VIEW家賃保証プラス 【カード払い】初回保証料:月額総支払額の10%、月額保証料:月額総支払額の1.25%、年間保証料:10,000円【口座振替】初回保証料:月額総支払額の50%、年間保証料:10 |
契約期間 |
2年 |
入居可能日 |
即入居可 |
フリーレント期間 |
2ヶ月 |
取引形態 |
一般媒介 |
備考 |
- |
クラシアム神奈川台場 210号室の建物情報
建物名称 |
クラシアム神奈川台場 |
|---|---|
最寄駅 |
|
所在地 |
神奈川県横浜市神奈川区神奈川 |
階層 |
2階部分(地上7階建) |
構造 |
RC |
築年数 |
新築 |
駐車場 |
25,300円 |
小学校学区 |
幸ケ谷小学校 |
中学校学区 |
栗田谷中学校 |
- 学区データについて
- ※学区データは必ずしも正確とは限りません。詳細に関しては最寄店舗または各自治体の教育委員会に必ずご確認ください。
無料この物件に問い合わせ
- クラシアム神奈川台場 210号室

-
24.4万円
(共益費
18,000円)
- 敷
- 244,000円
- 礼
- 244,000円
- 保
- -
- 償
- -
クラシアム神奈川台場 210号室の物件のお問い合わせ先・取り扱い店舗
ハウスコム 菊名店
- アクセス
-
東急東横線「菊名駅」徒歩1分
- 住所
- 〒222-0011 神奈川県横浜市港北区菊名4丁目1−6 クレセント菊名 1階
- 営業時間
- 10:00~18:00
- 定休日
- なし
- 営業エリア
- 横浜市港北区、横浜市神奈川区、横浜市都筑区、横浜市鶴見区、横浜市緑区
- 取引態様
- 賃貸仲介業






