ガーラ・シティ蒲田南 502号室(5階/1K)の賃貸物件(賃貸マンション)
東京都大田区にあるガーラ・シティ蒲田南 502号室はシステムキッチン、宅配ボックス、CATV、駐輪場、バイク置き場などが特徴です。最寄り駅の京急本線雑色駅から徒歩7分です。ガーラ・シティ蒲田南 502号室の詳細はハウスコム 五反田店までお気軽にお問い合わせください!
情報更新日:
次回更新予定日:
※次回更新予定日について:お店側では順次空室確認を行っていますが、次回更新予定日までに空室確認が行えない場合には、この物件情報は自動的に削除されます。
ガーラ・シティ蒲田南 502号室の賃貸物件部屋概要
家賃 |
8万円
初期費用を |
|---|---|
共益費 |
10,000円
入居可能時期 |
敷金/礼金 |
- / 1ヶ月 |
保証金/ |
- / - |
最寄駅 |
|
所在地 |
東京都大田区仲六郷 |
部屋番号 |
502号室 |
間取り |
1K(洋6.6) |
専有面積 |
21.90㎡ |
築年数 |
2007年1月(築20年) |
階数 |
5階部分(地上6階建) |
方位・位置 |
東 / その他 |
物件種別 |
賃貸マンション |
構造 |
RC |
駐車場 |
無 |
小学校学区 |
仲六郷小学校 |
中学校学区 |
志茂田中学校 |
他の空き部屋 |
ー |
- 学区データについて
- ※学区データは必ずしも正確とは限りません。詳細に関しては最寄店舗または各自治体の教育委員会に必ずご確認ください。
ガーラ・シティ蒲田南 502号室の特徴
-
一人暮らしに人気の設備

-
カップルに人気の設備

-
家族に人気の設備

-
夫婦に人気の設備

-
三世代で人気の設備

-
セキュリティ対策重視

-
外で子どもと遊びたい

-
雨の日でも洗濯したい

-
洋室で暮らしたい

-
ガーデニングが好き

契約条件
敷金が無料なため、初期費用が比較的安くなる傾向にあります。
セキュリティ
この物件の建物には、オートロックや防犯カメラや宅配ボックスが設置されており、来客時には居室内のテレビモニターにて訪問者の顔を確認することができます。
室内設備
システムキッチンには、2つ以上のガスコンロが備え付けられています。 洗濯に便利な設備として、浴室乾燥機も設置されているので、梅雨時の生乾き臭も比較的防ぐことができます。
居室状況
お部屋の床は、フローリングとなっており、エアコンが設置されています。 収納スペースとして、基本的な居室にクローゼットを設置、玄関にはシューズボックスがあります。
建物設備共用部分
居室外の専有スペースとして、洗濯物を干すなどの用途として利用できるバルコニーがあります。 建物の共用スペースに、日々の出入に便利なエレベーターや、いざという時の防犯カメラや、急な外出や不在がちのご家庭の荷物受け取りに便利な宅配ボックスが設置されています。 駐輪場、バイク置き場が利用できます。
周辺施設
この物件の学区は、仲六郷小学校区・志茂田中学校区です。
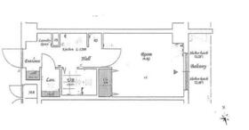
ガーラ・シティ蒲田南 502号室の間取り
間取り:1K
間取詳細:1K(洋6.6)
専有面積:21.90㎡
方位:東
部屋位置:その他
ガーラ・シティ蒲田南 502号室の設備
キッチン
システムキッチン
ガスコンロ
ガスコンロ二口以上
バス・トイレ
バス・トイレ別
浴室乾燥機
玄関
TVモニタ付インターホン
オートロック
宅配ボックス
収納
クローゼット
シューズボックス
バルコニー
バルコニー
ルーフバルコニー
室内設備
エアコン
フローリング
位置・立地
2階以上
インフラ
インターネット可
CATV
BS
CS
都市ガス
建物設備
エレベーター
防犯カメラ
駐輪場
バイク置き場
ライフステージ
一人暮らしに人気の設備
カップルに人気の設備
家族に人気の設備
夫婦に人気の設備
三世代で人気の設備
こだわり
セキュリティ対策重視
外で子どもと遊びたい
雨の日でも洗濯したい
洋室で暮らしたい
趣味
ガーデニングが好き
ガーラ・シティ蒲田南 502号室の賃貸契約情報
毎月支払う |
家賃8万円/月共益費10,000円/月 |
|---|---|
初期費用 |
敷金-礼金1ヶ月 (8万円)保証金-敷引き償却金- |
更新料 |
120,000円 |
鍵交換費用 |
- |
室内清掃費用 |
- |
鍵交換費用(必須) |
33,000円 |
室内抗菌代(必須) |
16,500円 |
駐車場料金 |
無 |
損保・ |
借家賠付きの火災保険にご加入いただきます。 |
保証会社 |
加入要 保証会社利用料:初回契約時:総賃料50%、[JRAG:1万円/年(月330円)] [カーサ:月額保証料1%][ジャックス:月額保証料1%][ベルテックス保証:月額保証料1%]※外国籍の方は敷金1ヶ月追加となります。 |
契約期間 |
2年 |
入居可能日 |
2026年05月下旬 |
フリーレント期間 |
- |
取引形態 |
一般媒介 |
備考 |
- |
ガーラ・シティ蒲田南 502号室の建物情報
建物名称 |
ガーラ・シティ蒲田南 |
|---|---|
最寄駅 |
|
所在地 |
東京都大田区仲六郷 |
階層 |
5階部分(地上6階建) |
構造 |
RC |
築年数 |
2007年1月(築20年) |
駐車場 |
無 |
小学校学区 |
仲六郷小学校 |
中学校学区 |
志茂田中学校 |
- 学区データについて
- ※学区データは必ずしも正確とは限りません。詳細に関しては最寄店舗または各自治体の教育委員会に必ずご確認ください。
無料この物件に問い合わせ
- ガーラ・シティ蒲田南 502号室

-
8万円
(共益費
10,000円)
- 敷
- -
- 礼
- 1ヶ月
- 保
- -
- 償
- -
ガーラ・シティ蒲田南 502号室の物件のお問い合わせ先・取り扱い店舗
ハウスコム 五反田店
- アクセス
-
山手線「五反田駅」東口徒歩1分
都営浅草線「五反田駅」A6出口より徒歩1分
- 住所
- 〒141-0022 東京都品川区東五反田1丁目12−12 落合ビル 2F
- 営業時間
- 10:00~18:00
- 定休日
- 水曜日
- 営業エリア
- 品川区,大田区,港区,目黒区
- 取引態様
- 賃貸仲介業


