プレリスNEO大阪十三エルヴィオン 202号室(2階/1K)の賃貸物件(賃貸マンション)
大阪府大阪市淀川区にあるプレリスNEO大阪十三エルヴィオン 202号室は宅配ボックス、シューズボックス、CATV、駐輪場、バイク置き場などが特徴です。最寄り駅の阪急神戸線十三駅から徒歩4分です。プレリスNEO大阪十三エルヴィオン 202号室の詳細はミニミニ FC西中島南方店までお気軽にお問い合わせください!
情報更新日:
次回更新予定日:
※次回更新予定日について:お店側では順次空室確認を行っていますが、次回更新予定日までに空室確認が行えない場合には、この物件情報は自動的に削除されます。
プレリスNEO大阪十三エルヴィオン 202号室の賃貸物件部屋概要
家賃 |
6.77万円
初期費用を |
|---|---|
共益費 |
6,350円
入居可能時期 |
敷金/礼金 |
- / 1ヶ月 |
保証金/ |
- / - |
最寄駅 |
|
所在地 |
大阪府大阪市淀川区十三本町 |
部屋番号 |
202号室 |
間取り |
1K(K0・洋6) |
専有面積 |
21.89㎡ |
築年数 |
新築 |
階数 |
2階部分(地上15階建) |
方位・位置 |
西 / 角部屋 |
物件種別 |
賃貸マンション |
構造 |
RC |
駐車場 |
20,000円 |
小学校学区 |
神津小学校 |
中学校学区 |
新北野中学校 |
他の空き部屋 |
201号室 203号室 204号室 ***号室 |
- 学区データについて
- ※学区データは必ずしも正確とは限りません。詳細に関しては最寄店舗または各自治体の教育委員会に必ずご確認ください。
プレリスNEO大阪十三エルヴィオン 202号室の特徴
-
一人暮らしに人気の設備

-
カップルに人気の設備

-
家族に人気の設備

-
夫婦に人気の設備

-
三世代で人気の設備

-
セキュリティ対策重視

-
外で子どもと遊びたい

-
急な来客でも駐車したい

-
身だしなみに気をつかいたい

-
雨の日でも洗濯したい

-
洋室で暮らしたい

-
オークション・通販が好き

-
ガーデニングが好き

契約条件
敷金が無料なため、初期費用が比較的安くなる傾向にあります。
セキュリティ
この物件の建物には、オートロックや防犯カメラや宅配ボックスが設置されており、来客時には居室内のテレビモニターにて訪問者の顔を確認することができます。
室内設備
システムキッチンには、IHコンロが備え付けられています。 トイレは、温水洗浄便座機能付きになります。 女性に嬉しい設備のシャワーの付いている洗面化粧台があります。 洗濯に便利な設備として、室内洗濯機置場があります。浴室乾燥機も設置されているので、梅雨時の生乾き臭も比較的防ぐことができます。
居室状況
お部屋の床は、フローリングとなっており、エアコンが設置されています。 照明器具が備え付けられており、インターネットも無料で入居後すぐ生活が始められます。 収納スペースとして、基本的な居室にクローゼットを設置、玄関にはシューズボックスがあります。
建物設備共用部分
居室外の専有スペースとして、洗濯物を干すなどの用途として利用できるバルコニーがあります。 建物の共用スペースに、日々の出入に便利なエレベーターや、いざという時の防犯カメラや、急な外出や不在がちのご家庭の荷物受け取りに便利な宅配ボックスが設置されています。 駐車場があり2台以上の車で利用することができます。駐輪場、バイク置き場が利用できます。
周辺施設
この物件の学区は、神津小学校区・新北野中学校区です。
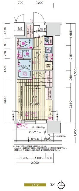
プレリスNEO大阪十三エルヴィオン 202号室の間取り
間取り:1K
間取詳細:1K(K0・洋6)
専有面積:21.89㎡
方位:西
部屋位置:角部屋
プレリスNEO大阪十三エルヴィオン 202号室の設備
キッチン
システムキッチン
IHコンロ
バス・トイレ
バス・トイレ別
浴室乾燥機
温水洗浄便座
独立洗面台
シャワー付洗面化粧台
玄関
TVモニタ付インターホン
オートロック
宅配ボックス
収納
クローゼット
シューズボックス
バルコニー
バルコニー
ルーフバルコニー
室内設備
エアコン
フローリング
室内洗濯機置場
照明器具付
位置・立地
2階以上
角部屋
インフラ
インターネット可
CATV
BS
建物設備
エレベーター
防犯カメラ
駐車2台以上可
駐輪場
バイク置き場
分譲賃貸
入居条件
オンライン相談可
ライフステージ
一人暮らしに人気の設備
カップルに人気の設備
家族に人気の設備
夫婦に人気の設備
三世代で人気の設備
こだわり
セキュリティ対策重視
外で子どもと遊びたい
急な来客でも駐車したい
身だしなみに気をつかいたい
雨の日でも洗濯したい
洋室で暮らしたい
趣味
オークション・通販が好き
ガーデニングが好き
お得な条件
インターネット無料
プレリスNEO大阪十三エルヴィオン 202号室の賃貸契約情報
毎月支払う |
家賃6.77万円/月共益費6,350円/月 |
|---|---|
初期費用 |
敷金-礼金1ヶ月 (6.77万円)保証金-敷引き償却金- |
更新料 |
11,000円 |
鍵交換費用 |
22,000円 |
室内清掃費用 |
38,500円 |
駐車場料金 |
20,000円 |
損保・ |
借家賠付きの火災保険にご加入いただきます。 |
保証会社 |
加入要 保証会社利用料:初回保証料50% 月次1.5% |
契約期間 |
1年 |
入居可能日 |
2026年07月 |
フリーレント期間 |
- |
取引形態 |
一般媒介 |
備考 |
短期違約1年未満2ヵ月 ハウスクリーニング代:35000円(退去時税別) |
プレリスNEO大阪十三エルヴィオン 202号室の建物情報
建物名称 |
プレリスNEO大阪十三エルヴィオン |
|---|---|
最寄駅 |
|
所在地 |
大阪府大阪市淀川区十三本町 |
階層 |
2階部分(地上15階建) |
構造 |
RC |
築年数 |
新築 |
駐車場 |
20,000円 |
小学校学区 |
神津小学校 |
中学校学区 |
新北野中学校 |
- 学区データについて
- ※学区データは必ずしも正確とは限りません。詳細に関しては最寄店舗または各自治体の教育委員会に必ずご確認ください。
無料この物件に問い合わせ
- プレリスNEO大阪十三エルヴィオン 202号室

-
6.77万円
(共益費
6,350円)
- 敷
- -
- 礼
- 1ヶ月
- 保
- -
- 償
- -
プレリスNEO大阪十三エルヴィオン 202号室の物件のお問い合わせ先・取り扱い店舗
ミニミニ FC西中島南方店
- アクセス
-
大阪メトロ 御堂筋線「西中島南方駅」徒歩1分
阪急京都線「南方駅」徒歩1分
- 住所
- 〒532-0011 大阪府大阪市淀川区西中島3-18-9 新大阪日大ビル2F
- 営業時間
- 10:00~18:00
- 定休日
- 水曜日
- 営業エリア
- 大阪市淀川区,大阪市東淀川区,大阪市西淀川区,北区,豊中市,吹田市,摂津市
- 取引態様
- 賃貸仲介業











