方南町テラスハウスE ***号室(2階/1R)の賃貸物件(賃貸アパート)
東京都杉並区にある方南町テラスハウスE ***号室はIHコンロ、温水洗浄便座、クローゼット、都市ガス、オンライン相談可などが特徴です。最寄り駅の東京メトロ 丸ノ内線方南町支線方南町駅から徒歩6分です。方南町テラスハウスE ***号室の詳細はハウスコム 明大前店までお気軽にお問い合わせください!
情報更新日:
次回更新予定日:
※次回更新予定日について:お店側では順次空室確認を行っていますが、次回更新予定日までに空室確認が行えない場合には、この物件情報は自動的に削除されます。
方南町テラスハウスE ***号室の賃貸物件部屋概要
家賃 |
7.9万円
初期費用を |
|---|---|
共益費 |
4,000円
入居可能時期 |
敷金/礼金 |
- / 1ヶ月 |
保証金/ |
- / - |
最寄駅 |
|
所在地 |
東京都杉並区方南 |
部屋番号 |
***号室 |
間取り |
1R(洋6) |
専有面積 |
18.18㎡ |
築年数 |
2018年4月(築8年) |
階数 |
2階部分(地上3階建) |
方位・位置 |
南 / その他 |
物件種別 |
賃貸アパート |
構造 |
木造 |
駐車場 |
- |
小学校学区 |
方南小学校 |
中学校学区 |
泉南中学校 |
他の空き部屋 |
ー |
- 学区データについて
- ※学区データは必ずしも正確とは限りません。詳細に関しては最寄店舗または各自治体の教育委員会に必ずご確認ください。
方南町テラスハウスE ***号室の特徴
契約条件
敷金が無料なため、初期費用が比較的安くなる傾向にあります。
セキュリティ
来客時には居室内のテレビモニターにて訪問者の顔を確認することができます。
室内設備
システムキッチンには、IHコンロが備え付けられています。 トイレは、温水洗浄便座機能付きになります。 洗濯に便利な設備として、室内洗濯機置場があります。浴室乾燥機も設置されているので、梅雨時の生乾き臭も比較的防ぐことができます。
居室状況
お部屋の床は、フローリングとなっており、エアコンが設置されています。 インターネットも無料で入居後すぐ生活が始められます。 収納スペースとして、基本的な居室にクローゼットを設置、玄関にはシューズボックスがあります。
建物設備共用部分
建物の共用スペースに、日々の出入に便利なエレベーターが設置されています。
周辺施設
この物件の学区は、方南小学校区・泉南中学校区です。
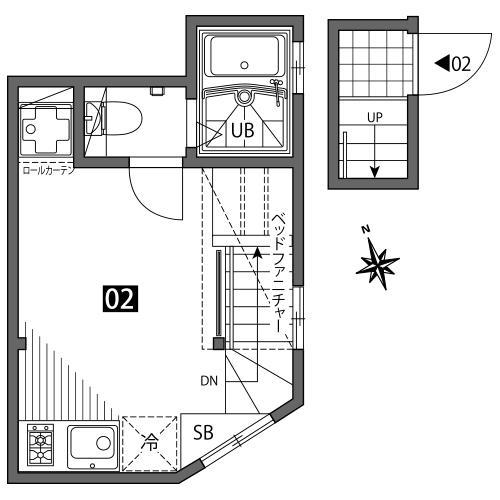
方南町テラスハウスE ***号室の間取り
間取り:1R
間取詳細:1R(洋6)
専有面積:18.18㎡
方位:南
部屋位置:その他
方南町テラスハウスE ***号室の設備
キッチン
システムキッチン
IHコンロ
バス・トイレ
バス・トイレ別
浴室乾燥機
温水洗浄便座
玄関
TVモニタ付インターホン
収納
クローゼット
シューズボックス
室内設備
エアコン
フローリング
室内洗濯機置場
位置・立地
2階以上
南向き
インフラ
インターネット可
都市ガス
建物設備
エレベーター
入居条件
オンライン相談可
オンライン内見可
ライフステージ
一人暮らしに人気の設備
カップルに人気の設備
家族に人気の設備
夫婦に人気の設備
三世代で人気の設備
こだわり
雨の日でも洗濯したい
洋室で暮らしたい
お得な条件
インターネット無料
方南町テラスハウスE ***号室の賃貸契約情報
毎月支払う |
家賃7.9万円/月共益費4,000円/月 |
|---|---|
初期費用 |
敷金-礼金1ヶ月 (7.9万円)保証金-敷引き償却金- |
更新料 |
79,000円 |
鍵交換費用 |
- |
室内清掃費用 |
55,000円 |
サポート24 |
22,000円 |
駐車場料金 |
- |
損保・ |
借家賠付きの火災保険にご加入いただきます。 |
保証会社 |
加入要 保証会社利用料:初回保証料50%、月額1%or年間10000円 |
契約期間 |
2年 |
入居可能日 |
即入居可 |
フリーレント期間 |
- |
取引形態 |
一般媒介 |
備考 |
火災保険:18000円 1年未満短期解約違約金1ヶ月 24時間サポート22000円 鍵交換:16500円 退去時クリーニング費用:55000円 |
方南町テラスハウスE ***号室の建物情報
建物名称 |
方南町テラスハウスE |
|---|---|
最寄駅 |
|
所在地 |
東京都杉並区方南 |
階層 |
2階部分(地上3階建) |
構造 |
木造 |
築年数 |
2018年4月(築8年) |
駐車場 |
- |
小学校学区 |
方南小学校 |
中学校学区 |
泉南中学校 |
- 学区データについて
- ※学区データは必ずしも正確とは限りません。詳細に関しては最寄店舗または各自治体の教育委員会に必ずご確認ください。
無料この物件に問い合わせ
- 方南町テラスハウスE ***号室

-
7.9万円
(共益費
4,000円)
- 敷
- -
- 礼
- 1ヶ月
- 保
- -
- 償
- -
方南町テラスハウスE ***号室の物件のお問い合わせ先・取り扱い店舗
ハウスコム 明大前店
- アクセス
-
京王線「明大前駅」中央口徒歩1分
京王井の頭線「明大前駅」中央口徒歩1分
- 住所
- 〒156-0043 東京都世田谷区松原2丁目44−1 グランシーン明大前 1階
- 営業時間
- 10:00~18:00
- 定休日
- なし
- 営業エリア
- 世田谷区・杉並区・渋谷区・中野区・新宿区・三鷹市・調布市
- 取引態様
- 賃貸仲介業


























