L-Flat田町 407号室(4階/1K)の賃貸物件(賃貸マンション)
東京都港区にあるL-Flat田町 407号室は宅配ボックス、エアコン、インターネット可、防犯カメラ、24時間ゴミ出しOKなどが特徴です。最寄り駅の山手線田町駅から徒歩7分です。L-Flat田町 407号室の詳細はハウスコム 五反田店までお気軽にお問い合わせください!
情報更新日:
次回更新予定日:
※次回更新予定日について:お店側では順次空室確認を行っていますが、次回更新予定日までに空室確認が行えない場合には、この物件情報は自動的に削除されます。
L-Flat田町 407号室の賃貸物件部屋概要
家賃 |
9万円
初期費用を |
|---|---|
共益費 |
15,000円
入居可能時期 |
敷金/礼金 |
90,000円 / 90,000円 |
保証金/ |
- / 90,000円 |
最寄駅 |
|
所在地 |
東京都港区芝浦 |
部屋番号 |
407号室 |
間取り |
1K |
専有面積 |
20.52㎡ |
築年数 |
2006年11月(築20年) |
階数 |
4階部分(地上12階建) |
方位・位置 |
ー / その他 |
物件種別 |
賃貸マンション |
構造 |
RC |
駐車場 |
空無し |
小学校学区 |
芝浜小学校 |
中学校学区 |
港南中学校 |
他の空き部屋 |
407号室 601号室 901号室 |
- 学区データについて
- ※学区データは必ずしも正確とは限りません。詳細に関しては最寄店舗または各自治体の教育委員会に必ずご確認ください。
L-Flat田町 407号室の特徴
セキュリティ
この物件の建物には、オートロックや防犯カメラや宅配ボックスが設置されております。
室内設備
システムキッチンには、2つ以上のガスコンロが備え付けられています。 洗濯に便利な設備として、浴室乾燥機も設置されているので、梅雨時の生乾き臭も比較的防ぐことができます。
居室状況
お部屋の床は、フローリングとなっており、エアコンが設置されています。 収納スペースとして、基本的な居室にクローゼットを設置、玄関にはシューズボックスがあります。
建物設備共用部分
居室外の専有スペースとして、洗濯物を干すなどの用途として利用できるバルコニーがあります。 建物の共用スペースに、日々の出入に便利なエレベーターや、いざという時の防犯カメラや、急な外出や不在がちのご家庭の荷物受け取りに便利な宅配ボックスや、居室内を常に清潔に保てる24時間利用可能なゴミ捨て置き場が設置されています。 駐輪場、バイク置き場が利用できます。
周辺施設
この物件の学区は、芝浜小学校区・港南中学校区です。
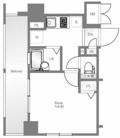
L-Flat田町 407号室の間取り
間取り:1K
間取詳細:1K
専有面積:20.52㎡
方位:ー
部屋位置:その他
L-Flat田町 407号室の設備
キッチン
システムキッチン
ガスコンロ
ガスコンロ二口以上
バス・トイレ
バス・トイレ別
浴室乾燥機
玄関
オートロック
宅配ボックス
収納
クローゼット
シューズボックス
バルコニー
バルコニー
ルーフバルコニー
室内設備
エアコン
フローリング
位置・立地
2階以上
インフラ
インターネット可
建物設備
エレベーター
防犯カメラ
24時間ゴミ出しOK
駐輪場
バイク置き場
入居条件
オンライン内見可
ライフステージ
一人暮らしに人気の設備
カップルに人気の設備
家族に人気の設備
夫婦に人気の設備
三世代で人気の設備
こだわり
タイパ重視
外で子どもと遊びたい
雨の日でも洗濯したい
洋室で暮らしたい
趣味
ガーデニングが好き
L-Flat田町 407号室の賃貸契約情報
毎月支払う |
家賃9万円/月共益費15,000円/月 |
|---|---|
初期費用 |
敷金90,000円礼金90,000円保証金-敷引き償却金90,000円 |
更新料 |
90,000円 |
鍵交換費用 |
33,000円 |
室内清掃費用 |
- |
駐車場料金 |
空無し |
損保・ |
借家賠付きの火災保険にご加入いただきます。 |
保証会社 |
加入要 保証会社利用料:原則:初回50%、年次更新料1万円、口座振替手数料440円 |
契約期間 |
2年 |
入居可能日 |
相談 |
フリーレント期間 |
- |
取引形態 |
一般媒介 |
備考 |
- |
L-Flat田町 407号室の建物情報
建物名称 |
L-Flat田町 |
|---|---|
最寄駅 |
|
所在地 |
東京都港区芝浦 |
階層 |
4階部分(地上12階建) |
構造 |
RC |
築年数 |
2006年11月(築20年) |
駐車場 |
空無し |
小学校学区 |
芝浜小学校 |
中学校学区 |
港南中学校 |
- 学区データについて
- ※学区データは必ずしも正確とは限りません。詳細に関しては最寄店舗または各自治体の教育委員会に必ずご確認ください。
無料この物件に問い合わせ
- L-Flat田町 407号室

-
9万円
(共益費
15,000円)
- 敷
- 90,000円
- 礼
- 90,000円
- 保
- -
- 償
- 90,000円
L-Flat田町 407号室の物件のお問い合わせ先・取り扱い店舗
ハウスコム 五反田店
- アクセス
-
山手線「五反田駅」東口徒歩1分
都営浅草線「五反田駅」A6出口より徒歩1分
- 住所
- 〒141-0022 東京都品川区東五反田1丁目12−12 落合ビル 2F
- 営業時間
- 10:00~18:00
- 定休日
- 水曜日
- 営業エリア
- 品川区,大田区,港区,目黒区
- 取引態様
- 賃貸仲介業





















