GENOVIA学芸大学 0203号室(2階/1K)の賃貸物件(賃貸マンション)
東京都目黒区にあるGENOVIA学芸大学 0203号室はエレベーター、防犯カメラ、24時間ゴミ出しOK、ペット可・相談、学生限定・歓迎などが特徴です。最寄り駅の東急東横線学芸大学駅から徒歩12分です。GENOVIA学芸大学 0203号室の詳細はハウスコム 大岡山店までお気軽にお問い合わせください!
情報更新日:
次回更新予定日:
※次回更新予定日について:お店側では順次空室確認を行っていますが、次回更新予定日までに空室確認が行えない場合には、この物件情報は自動的に削除されます。
GENOVIA学芸大学 0203号室の賃貸物件部屋概要
家賃 |
14.2万円
初期費用を |
|---|---|
共益費 |
10,000円
入居可能時期 |
敷金/礼金 |
- / - |
保証金/ |
- / - |
最寄駅 |
|
所在地 |
東京都目黒区目黒本町 |
部屋番号 |
0203号室 |
間取り |
1K(洋7.8) |
専有面積 |
25.48㎡ |
築年数 |
2023年6月(築3年) |
階数 |
2階部分(地上5階建) |
方位・位置 |
北 / 角部屋 |
物件種別 |
賃貸マンション |
構造 |
RC |
駐車場 |
- |
小学校学区 |
月光原小学校 |
中学校学区 |
第七中学校 |
他の空き部屋 |
0303号室 0504号室 103号室 203号室 303号室 504号室 |
- 学区データについて
- ※学区データは必ずしも正確とは限りません。詳細に関しては最寄店舗または各自治体の教育委員会に必ずご確認ください。
GENOVIA学芸大学 0203号室の特徴
-
一人暮らしに人気の設備

-
カップルに人気の設備

-
家族に人気の設備

-
夫婦に人気の設備

-
三世代で人気の設備

-
セキュリティ対策重視

-
タイパ重視

-
外で子どもと遊びたい

-
雨の日でも洗濯したい

-
洋室で暮らしたい

-
オークション・通販が好き

-
ガーデニングが好き

契約条件
この物件は、入居者が学生限定もしくは歓迎で2人入居もご契約できます。 ペットの飼育もご相談ください。 また、ご契約時に保証人は不要です。 敷金と礼金が無料なため、初期費用が比較的安くなる傾向にあります。 お支払いは、初期費用がクレジットカードにて決済できます。
セキュリティ
この物件の建物には、オートロックや防犯カメラや宅配ボックスが設置されており、来客時には居室内のテレビモニターにて訪問者の顔を確認することができます。
室内設備
システムキッチンには、2つ以上のガスコンロが備え付けられています。 トイレは、温水洗浄便座機能付きになります。 女性に嬉しい設備の独立した洗面化粧台があります。 洗濯に便利な設備として、室内洗濯機置場があります。浴室乾燥機も設置されているので、梅雨時の生乾き臭も比較的防ぐことができます。
居室状況
お部屋の床は、フローリングとなっており、エアコンが設置されています。 インターネットも無料で入居後すぐ生活が始められます。 収納スペースとして、基本的な居室にクローゼットを設置、玄関にはシューズボックスがあります。
建物設備共用部分
居室外の専有スペースとして、洗濯物を干すなどの用途として利用できるバルコニーがあります。 建物の共用スペースに、日々の出入に便利なエレベーターや、いざという時の防犯カメラや、急な外出や不在がちのご家庭の荷物受け取りに便利な宅配ボックスや、居室内を常に清潔に保てる24時間利用可能なゴミ捨て置き場が設置されています。
周辺施設
この物件の学区は、月光原小学校区・第七中学校区です。
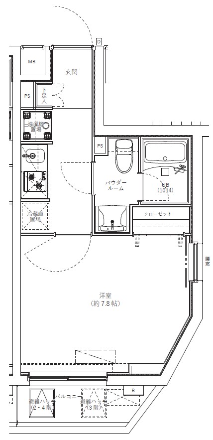
GENOVIA学芸大学 0203号室の間取り
間取り:1K
間取詳細:1K(洋7.8)
専有面積:25.48㎡
方位:北
部屋位置:角部屋
GENOVIA学芸大学 0203号室の設備
キッチン
システムキッチン
ガスコンロ
ガスコンロ二口以上
バス・トイレ
バス・トイレ別
浴室乾燥機
温水洗浄便座
独立洗面台
玄関
TVモニタ付インターホン
オートロック
宅配ボックス
収納
クローゼット
シューズボックス
バルコニー
バルコニー
ルーフバルコニー
室内設備
エアコン
フローリング
室内洗濯機置場
位置・立地
2階以上
角部屋
インフラ
インターネット可
BS
CS
都市ガス
建物設備
エレベーター
防犯カメラ
24時間ゴミ出しOK
入居条件
ペット可・相談
2人入居可
学生限定・歓迎
オンライン相談可
オンライン内見可
保証人不要
ライフステージ
一人暮らしに人気の設備
カップルに人気の設備
家族に人気の設備
夫婦に人気の設備
三世代で人気の設備
こだわり
セキュリティ対策重視
タイパ重視
外で子どもと遊びたい
雨の日でも洗濯したい
洋室で暮らしたい
趣味
オークション・通販が好き
ガーデニングが好き
お得な条件
フリーレント
インターネット無料
初期費用カード決済可
GENOVIA学芸大学 0203号室の賃貸契約情報
毎月支払う |
家賃14.2万円/月共益費10,000円/月 |
|---|---|
初期費用 |
敷金-礼金-保証金-敷引き償却金- |
更新料 |
142,000円 |
鍵交換費用 |
- |
室内清掃費用 |
38,500円 |
鍵交換費用(任意) |
27,500円 |
消臭抗菌サービス |
11,000円 |
外国人サポートプラン |
10,800円 |
駐車場料金 |
- |
損保・ |
借家賠付きの火災保険にご加入いただきます。 |
保証会社 |
加入要 保証会社利用料:一番手「RBI」初回保証料:50%(ペット飼育時100%) 外国籍:100%+外国籍サポート年間10,800円 (※審査により変更有・要確認) 外国籍家賃:クレカQR決済可(既存の保証料+2 |
契約期間 |
2年 |
入居可能日 |
2026年06月下旬 |
フリーレント期間 |
1ヶ月 |
取引形態 |
一般媒介 |
備考 |
初期費用のクレジット決済が可能 ペット飼育時:敷金積増なし(多頭飼い・大型犬の場合、基本敷金1ヶ月頭数により変動あり) 短期解約違約金:1年未満の解約で総賃料1ヵ月分 外国人サポートプラン:10800円、 契約事務手数料:11000円、 エアコン内部洗浄(1台あたり):16500円 |
GENOVIA学芸大学 0203号室の建物情報
建物名称 |
GENOVIA学芸大学 |
|---|---|
最寄駅 |
|
所在地 |
東京都目黒区目黒本町 |
階層 |
2階部分(地上5階建) |
構造 |
RC |
築年数 |
2023年6月(築3年) |
駐車場 |
- |
小学校学区 |
月光原小学校 |
中学校学区 |
第七中学校 |
- 学区データについて
- ※学区データは必ずしも正確とは限りません。詳細に関しては最寄店舗または各自治体の教育委員会に必ずご確認ください。
無料この物件に問い合わせ
- GENOVIA学芸大学 0203号室

-
14.2万円
(共益費
10,000円)
- 敷
- -
- 礼
- -
- 保
- -
- 償
- -
GENOVIA学芸大学 0203号室の物件のお問い合わせ先・取り扱い店舗
ハウスコム 大岡山店
- アクセス
-
東急目黒線「大岡山駅」徒歩1分
- 住所
- 〒145-0062 東京都大田区北千束1丁目51−6 サンルミナスA 1階
- 営業時間
- 10:00~18:00
- 定休日
- なし
- 営業エリア
- 大田区,目黒区,品川区,世田谷区
- 取引態様
- 賃貸仲介業




















