レオネクストサティⅡ ***号室(1階/1K)の賃貸物件(賃貸アパート)
東京都八王子市にあるレオネクストサティⅡ ***号室は電気コンロ、追い焚き、バルコニー、ルーフバルコニー、角部屋などが特徴です。最寄り駅の中央本線(JR東日本)西八王子駅から徒歩15分です。レオネクストサティⅡ ***号室の詳細はハウスコム 八王子駅前店までお気軽にお問い合わせください!
情報更新日:
次回更新予定日:
※次回更新予定日について:お店側では順次空室確認を行っていますが、次回更新予定日までに空室確認が行えない場合には、この物件情報は自動的に削除されます。
レオネクストサティⅡ ***号室の賃貸物件部屋概要
家賃 |
7.2万円
初期費用を |
|---|---|
共益費 |
5,000円
入居可能時期 |
敷金/礼金 |
- / 72,000円 |
保証金/ |
- / - |
最寄駅 |
|
所在地 |
東京都八王子市横川町 |
部屋番号 |
***号室 |
間取り |
1K(洋10.3) |
専有面積 |
30.43㎡ |
築年数 |
2014年1月(築13年) |
階数 |
1階部分(地上2階建) |
方位・位置 |
東 / 角部屋 |
物件種別 |
賃貸アパート |
構造 |
木造 |
駐車場 |
無 |
小学校学区 |
横川小学校 |
中学校学区 |
横川中学校 |
他の空き部屋 |
ー |
- 学区データについて
- ※学区データは必ずしも正確とは限りません。詳細に関しては最寄店舗または各自治体の教育委員会に必ずご確認ください。
レオネクストサティⅡ ***号室の特徴
契約条件
敷金が無料なため、初期費用が比較的安くなる傾向にあります。
セキュリティ
来客時には居室内のテレビモニターにて訪問者の顔を確認することができます。
室内設備
電気コンロが備え付けられています。 お風呂とトイレは別です。お風呂には、追い焚き機能が備わっています。 トイレは、温水洗浄便座機能付きになります。 洗濯に便利な設備として、室内洗濯機置場があります。
居室状況
エアコンが設置されています。
建物設備共用部分
居室外の専有スペースとして、洗濯物を干すなどの用途として利用できるバルコニーがあります。
周辺施設
この物件の学区は、横川小学校区・横川中学校区です。
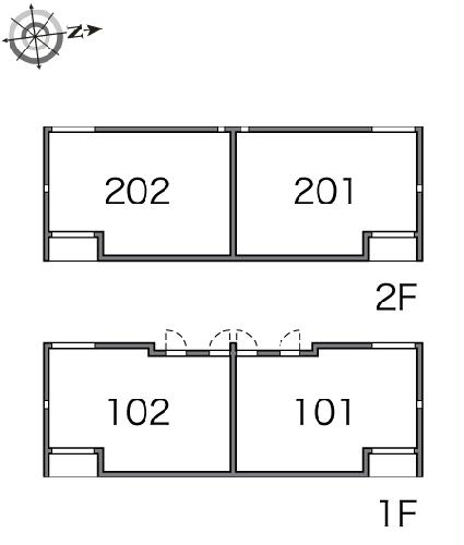
レオネクストサティⅡ ***号室の間取り
間取り:1K
間取詳細:1K(洋10.3)
専有面積:30.43㎡
方位:東
部屋位置:角部屋
レオネクストサティⅡ ***号室の設備
キッチン
電気コンロ
バス・トイレ
バス・トイレ別
追い焚き
温水洗浄便座
玄関
TVモニタ付インターホン
バルコニー
バルコニー
ルーフバルコニー
室内設備
エアコン
室内洗濯機置場
位置・立地
1階
角部屋
インフラ
インターネット可
ライフステージ
一人暮らしに人気の設備
カップルに人気の設備
家族に人気の設備
夫婦に人気の設備
三世代で人気の設備
こだわり
外で子どもと遊びたい
雨の日でも洗濯したい
趣味
ガーデニングが好き
レオネクストサティⅡ ***号室の賃貸契約情報
毎月支払う |
家賃7.2万円/月共益費5,000円/月 |
|---|---|
初期費用 |
敷金-礼金72,000円保証金-敷引き償却金- |
更新料 |
- |
鍵交換費用 |
16,500円 |
室内清掃費用 |
41,800円 |
抗菌施工(任意) |
23,760円 |
駐車場料金 |
無 |
損保・ |
借家賠付きの火災保険にご加入いただきます。 |
保証会社 |
加入要 保証会社利用料:保証料:92990円(契約内容により100~120%で変動有)※記載金額は120%の場合 |
契約期間 |
- |
入居可能日 |
2026年05月下旬 |
フリーレント期間 |
- |
取引形態 |
一般媒介 |
備考 |
抗菌施工(任意)17712円から23328円(税込)、環境維持費540円/月 |
レオネクストサティⅡ ***号室の建物情報
建物名称 |
レオネクストサティⅡ |
|---|---|
最寄駅 |
|
所在地 |
東京都八王子市横川町 |
階層 |
1階部分(地上2階建) |
構造 |
木造 |
築年数 |
2014年1月(築13年) |
駐車場 |
無 |
小学校学区 |
横川小学校 |
中学校学区 |
横川中学校 |
- 学区データについて
- ※学区データは必ずしも正確とは限りません。詳細に関しては最寄店舗または各自治体の教育委員会に必ずご確認ください。
無料この物件に問い合わせ
- レオネクストサティⅡ ***号室

-
7.2万円
(共益費
5,000円)
- 敷
- -
- 礼
- 72,000円
- 保
- -
- 償
- -
レオネクストサティⅡ ***号室の物件のお問い合わせ先・取り扱い店舗
ハウスコム 八王子駅前店
- アクセス
-
中央本線(JR東日本)「八王子駅」北口徒歩1分
- 住所
- 〒192-0083 東京都八王子市旭町2-12 サンドラッグ八王子駅前ビル6階
- 営業時間
- 10:00~18:00
- 定休日
- なし
- 営業エリア
- 【八王子市】【日野市】【相模原市】【あきる野市】【昭島市】【福生市】【青梅市】【羽村市】【瑞穂町】【町田市】【多摩市】
- 取引態様
- 賃貸仲介業






























