ニューハイツ???場 8F号室(8階/1DK)の賃貸物件(賃貸マンション)
東京都新宿区にあるニューハイツ???場 8F号室は冷蔵庫付、宅配ボックス、室内洗濯機置場、2階以上、外国人可・相談などが特徴です。最寄り駅の山手線高田馬場駅から徒歩7分です。ニューハイツ???場 8F号室の詳細はハウスコム 高田馬場店までお気軽にお問い合わせください!
情報更新日:
次回更新予定日:
※次回更新予定日について:お店側では順次空室確認を行っていますが、次回更新予定日までに空室確認が行えない場合には、この物件情報は自動的に削除されます。
ニューハイツ???場 8F号室の賃貸物件部屋概要
家賃 |
14.9万円
初期費用を |
|---|---|
共益費 |
20,000円
入居可能時期 |
敷金/礼金 |
1ヶ月 / 1ヶ月 |
保証金/ |
- / - |
最寄駅 |
|
所在地 |
東京都新宿区高田馬場 |
部屋番号 |
8F号室 |
間取り |
1DK(DK7.1・洋6) |
専有面積 |
34.46㎡ |
築年数 |
1981年6月(築45年) |
階数 |
8階部分(地上8階建) |
方位・位置 |
北東 / その他 |
物件種別 |
賃貸マンション |
構造 |
RC |
駐車場 |
- |
小学校学区 |
ー |
中学校学区 |
ー |
他の空き部屋 |
ー |
- 学区データについて
- ※学区データは必ずしも正確とは限りません。詳細に関しては最寄店舗または各自治体の教育委員会に必ずご確認ください。
ニューハイツ???場 8F号室の特徴
-
一人暮らしに人気の設備

-
カップルに人気の設備

-
家族に人気の設備

-
夫婦に人気の設備

-
三世代で人気の設備

-
外で子どもと遊びたい

-
身だしなみに気をつかいたい

-
雨の日でも洗濯したい

-
洋室で暮らしたい

-
ガーデニングが好き

契約条件
この物件は、外国籍の方もご相談の上、2人入居やルームシェアもご契約できます。 また、ご契約時に保証人は不要です。
セキュリティ
この物件の建物には、防犯カメラや宅配ボックスが設置されており、来客時には居室内のテレビモニターにて訪問者の顔を確認することができます。
室内設備
システムキッチンには、2つ以上のガスコンロが設置されており、キッチン設備として冷蔵庫が備え付けられています。 女性に嬉しい設備の独立した洗面化粧台があります。 洗濯に便利な設備として、室内洗濯機置場があります。浴室乾燥機も設置されているので、梅雨時の生乾き臭も比較的防ぐことができます。
居室状況
お部屋の床は、フローリングとなっており、エアコンが設置されています。 家具と家電と照明器具が備え付けられており、入居後すぐ生活が始められます。 収納スペースとして、基本的な居室にクローゼットを設置、玄関にはシューズボックスがあります。
建物設備共用部分
居室外の専有スペースとして、洗濯物を干すなどの用途として利用できるバルコニーがあります。 建物の共用スペースに、日々の出入に便利なエレベーターや、いざという時の防犯カメラや、急な外出や不在がちのご家庭の荷物受け取りに便利な宅配ボックスが設置されています。
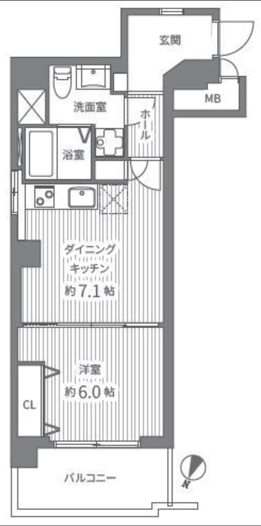
ニューハイツ???場 8F号室の間取り
間取り:1DK
間取詳細:1DK(DK7.1・洋6)
専有面積:34.46㎡
方位:北東
部屋位置:その他
ニューハイツ???場 8F号室の設備
キッチン
システムキッチン
ガスコンロ
ガスコンロ二口以上
冷蔵庫付
バス・トイレ
バス・トイレ別
浴室乾燥機
独立洗面台
玄関
TVモニタ付インターホン
宅配ボックス
収納
クローゼット
シューズボックス
バルコニー
バルコニー
ルーフバルコニー
室内設備
エアコン
フローリング
室内洗濯機置場
照明器具付
家具付
家電付
位置・立地
2階以上
最上階
インフラ
インターネット可
CATV
BS
CS
都市ガス
建物設備
エレベーター
防犯カメラ
分譲賃貸
入居条件
2人入居可
ルームシェア可・相談
外国人可・相談
オンライン相談可
保証人不要
ライフステージ
一人暮らしに人気の設備
カップルに人気の設備
家族に人気の設備
夫婦に人気の設備
三世代で人気の設備
こだわり
外で子どもと遊びたい
身だしなみに気をつかいたい
雨の日でも洗濯したい
洋室で暮らしたい
趣味
ガーデニングが好き
ニューハイツ???場 8F号室の賃貸契約情報
毎月支払う |
家賃14.9万円/月共益費20,000円/月 |
|---|---|
初期費用 |
敷金1ヶ月 (14.9万円)礼金1ヶ月 (14.9万円)保証金-敷引き償却金- |
更新料 |
149,000円 |
鍵交換費用 |
24,200円 |
室内清掃費用 |
- |
駐車場料金 |
- |
損保・ |
借家賠付きの火災保険にご加入いただきます。 |
保証会社 |
加入要 保証会社利用料:総賃料の50%~ |
契約期間 |
2年 |
入居可能日 |
2026年04月 |
フリーレント期間 |
- |
取引形態 |
一般媒介 |
備考 |
- |
ニューハイツ???場 8F号室の建物情報
建物名称 |
ニューハイツ???場 |
|---|---|
最寄駅 |
|
所在地 |
東京都新宿区高田馬場 |
階層 |
8階部分(地上8階建) |
構造 |
RC |
築年数 |
1981年6月(築45年) |
駐車場 |
- |
小学校学区 |
ー |
中学校学区 |
ー |
- 学区データについて
- ※学区データは必ずしも正確とは限りません。詳細に関しては最寄店舗または各自治体の教育委員会に必ずご確認ください。
無料この物件に問い合わせ
- ニューハイツ???場 8F号室

-
14.9万円
(共益費
20,000円)
- 敷
- 1ヶ月
- 礼
- 1ヶ月
- 保
- -
- 償
- -
ニューハイツ???場 8F号室の物件のお問い合わせ先・取り扱い店舗
ハウスコム 高田馬場店
- アクセス
-
山手線「高田馬場駅」徒歩5分
- 住所
- 〒169-0075 東京都新宿区高田馬場1-17-18 マルシメビル1階
- 営業時間
- 10:00~18:00
- 定休日
- 水曜日
- 営業エリア
- 新宿区 豊島区 杉並区 中野区 文京区
- 取引態様
- 賃貸仲介業





























