ペアシティルネッサンス高輪 ***号室(12階/2SLDK)の賃貸物件(賃貸マンション)
東京都港区にあるペアシティルネッサンス高輪 ***号室はIHコンロ、角部屋、エレベーター、防犯カメラ、オンライン相談可などが特徴です。最寄り駅の山手線品川駅から徒歩6分です。ペアシティルネッサンス高輪 ***号室の詳細はハウスコム 五反田店までお気軽にお問い合わせください!
情報更新日:
次回更新予定日:
※次回更新予定日について:お店側では順次空室確認を行っていますが、次回更新予定日までに空室確認が行えない場合には、この物件情報は自動的に削除されます。
ペアシティルネッサンス高輪 ***号室の賃貸物件部屋概要
家賃 |
45.2万円
初期費用を |
|---|---|
共益費 |
20,000円
入居可能時期 |
敷金/礼金 |
1ヶ月 / 1ヶ月 |
保証金/ |
- / - |
最寄駅 |
|
所在地 |
東京都港区高輪 |
部屋番号 |
***号室 |
間取り |
2SLDK(LDK23・洋6・洋6) |
専有面積 |
115.54㎡ |
築年数 |
1980年10月(築46年) |
階数 |
12階部分(地上14階地下2階建) |
方位・位置 |
南 / 角部屋 |
物件種別 |
賃貸マンション |
構造 |
その他 |
駐車場 |
- |
小学校学区 |
ー |
中学校学区 |
ー |
他の空き部屋 |
ー |
- 学区データについて
- ※学区データは必ずしも正確とは限りません。詳細に関しては最寄店舗または各自治体の教育委員会に必ずご確認ください。
ペアシティルネッサンス高輪 ***号室の特徴
-
一人暮らしに人気の設備

-
カップルに人気の設備

-
家族に人気の設備

-
夫婦に人気の設備

-
三世代で人気の設備

-
地震対策された建物

-
セキュリティ対策重視

-
外で子どもと遊びたい

-
急な来客でも駐車したい

-
身だしなみに気をつかいたい

-
雨の日でも洗濯したい

-
洋室で暮らしたい

-
服やおしゃれが好き

-
ガーデニングが好き

契約条件
この物件は、外国籍の方もご相談の上、2人入居やルームシェアもご契約できます。 ペットの飼育もご相談ください。
セキュリティ
この物件の建物には、オートロックや防犯カメラや宅配ボックスが設置されており、来客時には居室内のテレビモニターにて訪問者の顔を確認することができます。
室内設備
システムキッチンには、IHコンロが備え付けられています。 トイレは、温水洗浄便座機能付きになります。 女性に嬉しい設備の独立した洗面化粧台があります。 洗濯に便利な設備として、室内洗濯機置場があります。
居室状況
お部屋の床は、フローリングとなっており、エアコンが設置されています。 収納スペースとして、通常よりも収納力の高いウォークインクローゼット、玄関にはシューズボックスがあります。
建物設備共用部分
居室外の専有スペースとして、洗濯物を干すなどの用途として利用できるバルコニーがあります。 建物の共用スペースに、日々の出入に便利なエレベーターや、いざという時の防犯カメラや、急な外出や不在がちのご家庭の荷物受け取りに便利な宅配ボックスや、居室内を常に清潔に保てる24時間利用可能なゴミ捨て置き場が設置されています。 駐車場があり2台以上の車で利用することができます。駐輪場、バイク置き場が利用できます。 この物件の建物は、建物全体をしっかり固定することで、地震の揺れに耐えるように設計された耐震構造の建築物です。
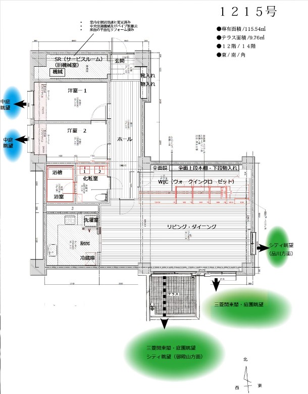
ペアシティルネッサンス高輪 ***号室の間取り
間取り:2SLDK
間取詳細:2SLDK(LDK23・洋6・洋6)
専有面積:115.54㎡
方位:南
部屋位置:角部屋
ペアシティルネッサンス高輪 ***号室の設備
キッチン
システムキッチン
IHコンロ
バス・トイレ
バス・トイレ別
温水洗浄便座
独立洗面台
玄関
TVモニタ付インターホン
オートロック
宅配ボックス
収納
ウォークインクローゼット
シューズボックス
トランクルーム
バルコニー
バルコニー
ルーフバルコニー
室内設備
エアコン
フローリング
室内洗濯機置場
位置・立地
2階以上
角部屋
南向き
インフラ
インターネット可
都市ガス
建物設備
エレベーター
防犯カメラ
24時間ゴミ出しOK
駐車2台以上可
駐輪場
バイク置き場
分譲賃貸
耐震構造
入居条件
ペット可・相談
2人入居可
ルームシェア可・相談
外国人可・相談
オンライン相談可
オンライン内見可
ライフステージ
一人暮らしに人気の設備
カップルに人気の設備
家族に人気の設備
夫婦に人気の設備
三世代で人気の設備
トレンド
地震対策された建物
こだわり
セキュリティ対策重視
外で子どもと遊びたい
急な来客でも駐車したい
身だしなみに気をつかいたい
雨の日でも洗濯したい
洋室で暮らしたい
趣味
服やおしゃれが好き
ガーデニングが好き
ペアシティルネッサンス高輪 ***号室の賃貸契約情報
毎月支払う |
家賃45.2万円/月共益費20,000円/月 |
|---|---|
初期費用 |
敷金1ヶ月 (45.2万円)礼金1ヶ月 (45.2万円)保証金-敷引き償却金- |
更新料 |
452,000円 |
鍵交換費用 |
- |
室内清掃費用 |
- |
駐車場料金 |
- |
損保・ |
借家賠付きの火災保険にご加入いただきます。 |
保証会社 |
加入要 保証会社:いえらぶ安心保証 保証会社利用料:年間保証料:月額賃料の50%、月額保証料:550円、年間保証料:10,000円(1年毎) |
契約期間 |
2年 |
入居可能日 |
2026年06月下旬 |
フリーレント期間 |
- |
取引形態 |
一般媒介 |
備考 |
2026年4月10日時点 ペット飼育可 成長時体重10㎏以下、1住戸2匹まで。1匹につき敷金積み増し1か月。ペット飼育会に要入会(1000円/年) 駐車場:地上2台空有(25000円/月)車幅1830㎝、地下4台空有1830㎝(34560~41000円/月) 駐輪場:1台有(1000円/月) バイク置場:2台有3000円/月 トランクルーム:6300~12900円/月 |
ペアシティルネッサンス高輪 ***号室の建物情報
建物名称 |
ペアシティルネッサンス高輪 |
|---|---|
最寄駅 |
|
所在地 |
東京都港区高輪 |
階層 |
12階部分(地上14階地下2階建) |
構造 |
その他 |
築年数 |
1980年10月(築46年) |
駐車場 |
- |
小学校学区 |
ー |
中学校学区 |
ー |
- 学区データについて
- ※学区データは必ずしも正確とは限りません。詳細に関しては最寄店舗または各自治体の教育委員会に必ずご確認ください。
無料この物件に問い合わせ
- ペアシティルネッサンス高輪 ***号室

-
45.2万円
(共益費
20,000円)
- 敷
- 1ヶ月
- 礼
- 1ヶ月
- 保
- -
- 償
- -
ペアシティルネッサンス高輪 ***号室の物件のお問い合わせ先・取り扱い店舗
ハウスコム 五反田店
- アクセス
-
山手線「五反田駅」東口徒歩1分
都営浅草線「五反田駅」A6出口より徒歩1分
- 住所
- 〒141-0022 東京都品川区東五反田1丁目12−12 落合ビル 2F
- 営業時間
- 10:00~18:00
- 定休日
- 水曜日
- 営業エリア
- 品川区,大田区,港区,目黒区
- 取引態様
- 賃貸仲介業

























