クレイノKONDOH 201号室(2階/1K)の賃貸物件(賃貸アパート)
東京都昭島市にあるクレイノKONDOH 201号室はバス・トイレ別、バルコニー、ルーフバルコニー、エアコン、2階以上などが特徴です。最寄り駅の青梅線中神駅から徒歩8分です。クレイノKONDOH 201号室の詳細はハウスコム 立川店までお気軽にお問い合わせください!
情報更新日:
次回更新予定日:
※次回更新予定日について:お店側では順次空室確認を行っていますが、次回更新予定日までに空室確認が行えない場合には、この物件情報は自動的に削除されます。
クレイノKONDOH 201号室の賃貸物件部屋概要
家賃 |
7.7万円
初期費用を |
|---|---|
共益費 |
5,000円
入居可能時期 |
敷金/礼金 |
- / 77,000円 |
保証金/ |
- / - |
最寄駅 |
|
所在地 |
東京都昭島市宮沢町 |
部屋番号 |
201号室 |
間取り |
1K |
専有面積 |
25.17㎡ |
築年数 |
2018年11月(築7年) |
階数 |
2階部分(地上2階建) |
方位・位置 |
ー / その他 |
物件種別 |
賃貸アパート |
構造 |
木造 |
駐車場 |
無 |
小学校学区 |
つつじが丘小学校 |
中学校学区 |
瑞雲中学校 |
他の空き部屋 |
ー |
- 学区データについて
- ※学区データは必ずしも正確とは限りません。詳細に関しては最寄店舗または各自治体の教育委員会に必ずご確認ください。
クレイノKONDOH 201号室の特徴
契約条件
敷金が無料なため、初期費用が比較的安くなる傾向にあり、更新料が無料なので、長年お得に住み続けることができます。
セキュリティ
来客時には居室内のテレビモニターにて訪問者の顔を確認することができます。
室内設備
トイレは、温水洗浄便座機能付きになります。 女性に嬉しい設備の独立した洗面化粧台があります。 洗濯に便利な設備として、室内洗濯機置場があります。
居室状況
エアコンが設置されています。 家具が備え付けられており、入居後すぐ生活が始められます。
建物設備共用部分
居室外の専有スペースとして、洗濯物を干すなどの用途として利用できるバルコニーがあります。
周辺施設
この物件の学区は、つつじが丘小学校区・瑞雲中学校区です。
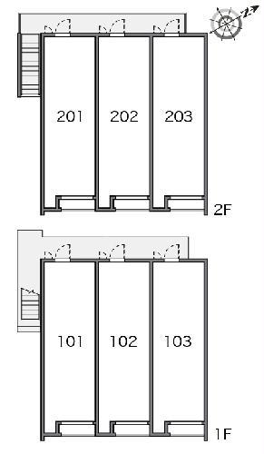
クレイノKONDOH 201号室の間取り
間取り:1K
間取詳細:1K
専有面積:25.17㎡
方位:ー
部屋位置:その他
クレイノKONDOH 201号室の設備
バス・トイレ
バス・トイレ別
温水洗浄便座
独立洗面台
玄関
TVモニタ付インターホン
バルコニー
バルコニー
ルーフバルコニー
室内設備
エアコン
室内洗濯機置場
家具付
位置・立地
2階以上
最上階
ライフステージ
一人暮らしに人気の設備
カップルに人気の設備
家族に人気の設備
夫婦に人気の設備
三世代で人気の設備
こだわり
外で子どもと遊びたい
雨の日でも洗濯したい
趣味
ガーデニングが好き
お得な条件
更新料無料
クレイノKONDOH 201号室の賃貸契約情報
毎月支払う |
家賃7.7万円/月共益費5,000円/月 |
|---|---|
初期費用 |
敷金-礼金77,000円保証金-敷引き償却金- |
更新料 |
- |
鍵交換費用 |
16,500円 |
室内清掃費用 |
41,800円 |
抗菌施工(任意) |
23,760円 |
駐車場料金 |
無 |
損保・ |
借家賠付きの火災保険にご加入いただきます。 |
保証会社 |
加入要 保証会社利用料:保証料:83390円(契約内容により100~120%で変動有)※記載金額は120%の場合 |
契約期間 |
2年 |
入居可能日 |
即入居可 |
フリーレント期間 |
- |
取引形態 |
一般媒介 |
備考 |
鍵交換費10260円、抗菌施工(任意)17712円から23328円(税込)、環境維持費540円/月 |
クレイノKONDOH 201号室の建物情報
建物名称 |
クレイノKONDOH |
|---|---|
最寄駅 |
|
所在地 |
東京都昭島市宮沢町 |
階層 |
2階部分(地上2階建) |
構造 |
木造 |
築年数 |
2018年11月(築7年) |
駐車場 |
無 |
小学校学区 |
つつじが丘小学校 |
中学校学区 |
瑞雲中学校 |
- 学区データについて
- ※学区データは必ずしも正確とは限りません。詳細に関しては最寄店舗または各自治体の教育委員会に必ずご確認ください。
無料この物件に問い合わせ
- クレイノKONDOH 201号室

-
7.7万円
(共益費
5,000円)
- 敷
- -
- 礼
- 77,000円
- 保
- -
- 償
- -
クレイノKONDOH 201号室の物件のお問い合わせ先・取り扱い店舗
ハウスコム 立川店
- アクセス
-
中央本線(JR東日本)「立川駅」北口徒歩1分
- 住所
- 〒190-0012 東京都立川市曙町2丁目13−1 TE曙ビル 5階
- 営業時間
- 10:00~18:00
- 定休日
- なし
- 営業エリア
- 立川市,国分寺市,小平市,国立市,日野市,昭島市,東大和市,武蔵村山市,青梅市,福生市,あきる野市
- 取引態様
- 賃貸仲介業


























