上尾市柏座貸家 1号室(1階/4LDK)の賃貸物件(賃貸一戸建て)
埼玉県上尾市にある上尾市柏座貸家 1号室はガスコンロ、追い焚き、フローリング、1階、南向きなどが特徴です。最寄り駅の高崎線上尾駅から徒歩6分です。上尾市柏座貸家 1号室の詳細はハウスコム 大宮東口店までお気軽にお問い合わせください!
情報更新日:
次回更新予定日:
※次回更新予定日について:お店側では順次空室確認を行っていますが、次回更新予定日までに空室確認が行えない場合には、この物件情報は自動的に削除されます。
上尾市柏座貸家 1号室の賃貸物件部屋概要
家賃 |
12.9万円
初期費用を |
|---|---|
共益費 |
-
入居可能時期 |
敷金/礼金 |
2ヶ月 / 1ヶ月 |
保証金/ |
- / - |
最寄駅 |
|
所在地 |
埼玉県上尾市柏座 |
部屋番号 |
1号室 |
間取り |
4LDK |
専有面積 |
89.43㎡ |
築年数 |
1994年8月(築32年) |
階数 |
1階部分(地上2階建) |
方位・位置 |
南 / その他 |
物件種別 |
賃貸一戸建て |
構造 |
木造 |
駐車場 |
- |
小学校学区 |
富士見小学校 |
中学校学区 |
西中学校 |
他の空き部屋 |
ー |
- 学区データについて
- ※学区データは必ずしも正確とは限りません。詳細に関しては最寄店舗または各自治体の教育委員会に必ずご確認ください。
上尾市柏座貸家 1号室の特徴
契約条件
この物件は、2人入居もご契約できます。
室内設備
ガスコンロが備え付けられています。 お風呂とトイレは別です。お風呂には、追い焚き機能が備わっています。 トイレは、温水洗浄便座機能付きになります。 女性に嬉しい設備の独立した洗面化粧台があります。 洗濯に便利な設備として、室内洗濯機置場があります。浴室乾燥機も設置されているので、梅雨時の生乾き臭も比較的防ぐことができます。
居室状況
お部屋の床は、フローリングとなっています。収納スペースとして、玄関にはシューズボックスがあります。
建物設備共用部分
居室外の専有スペースとして、洗濯物を干すなどの用途として利用できるバルコニーがあります。 駐輪場、バイク置き場が利用できます。
周辺施設
この物件の学区は、富士見小学校区・西中学校区です。
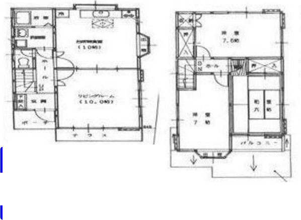
上尾市柏座貸家 1号室の間取り
間取り:4LDK
間取詳細:4LDK
専有面積:89.43㎡
方位:南
部屋位置:その他
上尾市柏座貸家 1号室の設備
キッチン
ガスコンロ
バス・トイレ
バス・トイレ別
追い焚き
浴室乾燥機
温水洗浄便座
独立洗面台
収納
シューズボックス
バルコニー
バルコニー
ルーフバルコニー
室内設備
フローリング
室内洗濯機置場
位置・立地
1階
南向き
インフラ
都市ガス
建物設備
駐輪場
バイク置き場
入居条件
2人入居可
ライフステージ
一人暮らしに人気の設備
カップルに人気の設備
家族に人気の設備
夫婦に人気の設備
三世代で人気の設備
こだわり
外で子どもと遊びたい
雨の日でも洗濯したい
洋室で暮らしたい
趣味
ガーデニングが好き
上尾市柏座貸家 1号室の賃貸契約情報
毎月支払う |
家賃12.9万円/月共益費- |
|---|---|
初期費用 |
敷金2ヶ月 (25.8万円)礼金1ヶ月 (12.9万円)保証金-敷引き償却金- |
更新料 |
- |
鍵交換費用 |
- |
室内清掃費用 |
- |
駐車場料金 |
- |
損保・ |
借家賠付きの火災保険にご加入いただきます。 |
保証会社 |
加入要 保証会社利用料:お問い合わせください |
契約期間 |
- |
入居可能日 |
相談 |
フリーレント期間 |
- |
取引形態 |
一般媒介 |
備考 |
火災保険要加入 |
上尾市柏座貸家 1号室の建物情報
建物名称 |
上尾市柏座貸家 |
|---|---|
最寄駅 |
|
所在地 |
埼玉県上尾市柏座 |
階層 |
1階部分(地上2階建) |
構造 |
木造 |
築年数 |
1994年8月(築32年) |
駐車場 |
- |
小学校学区 |
富士見小学校 |
中学校学区 |
西中学校 |
- 学区データについて
- ※学区データは必ずしも正確とは限りません。詳細に関しては最寄店舗または各自治体の教育委員会に必ずご確認ください。
無料この物件に問い合わせ
- 上尾市柏座貸家 1号室

-
12.9万円
(共益費
-)
- 敷
- 2ヶ月
- 礼
- 1ヶ月
- 保
- -
- 償
- -
上尾市柏座貸家 1号室の物件のお問い合わせ先・取り扱い店舗
ハウスコム 大宮東口店
- アクセス
-
京浜東北・根岸線「大宮駅」東口(北)徒歩1分
- 住所
- 〒330-0846 埼玉県さいたま市大宮区大門町1丁目92−7 ハイカラ堂ビル 2階
- 営業時間
- 10:00~18:00
- 定休日
- 水曜日
- 営業エリア
- さいたま市大宮区、中央区、北区、西区、見沼区、西区、浦和区、岩槻区、上尾市、蓮田市、白岡市、伊奈町 etc.
- 取引態様
- 賃貸仲介業































