スクエアコート早稲田 0009号室(1階/1LDK)の賃貸物件(賃貸マンション)
東京都新宿区にあるスクエアコート早稲田 0009号室は追い焚き、クローゼット、ペット可・相談、2人入居可、オンライン内見可などが特徴です。最寄り駅の東京メトロ 副都心線西早稲田駅から徒歩10分です。スクエアコート早稲田 0009号室の詳細はハウスコム 高田馬場店までお気軽にお問い合わせください!
情報更新日:
次回更新予定日:
※次回更新予定日について:お店側では順次空室確認を行っていますが、次回更新予定日までに空室確認が行えない場合には、この物件情報は自動的に削除されます。
スクエアコート早稲田 0009号室の賃貸物件部屋概要
家賃 |
25.9万円
初期費用を |
|---|---|
共益費 |
10,000円
入居可能時期 |
敷金/礼金 |
- / - |
保証金/ |
- / - |
最寄駅 |
|
所在地 |
東京都新宿区西早稲田 |
部屋番号 |
0009号室 |
間取り |
1LDK(LDK15) |
専有面積 |
56.90㎡ |
築年数 |
2021年3月(築6年) |
階数 |
1階部分(地上3階地下1階建) |
方位・位置 |
北 / その他 |
物件種別 |
賃貸マンション |
構造 |
RC |
駐車場 |
- |
小学校学区 |
戸塚第一小学校 |
中学校学区 |
西早稲田中学校 |
他の空き部屋 |
0004号室 |
- 学区データについて
- ※学区データは必ずしも正確とは限りません。詳細に関しては最寄店舗または各自治体の教育委員会に必ずご確認ください。
スクエアコート早稲田 0009号室の特徴
-
一人暮らしに人気の設備

-
カップルに人気の設備

-
家族に人気の設備

-
夫婦に人気の設備

-
三世代で人気の設備

-
外で子どもと遊びたい

-
雨の日でも洗濯したい

-
洋室で暮らしたい

-
オークション・通販が好き

-
ガーデニングが好き

契約条件
この物件は、外国籍の方もご相談の上、2人入居もご契約できます。 ペットの飼育もご相談ください。 敷金と礼金が無料なため、初期費用が比較的安くなる傾向にあります。
セキュリティ
この物件の建物には、オートロックや防犯カメラや宅配ボックスが設置されております。
室内設備
システムキッチンには、ガスコンロが備え付けられています。 お風呂とトイレは別です。お風呂には、追い焚き機能が備わっています。 女性に嬉しい設備の独立した洗面化粧台があります。 洗濯に便利な設備として、室内洗濯機置場があります。浴室乾燥機も設置されているので、梅雨時の生乾き臭も比較的防ぐことができます。
居室状況
お部屋の床は、フローリングとなっており、エアコンが設置されています。 インターネットも無料で入居後すぐ生活が始められます。 収納スペースとして、基本的な居室にクローゼットがあります。
建物設備共用部分
居室外の専有スペースとして、洗濯物を干すなどの用途として利用できるバルコニーがあります。 建物の共用スペースに、いざという時の防犯カメラや、急な外出や不在がちのご家庭の荷物受け取りに便利な宅配ボックスが設置されています。
周辺施設
この物件の学区は、戸塚第一小学校区・西早稲田中学校区です。
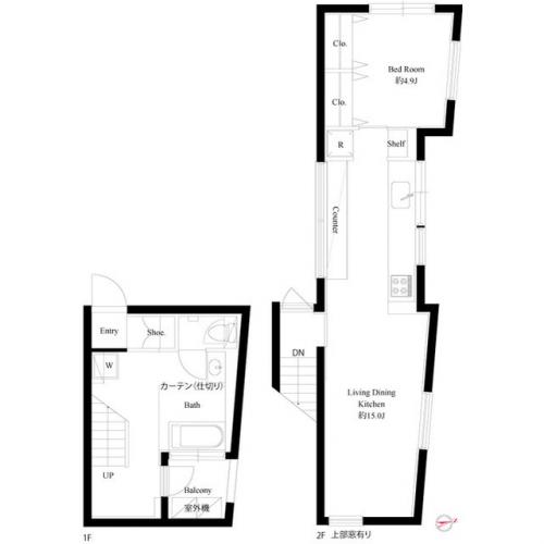
スクエアコート早稲田 0009号室の間取り
間取り:1LDK
間取詳細:1LDK(LDK15)
専有面積:56.90㎡
方位:北
部屋位置:その他
スクエアコート早稲田 0009号室の設備
キッチン
システムキッチン
ガスコンロ
バス・トイレ
バス・トイレ別
追い焚き
浴室乾燥機
独立洗面台
玄関
オートロック
宅配ボックス
収納
クローゼット
バルコニー
バルコニー
ルーフバルコニー
室内設備
エアコン
フローリング
室内洗濯機置場
デザイナーズ
位置・立地
1階
インフラ
BS
CS
都市ガス
建物設備
防犯カメラ
メゾネット
入居条件
ペット可・相談
2人入居可
外国人可・相談
オンライン相談可
オンライン内見可
ライフステージ
一人暮らしに人気の設備
カップルに人気の設備
家族に人気の設備
夫婦に人気の設備
三世代で人気の設備
こだわり
外で子どもと遊びたい
雨の日でも洗濯したい
洋室で暮らしたい
趣味
オークション・通販が好き
ガーデニングが好き
お得な条件
インターネット無料
スクエアコート早稲田 0009号室の賃貸契約情報
毎月支払う |
家賃25.9万円/月共益費10,000円/月 |
|---|---|
初期費用 |
敷金-礼金-保証金-敷引き償却金- |
更新料 |
259,000円 |
鍵交換費用 |
22,000円 |
室内清掃費用 |
- |
24時間安心サポート料(税込) |
22,000円 |
室内抗菌処理代(税込) |
17,600円 |
事務手数料(税込) |
11,000円 |
駐車場料金 |
- |
損保・ |
借家賠付きの火災保険にご加入いただきます。 |
保証会社 |
加入要 保証会社利用料:第1指定:エポス 初回50% 年間一律20,000円 第2指定:エムぞう君A 初回55%~(最低55,000円) 年間11,000円 ※滞納状況により変動有 |
契約期間 |
2年 |
入居可能日 |
2026年06月 |
フリーレント期間 |
- |
取引形態 |
一般媒介 |
備考 |
ペット相談可 追加敷金1ヶ月 小型犬1匹のみ飼育可。犬種により2匹目の飼育相談可。契約後の追加は、手数料2万税 対象期間:1年未満 違約金:1ヵ月 269000円 |
スクエアコート早稲田 0009号室の建物情報
建物名称 |
スクエアコート早稲田 |
|---|---|
最寄駅 |
|
所在地 |
東京都新宿区西早稲田 |
階層 |
1階部分(地上3階地下1階建) |
構造 |
RC |
築年数 |
2021年3月(築6年) |
駐車場 |
- |
小学校学区 |
戸塚第一小学校 |
中学校学区 |
西早稲田中学校 |
- 学区データについて
- ※学区データは必ずしも正確とは限りません。詳細に関しては最寄店舗または各自治体の教育委員会に必ずご確認ください。
無料この物件に問い合わせ
- スクエアコート早稲田 0009号室

-
25.9万円
(共益費
10,000円)
- 敷
- -
- 礼
- -
- 保
- -
- 償
- -
スクエアコート早稲田 0009号室の物件のお問い合わせ先・取り扱い店舗
ハウスコム 高田馬場店
- アクセス
-
山手線「高田馬場駅」徒歩5分
- 住所
- 〒169-0075 東京都新宿区高田馬場1-17-18 マルシメビル1階
- 営業時間
- 10:00~18:00
- 定休日
- 水曜日
- 営業エリア
- 新宿区 豊島区 杉並区 中野区 文京区
- 取引態様
- 賃貸仲介業



















