ヒルズ南戸塚 4-203号室(2階/3LDK)の賃貸物件(賃貸マンション)
神奈川県横浜市戸塚区にあるヒルズ南戸塚 4-203号室はカウンターキッチン、バス・トイレ別、インターネット可、バイク置き場、2人入居可などが特徴です。最寄り駅の湘南新宿ライン・宇都宮横須賀線戸塚駅から2.8kmです。ヒルズ南戸塚 4-203号室の詳細はハウスコム 上大岡店までお気軽にお問い合わせください!
情報更新日:
次回更新予定日:
※次回更新予定日について:お店側では順次空室確認を行っていますが、次回更新予定日までに空室確認が行えない場合には、この物件情報は自動的に削除されます。
ヒルズ南戸塚 4-203号室の賃貸物件部屋概要
家賃 |
11万円
初期費用を |
|---|---|
共益費 |
6,300円
入居可能時期 |
敷金/礼金 |
2ヶ月 / - |
保証金/ |
- / - |
最寄駅 |
|
所在地 |
神奈川県横浜市戸塚区戸塚町 |
部屋番号 |
4-203号室 |
間取り |
3LDK(和6・洋5.8・洋5.1・LDK12.4) |
専有面積 |
66.35㎡ |
築年数 |
1991年8月(築35年) |
階数 |
2階部分(地上7階建) |
方位・位置 |
南西 / その他 |
物件種別 |
賃貸マンション |
構造 |
RC |
駐車場 |
8,800円 |
小学校学区 |
下郷小学校 |
中学校学区 |
南戸塚中学校 |
他の空き部屋 |
***号室 ***号室 ***号室 ***号室 3-704号室 ***号室 ***号室 |
- 学区データについて
- ※学区データは必ずしも正確とは限りません。詳細に関しては最寄店舗または各自治体の教育委員会に必ずご確認ください。
ヒルズ南戸塚 4-203号室の特徴
-
一人暮らしに人気の設備

-
カップルに人気の設備

-
家族に人気の設備

-
夫婦に人気の設備

-
三世代で人気の設備

-
収納重視

-
外で子どもと遊びたい

-
洋室で暮らしたい

-
持ち物をスッキリ隠す収納部屋

-
推し活グッズを飾りたい

-
ガーデニングが好き

契約条件
この物件は、2人入居もご契約できます。 また、保証会社との契約が必要となる場合があります。 礼金が無料なため、初期費用が比較的安くなる傾向にあります。
セキュリティ
この物件の建物には、防犯カメラが設置されており、来客時には居室内のテレビモニターにて訪問者の顔を確認することができます。
室内設備
カウンターキッチンが備え付けられています。 お風呂とトイレは別です。お風呂には、追い焚き機能が備わっています。 女性に嬉しい設備の独立した洗面化粧台があります。
居室状況
居室には、和室の居室もあり、子育てやリラックススペースとしての利用もできます。 お部屋の床は、フローリングとなっています。収納スペースとして、基本的な居室にクローゼットを設置、玄関にはシューズボックスがあります。
建物設備共用部分
居室外の専有スペースとして、洗濯物を干すなどの用途として利用できるバルコニーがあります。 建物の共用スペースに、いざという時の防犯カメラが設置されています。 駐輪場、バイク置き場が利用できます。
周辺施設
この物件の学区は、下郷小学校区・南戸塚中学校区です。
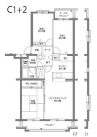
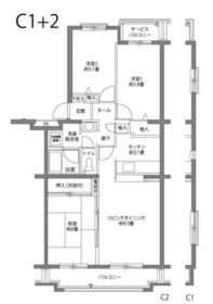
ヒルズ南戸塚 4-203号室の間取り
間取り:3LDK
間取詳細:3LDK(和6・洋5.8・洋5.1・LDK12.4)
専有面積:66.35㎡
方位:南西
部屋位置:その他
ヒルズ南戸塚 4-203号室の設備
キッチン
カウンターキッチン
バス・トイレ
バス・トイレ別
追い焚き
独立洗面台
玄関
TVモニタ付インターホン
収納
クローゼット
シューズボックス
全居室収納
バルコニー
バルコニー
ルーフバルコニー
室内設備
フローリング
和室あり
位置・立地
2階以上
インフラ
インターネット可
都市ガス
建物設備
防犯カメラ
駐輪場
バイク置き場
入居条件
2人入居可
保証会社利用可
ライフステージ
一人暮らしに人気の設備
カップルに人気の設備
家族に人気の設備
夫婦に人気の設備
三世代で人気の設備
こだわり
収納重視
外で子どもと遊びたい
洋室で暮らしたい
持ち物をスッキリ隠す収納部屋
趣味
推し活グッズを飾りたい
ガーデニングが好き
ヒルズ南戸塚 4-203号室の賃貸契約情報
毎月支払う |
家賃11万円/月共益費6,300円/月 |
|---|---|
初期費用 |
敷金2ヶ月 (22万円)礼金-保証金-敷引き償却金- |
更新料 |
- |
鍵交換費用 |
16,500円 |
室内清掃費用 |
- |
駐車場料金 |
8,800円 |
損保・ |
借家賠付きの火災保険にご加入いただきます。 |
保証会社 |
利用可 保証会社利用料:エルズサポート株式会社(1)分割プラン、初回4%、毎月2%(2)2年毎プラン、初回45%、2年毎2.5万円(3)一括プラン70%、お選びいただけます。(1)(2)(3)毎月決済手数料440円 |
契約期間 |
2年 |
入居可能日 |
相談 |
フリーレント期間 |
- |
取引形態 |
一般媒介 |
備考 |
- |
ヒルズ南戸塚 4-203号室の建物情報
建物名称 |
ヒルズ南戸塚 |
|---|---|
最寄駅 |
|
所在地 |
神奈川県横浜市戸塚区戸塚町 |
階層 |
2階部分(地上7階建) |
構造 |
RC |
築年数 |
1991年8月(築35年) |
駐車場 |
8,800円 |
小学校学区 |
下郷小学校 |
中学校学区 |
南戸塚中学校 |
- 学区データについて
- ※学区データは必ずしも正確とは限りません。詳細に関しては最寄店舗または各自治体の教育委員会に必ずご確認ください。
無料この物件に問い合わせ
- ヒルズ南戸塚 4-203号室

-
11万円
(共益費
6,300円)
- 敷
- 2ヶ月
- 礼
- -
- 保
- -
- 償
- -
ヒルズ南戸塚 4-203号室の物件のお問い合わせ先・取り扱い店舗
ハウスコム 上大岡店
- アクセス
-
京急本線「上大岡駅」徒歩2分
- 住所
- 〒233-0002 神奈川県横浜市港南区上大岡西1丁目11−7 第10オーヴァルビル 1階
- 営業時間
- 10:00~18:00
- 定休日
- なし
- 営業エリア
- 横浜市南区,横浜市港南区,横浜市磯子区
- 取引態様
- 賃貸仲介業














